Добавить в корзинуПозвонить
Найти в Дзене
DIVAN.RU

ДО/ПОСЛЕ: капитальный ремонт в «сталинке» 83 кв.м для молодой семьи

Хозяева этой квартиры — молодая семейная пара. Сразу после переезда у них родилась малышка. Супруги сразу обозначили, что хотели бы сделать квартиру максимально функциональной. К сожалению, в «сталинке» не осталось никаких следов оригинального оформления — ни паркета, ни филенчатых межкомнатных дверей. Поэтому супругам захотелось привнести атмосферу эпохи в свой новый интерьер. Заглянем в гости. «Исходная планировка обладала массой достоинств, — рассказывает дизайнер. — Здесь большая (по современным меркам) площадь, «сталинские» потолки выше трех метров, окна на две стороны и два (!) балкона. Мини-перепланировка лишь подчеркнула преимущества квартиры. Мы объединили ванную и туалет, сделав на их месте новый просторный санузел с душем и ванной одновременно. Вынесли постирочную и хозяйственную зону в коридор, выделили отдельную гардеробную и добавили очень красивый и эффектный элемент — распашные двери в спальню, создав подобие анфилады». В проходной гостиной находится зона отдыха ярким д
Оглавление

Хозяева этой квартиры — молодая семейная пара. Сразу после переезда у них родилась малышка. Супруги сразу обозначили, что хотели бы сделать квартиру максимально функциональной. К сожалению, в «сталинке» не осталось никаких следов оригинального оформления — ни паркета, ни филенчатых межкомнатных дверей. Поэтому супругам захотелось привнести атмосферу эпохи в свой новый интерьер. Заглянем в гости.

  • Объект: четырехкомнатная квартира 83 кв.м в г. Москва (потолки 3,1 м)
  • Автор проекта: дизайнер Мария Гуляева, автор съемки Марина Сурмай
  • Бюджет проекта: 10 млн рублей

Планировочное решение

«Исходная планировка обладала массой достоинств, — рассказывает дизайнер. — Здесь большая (по современным меркам) площадь, «сталинские» потолки выше трех метров, окна на две стороны и два (!) балкона. Мини-перепланировка лишь подчеркнула преимущества квартиры. Мы объединили ванную и туалет, сделав на их месте новый просторный санузел с душем и ванной одновременно. Вынесли постирочную и хозяйственную зону в коридор, выделили отдельную гардеробную и добавили очень красивый и эффектный элемент — распашные двери в спальню, создав подобие анфилады».

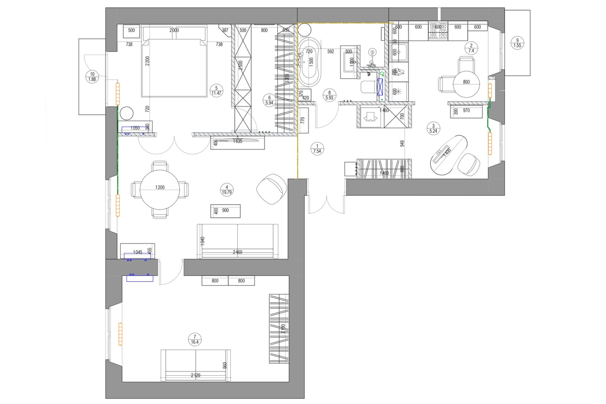
Финальное планировочное решение и расстановка мебели
Финальное планировочное решение и расстановка мебели

Гостиная

Состояние гостиной ДО и ПОСЛЕ ремонта
Состояние гостиной ДО и ПОСЛЕ ремонта

В проходной гостиной находится зона отдыха ярким диваном, а также столовая группа около окна. Пространство спланировано для совместных семейных ужинов и приема гостей — здесь с комфортом разместится даже большая компания.

Обратите внимание: распашные двери с филенками и фрамугой — элемент ретро-дизайна и отсылка к истории дома. Когда они открыты, в гостиную попадает максимум солнечного света.

«Что касается цветовой гаммы, нам с ребятами хотелось передать атмосферу 60-х — рассказывает дизайнер. — В качестве базы для гостиной мы выбрали теплый оттенок белого, а для спальни — светлый серо-голубой. И потом уже на нейтральный фон “нанизывали” вкрапления бордовые и алые акценты».

Спальня

Состояние спальни ДО ремонта
Состояние спальни ДО ремонта

В квартире есть небольшая комната, которая не попала в фотосъемку — ее организовали как рабочий кабинет. Спальне осталась лишь одна функция — отдых, поэтому цветовая палитра здесь более глубокая, располагающая ко сну.

Обратите внимание: по периметру комнаты пустили высокий напольный плинтус. Плинтус на потолке выкрасили в цвет стен, тем самым еще сильнее «приподняв» потолок.

В роли спального места — кровать Кевия от бренда divan.ru. Высокое изголовье скругленной формы в фактурной обивке из букле поддерживает здесь атмосферу комфорта.

➡️Товары бренда divan.ru

«При выборе мебели и декора мы руководствовались соотношением стоимости, качества, сроков поставки и конечно привлекательностью предметов в эстетическом смысле, — рассказывает автор проекта. — Заказчики изначально подходили к созданию дома ответственно, желая сделать/купить качество без временных решений и вариантов. Самыми примечательными в данном интерьере мне кажутся винтажные предметы, которые были отреставрированы, несмотря на сложности и сроки — это зеркало в спальне, кресло в гостиной, зеркало с консолью в прихожей. Благодаря им удалось создать интересный интерьер».

Кухня

В квартире старого фонда есть газ, и кухня здесь изолирована. Гарнитур заказали Г-образный: вся стена напротив окна занята шкафами под потолок, а стена напротив входа — только нижним ярусом. Цветом стены «поделены» на две части — нижняя алая, верхняя белая — это еще одна отсылка к советскому дизайну. Даже вытяжку спрятали в короб из ГКЛ и выкрасили в цвет стен — так она теряется на общем фоне.

Обратите внимание: фартук и столешница изготовлены из искусственного камня. Он выглядит сдержанно и визуально легко. Из этого же материала удалось сделать и небольшую полочку для бокалов, свечей и декора.

Санузел

Состояние санузлов ДО ремонта
Состояние санузлов ДО ремонта

Туалет в квартире объединили с ванной и немного увеличили за счет прихожей. Благодаря этому удалось реализовать пожелания обоих супругов: ванна чаша для нее и душ для него. Цветовая идея здесь продолжается из остальной части квартиры, а материалы поддерживают ее: белая глянцевая плитка EQUIPE ARROW и керамогранит 41zero42, коллекции FUTURA, который идеально подошел интерьеру по желаемому настроению.

Прихожая

В прихожей спроектировали два шкафа друг напротив друга. Один из них отдан под хозблок: стиральную и сушильную машины с дополнительными полками для хранения. Второй — подвесной и гардеробный, для одежды и обуви.

☀️ Cоздайте идеальную атмосферу для отдыха на открытом воздухе. Выбирайте мебель и аксессуары со скидкой 30% по промокоду CHILL

-11

============================

Оцените интерьер в комментариях, а если материал понравился — не забудьте поставить лайк👍

🖤divan.ru — не только блог про интерьеры, но и производитель доступной дизайнерской мебели. Ищите новые идеи и переходите на сайт, чтобы воплотить их в жизнь.