Найти в Дзене
Axiom

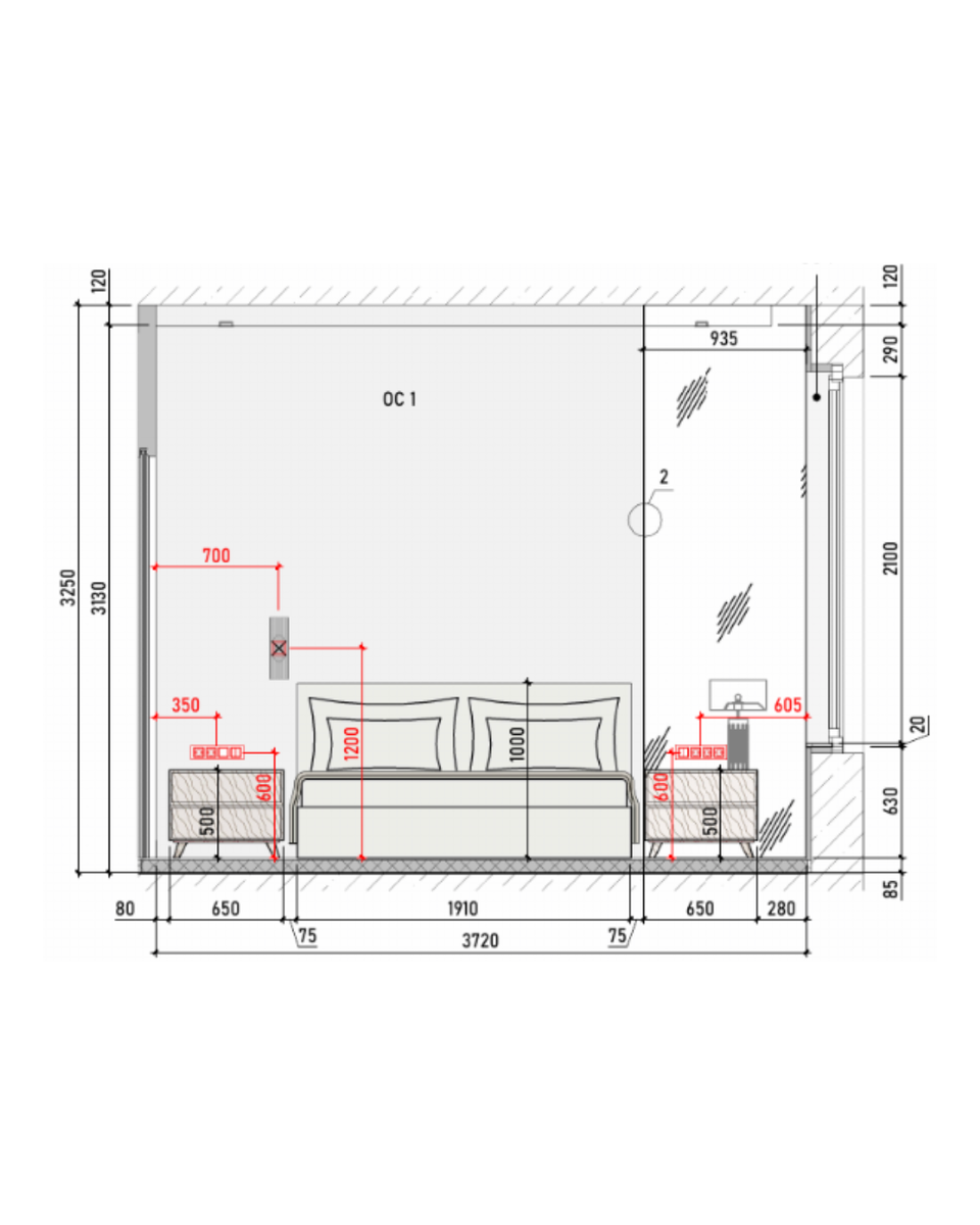
СПАЛЬНЯ 20 М² — ПРОСТРАНСТВО ДЛЯ ПОЛНОГО ПЕРЕЗАПУСКА

Эта спальня спроектирована как место, где всё работает на отдых — от отделки до сценариев освещения. Стены — в двухслойной облицовке ГКЛ на металлическом каркасе: хорошая звукоизоляция и стабильная геометрия. Потолок — натяжной, с LED-лентой в теневом профиле и люстрой Lumina Deco в золоте. У кровати — бра Lloyd: тёплый акцент, встроенный в архитектуру. На полу — ПВХ-покрытие Calitex с рисунком «ёлочка» в естественном тоне. Стены окрашены в светло-серый Flugger Dekso 5 — нейтральный фон, подчёркивающий текстиль и свет. Мебель — простая и функциональная: консольный стол Fargo с ящиками, стул Тревор и кровать Milana New с подъёмным механизмом — мягкая, вместительная, в оттенке Aura 12. Шкаф из ЛМДФ Egger встроен в стену — визуально легко, по вместимости — максимум. Климат контролирует кондиционер Royal Clima GLORIA — бесшумный и эффективный.
Эта спальня — не просто про комфорт, а про ритм жизни. Без проекта Axiom так собрать не получилось бы.

Эта спальня спроектирована как место, где всё работает на отдых — от отделки до сценариев освещения.

-2

Стены — в двухслойной облицовке ГКЛ на металлическом каркасе: хорошая звукоизоляция и стабильная геометрия. Потолок — натяжной, с LED-лентой в теневом профиле и люстрой Lumina Deco в золоте. У кровати — бра Lloyd: тёплый акцент, встроенный в архитектуру.

-3

На полу — ПВХ-покрытие Calitex с рисунком «ёлочка» в естественном тоне. Стены окрашены в светло-серый Flugger Dekso 5 — нейтральный фон, подчёркивающий текстиль и свет.

-4
-5

Мебель — простая и функциональная: консольный стол Fargo с ящиками, стул Тревор и кровать Milana New с подъёмным механизмом — мягкая, вместительная, в оттенке Aura 12. Шкаф из ЛМДФ Egger встроен в стену — визуально легко, по вместимости — максимум.

-6

Климат контролирует кондиционер Royal Clima GLORIA — бесшумный и эффективный.

Эта спальня — не просто про комфорт, а про ритм жизни. Без проекта Axiom так собрать не получилось бы.

-7