Добавить в корзинуПозвонить
Найти в Дзене
СК АТМОСФЕРА

Дом в стиле кантри

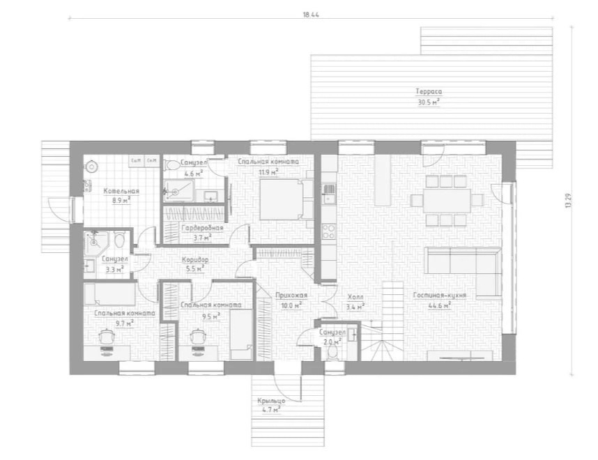
Дом в стиле кантри 🏠 🟢Традиционная двускатная крыша, просторные помещения, панорамное остекление, правильные пропорции, выдержанная цветовая гамма — то, что делает дом гармоничным и комфортным. Дом спроектирован по принципу (площадь = функция) максимального гостеприимства.📊 Почти треть площади отдана общественной зоне кухни-гостиной, которая является («центром» притяжения) местом встреч всей семьи и позволяет вместить большое количество гостей. Дом имеет чёткое зонирование на общественную зону и приватную. Спальни находятся в отдельном блоке за дверью, благодаря чему даже шумные вечерние посиделки не нарушат покой отдыхающих или выполняющих домашнее задание детей. Просторная котельная в этом доме может выполнять функцию хоз. комнаты (прачечной), а наличие дополнительного выхода на улицу позволит обслужить оборудование приходящему специалисту, даже когда хозяев нет дома — это современное и удобное решение, которое часто выбирают наши заказчики. 🔖Из кухни-гостиной по лестнице мож

Дом в стиле кантри 🏠

🟢Традиционная двускатная крыша, просторные помещения, панорамное остекление, правильные пропорции, выдержанная цветовая гамма — то, что делает дом гармоничным и комфортным.

Дом спроектирован по принципу (площадь = функция) максимального гостеприимства.📊

Почти треть площади отдана общественной зоне кухни-гостиной, которая является («центром» притяжения) местом встреч всей семьи и позволяет вместить большое количество гостей. Дом имеет чёткое зонирование на общественную зону и приватную. Спальни находятся в отдельном блоке за дверью, благодаря чему даже шумные вечерние посиделки не нарушат покой отдыхающих или выполняющих домашнее задание детей. Просторная котельная в этом доме может выполнять функцию хоз. комнаты (прачечной), а наличие дополнительного выхода на улицу позволит обслужить оборудование приходящему специалисту, даже когда хозяев нет дома — это современное и удобное решение, которое часто выбирают наши заказчики.

🔖Из кухни-гостиной по лестнице можно подняться на мансарду, в которой можно разместить помещения любого назначения (кабинет, спортзал, игровую, спальню и т. д.), а также сделать «второй свет».

ℹ️Хотите построить надёжный дом с профессиональной командой - оставляйте заявку на нашем сайте➡️ https://sk-atmosfera.com 

'"АТМОСФЕРА" - строительная компания полного цикла с собственным проектным отделом и инженерным подходом к строительству✔️

#Проекты_Атмосфера

#Строим_дом

#Технологии_проектирования_и_строительства_АТМОСФЕРА

#Эксперты_строительства_АТМОСФЕРА

#Проектируем_и_строим_дома_в_Перми.

-2
-3
-4
-5
-6