Найти в Дзене
АО «ТАМАК»

Обзор построенного проекта Эгоист-211 на Open Village 2025

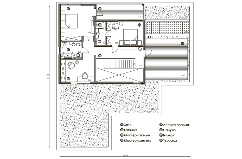
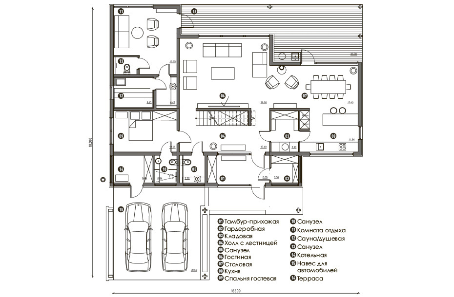
Премиальный проект «Эгоист-211» представляет собой эксклюзивную разработку для Open Village 2025, воплощающую концепцию роскошного загородного жилья. Этот двухэтажный особняк в классическом стиле впечатляет своими масштабами — общая площадь дома 326,45 м². Территория включает не только сам дом, но и зону отдыха. Здесь есть вместительный навес для автомобиля, две просторные террасы для летнего времяпровождения, а также открытый балкон на втором этаже площадью 40,34 м². Первый этаж встречает владельца просторной зоной релаксации с собственной сауной, где есть отдельный санузел, душевая и комнатой отдыха. Центральным элементом планировки служит объединённое пространство гостиной и столовой, создающее атмосферу семейного уюта. Отдельно расположенная кухня оснащена вместительной кладовой для хранения продуктов и кухонной утвари. Второй этаж отведён под приватную зону. Здесь расположились две основные спальни для владельцев, гостевая комната и четыре санузла, что обеспечивает максимальный ко

Премиальный проект «Эгоист-211» представляет собой эксклюзивную разработку для Open Village 2025, воплощающую концепцию роскошного загородного жилья. Этот двухэтажный особняк в классическом стиле впечатляет своими масштабами — общая площадь дома 326,45 м².

Территория включает не только сам дом, но и зону отдыха. Здесь есть вместительный навес для автомобиля, две просторные террасы для летнего времяпровождения, а также открытый балкон на втором этаже площадью 40,34 м².

Первый этаж встречает владельца просторной зоной релаксации с собственной сауной, где есть отдельный санузел, душевая и комнатой отдыха. Центральным элементом планировки служит объединённое пространство гостиной и столовой, создающее атмосферу семейного уюта. Отдельно расположенная кухня оснащена вместительной кладовой для хранения продуктов и кухонной утвари.

Второй этаж отведён под приватную зону. Здесь расположились две основные спальни для владельцев, гостевая комната и четыре санузла, что обеспечивает максимальный комфорт для всех жильцов и их гостей, исключая утренние очереди.

Проект гармонично сочетает классический экстерьер с современной планировкой, создавая пространство, где каждая деталь работает на комфорт и престиж владельца. Функциональность внутреннего пространства дополняется изысканностью внешнего дизайна, что делает этот дом настоящим произведением архитектурного искусства.

Характеристики проекта:

Общая площадь: 326 м²

Площадь помещений: 211 м²

Площадь террас и балконов: 75 м²

Общая площадь 1 этажа: 141.77 м²

Общая площадь 2 этажа: 69.33 м²

Спальни, шт.: 3

Санузлы, шт.: 5

Техническое помещение: да

Гараж: да

Сауна: да

Ознакомиться со другими проектами этой линейки: https://www.tamak.ru/proektyi/egoist/