Добавить в корзинуПозвонить
Найти в Дзене

Вы дышите плесенью, если забыли об этом в ремонте…

Мастера устанавливают вытяжные каналы, забывая о свежем воздухе. В результате вытяжка работает — а новая порция воздуха не поступает.
Результат: духота, повышенная влажность, плесень даже через 3–6 месяцев.
Поправка: обязательно добавить приточные клапаны — стоят от 4 500 ₽ до 7 000 ₽/шт. Когда решётка притока или вытяжки стоит не там, где нужно — теряется тяга и ухудшается циркуляция.
🔹 Портятся герметик и подушки воздуха,
🔹 Шум увеличивается,
🔹 Система «буксует».
💡 Перенос решетки и установка щелевых — около 1 500–3 000 ₽ за элемент. Если воздух входит, но не выходит обратно — система не сбалансирована.
Это как залить воду и не дать ей уйти. Итог — сниженная эффективность и духота.
✅ Решение: добавление возвратного канала с расходом 80–100 м³/ч. Дешёвые трубы без уплотнителя и уплотнения дают утечки.
🎯 Последствия: В холодном климате забытая рекуперация — это утечка вашего тепла. Без фильтрации — пыль, аллергены и запахи остаются внутри.
🔧 Примерное решение: Какая
Оглавление

💡 Из этой статьи вы узнаете:

  • 5 самых распространённых ошибок, убивающих вентиляцию
  • Почему они приводят к духоте, плесени и энерговтратам
  • Сколько придётся потратить на устранение проблемы
  • Как избежать их ещё на этапе ремонта

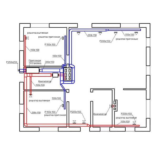
1️⃣ Ошибка № 1: вытяжка без притока

Мастера устанавливают вытяжные каналы, забывая о свежем воздухе. В результате вытяжка работает — а новая порция воздуха не поступает.

Результат: духота, повышенная влажность, плесень даже через 3–6 месяцев.

Поправка: обязательно добавить приточные клапаны — стоят от 4 500 ₽ до 7 000 ₽/шт.

2️⃣ Ошибка № 2: неправильное расположение решёток

Когда решётка притока или вытяжки стоит не там, где нужно — теряется тяга и ухудшается циркуляция.

🔹 Портятся герметик и подушки воздуха,

🔹 Шум увеличивается,

🔹 Система «буксует».

💡 Перенос решетки и установка щелевых — около 1 500–3 000 ₽ за элемент.

3️⃣ Ошибка № 3: отсутствие возвратных каналов

Если воздух входит, но не выходит обратно — система не сбалансирована.

Это как залить воду и не дать ей уйти. Итог — сниженная эффективность и духота.

✅ Решение: добавление возвратного канала с расходом 80–100 м³/ч.

4️⃣ Ошибка № 4: негерметичные или пересекающиеся трассы

Дешёвые трубы без уплотнителя и уплотнения дают утечки.

🎯 Последствия:

  • Потери давления,
  • Конденсат,
  • Плесень.

    Для герметизации труб + герметик — около 200 ₽/м.

5️⃣ Ошибка № 5: отсутствие рекуперации и фильтров

В холодном климате забытая рекуперация — это утечка вашего тепла. Без фильтрации — пыль, аллергены и запахи остаются внутри.

🔧 Примерное решение:

  • Рекуператор от 50 000 до 100 000 ₽;
  • Фильтры —отдельно по договоренности.

-2
-3
-4
-5

💸 Стоимость исправлений

-6

❓ Ваш выбор?

Какая из ошибок кажется вам наиболее критичной?

  1. ❌ Нет притока
  2. 🛑 Неверное размещение решёток
  3. 🔄 Отсутствие возврата
  4. 💧 Утечки воздуховодов
  5. 🌡 Нет рекуперации/фильтрации

Оставьте цифру в комментариях — и мы подготовим подробное решение по вашим страхам!

💭 Не забывайте: кондиционеру недостаточно — он справляется с температурой, но не с кислородом. Если вы читали нашу статью Какой кондиционер выбрать: сплит, мобильный или канальный?, вы знаете: вентиляция — не менее важная часть комфортного климата по дому.

Дышите легко и живите здорово — ведь дом создаётся не только для красоты, но и для людей!