Добавить в корзинуПозвонить
Найти в Дзене

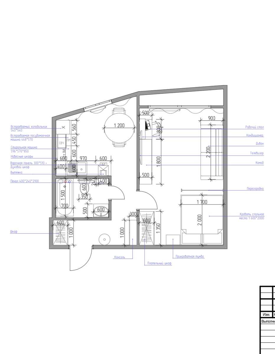
Кейс: флиппинг в Москве ч2.

После покупки квартиры оперативно начали готовить чертежи. Сначала готовим план расстановки мебели. В соответствии с этим планом дальше готовится план электрики, план освещения. По сантехники изменения были только в санузле: развернули ванную, перенесли трубу для унитаза и перенесли коллектор в другое место. Остановились на такой расстановке мебели Под эту расстановку сделали план электрики. По ходу работ в него внесли незначительные изменения И план освещения ( тоже по ходу работ скорректировали) В соответствии с этими планами начали выполнять работы. Продолжение с следующих постах

После покупки квартиры оперативно начали готовить чертежи.

Сначала готовим план расстановки мебели. В соответствии с этим планом дальше готовится план электрики, план освещения. По сантехники изменения были только в санузле: развернули ванную, перенесли трубу для унитаза и перенесли коллектор в другое место.

Остановились на такой расстановке мебели

-2

Под эту расстановку сделали план электрики. По ходу работ в него внесли незначительные изменения

-3

И план освещения ( тоже по ходу работ скорректировали)

-4

В соответствии с этими планами начали выполнять работы. Продолжение с следующих постах