Добавить в корзинуПозвонить
Найти в Дзене
Сигнал Урал

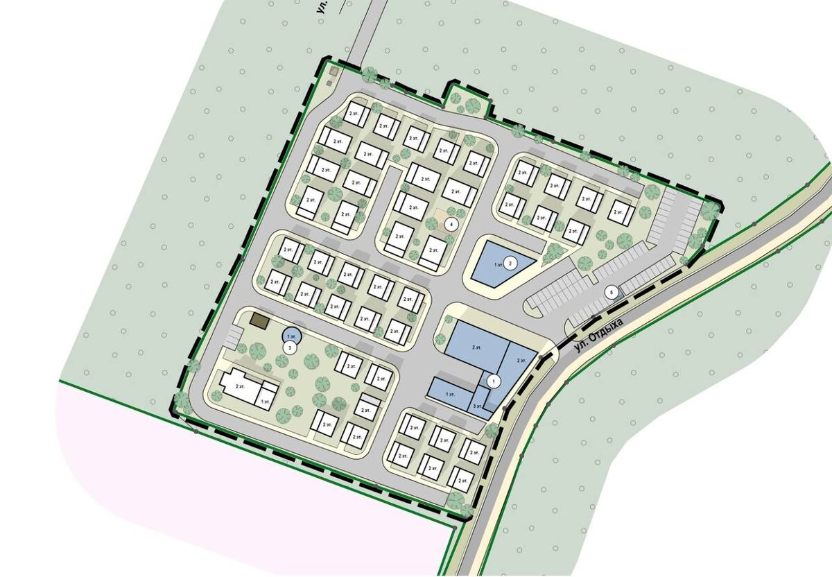
Вице-спикер Заксобрания Свердловской области Армен Карапетян намерен построить гостиницу в Шарташском лесопарке уже к 2027 году

В ответ на пост Вице-спикер Заксобрания Свердловской области Армен Карапетян намерен построить гостиницу в Шарташском лесопарке уже к 2027 году. «Однако все будет зависеть от ключевой ставки».

В ответ на пост

Вице-спикер Заксобрания Свердловской области Армен Карапетян намерен построить гостиницу в Шарташском лесопарке уже к 2027 году. «Однако все будет зависеть от ключевой ставки».