Добавить в корзинуПозвонить
Найти в Дзене
ПСК "Градиент"

Проект частного дома на 106 м²: простота и функциональность

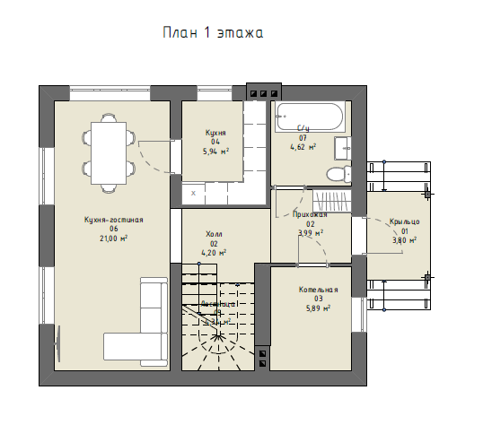
Строительство собственного дома - мечта многих. И когда дело доходит до выбора проекта, важны комфорт, функциональность и стиль. Сегодня мы расскажем о современном доме площадью 106 м², который идеально сочетает в себе удобство и продуманную планировку. Что делает этот проект особенным? Во-первых, продуманная планировка с чётким зонированием. Вход в дом встречает уютное крыльцо площадью 3,8 м², ведущие в прихожую и просторный холл. Здесь достаточно места для хранения верхней одежды и комфортного передвижения по дому. Кухня площадью почти 6 м² и кухня-гостиная 21,6 м² - сердце дома, где собирается семья. Просторная гостиная идеально подходит для отдыха и приёма гостей. Отдельная котельная площадью 5,89 м² обеспечивает автономное отопление и горячую воду, что снижает затраты на коммунальные услуги. Дом оборудован двумя спальнями площадью около 13 м² каждая – приятное пространство для отдыха и восстановления сил. Продуманная гардеробная позволит держать вещи в порядке и освободить жилые

Строительство собственного дома - мечта многих. И когда дело доходит до выбора проекта, важны комфорт, функциональность и стиль. Сегодня мы расскажем о современном доме площадью 106 м², который идеально сочетает в себе удобство и продуманную планировку.

Что делает этот проект особенным? Во-первых, продуманная планировка с чётким зонированием. Вход в дом встречает уютное крыльцо площадью 3,8 м², ведущие в прихожую и просторный холл. Здесь достаточно места для хранения верхней одежды и комфортного передвижения по дому.

-2

Кухня площадью почти 6 м² и кухня-гостиная 21,6 м² - сердце дома, где собирается семья. Просторная гостиная идеально подходит для отдыха и приёма гостей. Отдельная котельная площадью 5,89 м² обеспечивает автономное отопление и горячую воду, что снижает затраты на коммунальные услуги.

-3

Дом оборудован двумя спальнями площадью около 13 м² каждая – приятное пространство для отдыха и восстановления сил. Продуманная гардеробная позволит держать вещи в порядке и освободить жилые комнаты от лишних предметов. Также в проекте предусмотрены два санузла для удобства всех членов семьи.

Этот дом общей площадью 105,96 м² - отличный выбор для тех, кто ценит простоту, чистые линии и функциональность. Если вы мечтаете о собственном уютном уголке, который будет радовать долгие годы, этот проект вас точно заинтересует.

Хотите узнать больше о строительстве и проектировании частных домов? Подписывайтесь на наш канал ПСК Градиет - здесь вы найдёте лучшие советы, свежие проекты и полезные лайфхаки для вашего будущего дома.