Добавить в корзинуПозвонить
Найти в Дзене

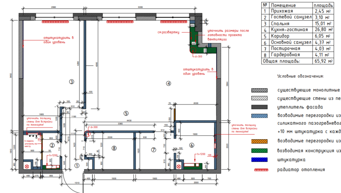
Идеальная планировка для 2-комнатной квартиры 66 м2

Из любой, даже самой обычной планировки можно выжать максимум пользы, если приложить усилия. Сегодня рассказываем о превращении стандартной двушки в комфортную и функциональную квартиру для семейной пары. Здесь есть всё, что нужно современному человеку, живущему в мегаполисе, и нет одного – нефункционального пространства! Мы продолжаем настаивать: большие и непрактичные коридоры – это буквально напрасная трата денег. Площадь прихожей и коридора в этой квартире изначально чуть больше 10 м2, умножьте это на среднюю стоимость квадратного метра в Москве, и посчитайте – сколько стоила «комната для шкафов»? Наши заказчики не хотели с этим мириться, и мы помогли использовать каждый сантиметр пространства с пользой! Знаете, в чем главная прелесть такой перепланировки? Её можно без проблем узаконить, ведь все новые помещения возникли на площади бывшего коридора, что абсолютно законно. А поскольку дом не газифицирован, у объединения кухни и гостиной тоже нет противопоказаний. Основные цвета инте

Из любой, даже самой обычной планировки можно выжать максимум пользы, если приложить усилия. Сегодня рассказываем о превращении стандартной двушки в комфортную и функциональную квартиру для семейной пары.

Портфолио Remplanner
Портфолио Remplanner

Здесь есть всё, что нужно современному человеку, живущему в мегаполисе, и нет одного – нефункционального пространства! Мы продолжаем настаивать: большие и непрактичные коридоры – это буквально напрасная трата денег. Площадь прихожей и коридора в этой квартире изначально чуть больше 10 м2, умножьте это на среднюю стоимость квадратного метра в Москве, и посчитайте – сколько стоила «комната для шкафов»?

Портфолио Remplanner
Портфолио Remplanner

Наши заказчики не хотели с этим мириться, и мы помогли использовать каждый сантиметр пространства с пользой! Знаете, в чем главная прелесть такой перепланировки? Её можно без проблем узаконить, ведь все новые помещения возникли на площади бывшего коридора, что абсолютно законно. А поскольку дом не газифицирован, у объединения кухни и гостиной тоже нет противопоказаний.

Портфолио Remplanner
Портфолио Remplanner

Основные цвета интерьера: серый, бежевый и серо-голубой, также есть элементы в нескольких оттенках оранжевого цвета. Основные декоративные материалы: керамогранит, инженерная доска и интерьерная краска.

Портфолио Remplanner
Портфолио Remplanner

От коридора осталась только компактная прихожая, и это не минус – справа от входа у нас дверь скрытого монтажа (покрытие пластик, цвет светлого дуба, как и у большей части всей мебели в квартире), которая ведет в гардеробную площадью 4 м2.

В этой гардеробной предусмотрены места для хранения огромного количества вещей, не только верхней одежды и обуви, но и самых разных сезонных вещей, а также некоторых бытовых предметов.

Портфолио Remplanner
Портфолио Remplanner

В прихожей царит почти 100% минимализм, единственный предмет мебели – это спрятанная в нишу обувница с мягким сиденьем. Абсолютно симметрично слева от входа вторая такая же дверь скрытого монтажа – это гостевой санузел, он же душевая. Рядом на стене большое зеркало в пол, оно здесь главным образом для расширения пространства и отражения естественного света.

Портфолио Remplanner
Портфолио Remplanner

Цветовая гамма душевой состоит из основных цветов, в отделке использовано несколько вариантов керамогранита – в душевой с геометрическим рисунком.

Здесь использованы все доступные решения: реверсивная дверь в душевом ограждении, тропический душ, встроенный в потолок, ниша со встроенными полками из закаленного стекла (обыграли короб со стояками водоснабжения и канализации), шкафчик над инсталляцией и тумба под раковиной – места хранения принадлежностей для гигиены и полотенец.

Портфолио Remplanner
Портфолио Remplanner

Из маленькой прихожей мы попадаем сразу в основное пространство квартиры – кухню-гостиную. Обратите внимание на закругленные углы, мы уже как-то рассказывали, что плавность и скругление форм сейчас в тренде. Ну а в случае с проходными зонами, к которым точно относятся прихожие и коридоры, это еще и отличный способ избежать повреждения этих самых углов.

Портфолио Remplanner
Портфолио Remplanner

Общее пространство визуально делится на три зоны, первая – это кухня и столовая. Кухня здесь угловая и уже привычно делится на две части: одна с пеналами, вторая с напольными и навесными модулями.

Портфолио Remplanner
Портфолио Remplanner

Конструктивная особенность помещения также предполагала какой-то вариант оформления угла, решили сделать встроенную декоративную витрину. Кстати, навесные модели здесь в один ярус, над ними проходит короб из ГКЛВ – в нем спрятаны воздуховоды. Также потолок немного опущен в зоне прихожей, а в спальне проходит такой же короб по потолку. В современной квартире свежий и чистый воздух также важен, как и чистая вода!

Портфолио Remplanner
Портфолио Remplanner

Вторая зона – гостиная, от столовой и кухни ее традиционно отделяет диван, один из самых надежных и в то же время лаконичных вариантов зонирования пространства.

Портфолио Remplanner
Портфолио Remplanner

Зона с телевизором оформлена с помощью 3D- панелей, и нет, это не рейки, которые многие уже старательно отправляют в антитренды. Напрасно, на наш взгляд, там, где нужно вытянуть вертикаль, рейки по-прежнему отличное решение. Здесь нечто волнообразное и покрашено в наш серо-голубой цвет, который тут, как и в кухне, сочетается с теплым оттенком дерева.

Портфолио Remplanner
Портфолио Remplanner

Третья зона – рабочая, расположилась она компактно возле окна, состоит буквально из письменного стола, кресла и стеллажа, который отделяет стол от ТВ-зоны. Здесь также использован популярный прием отделки стены мебельными панелями, в данном случае использован вариант с фрезеровкой.

Портфолио Remplanner
Портфолио Remplanner

Так, а где же то, что появилось в результате ликвидации коридора? Еще одна дверь скрытого монтажа находится в углу, рядом с кухонными пеналами. Всех поборников СанПиНов призываем выдохнуть – дверь ведет в прачечную.

Портфолио Remplanner
Портфолио Remplanner

Решение немного нестандартное, но единственное, при котором можно было реализовать задуманное. Прачечная у нас проходная, через нее мы попадаем в ванную комнату. Поскольку это приватная территория, нет никаких проблем с таким вариантом доступа. Опять же, удобно – корзина для грязного белья по пути в ванну, полки с чистым здесь же, всё под рукой.

-17

Из интересных моментов – складная зеркальная дверь, плюс здесь же у нас размещен люк доступа к вентиляционной установке (второй такой в гардеробной). У колонны со стиральной и сушильной машинами дверь тоже интересная – решетчатая дверь-купе. Пространство не самое большое, поэтому распашные двери здесь были бы крайне неудобным решением.

Портфолио Remplanner
Портфолио Remplanner

Ванная – самое «теплое» помещение в квартире, и не только из-за теплого пола (собственно, он присутствует также и в прачечной, и в душевой, сырые зоны всегда хорошо снабжать дополнительным источником тепла и просушки пространства). Главная причина в цветовой гамме, в которой вместе с серым керамогранитом присутствуют теплые оранжевые тона мелкоформатной плитки и фасадов на стене с инсталляцией.

Портфолио Remplanner
Портфолио Remplanner

В ванной комнате большая раковина-столешница и скрытая пока ниша, над которой нависает угловой шкафчик. Под раковиной большая подвесная тумба – в двухкомнатной квартире лишних мест хранения не бывает.

Портфолио Remplanner
Портфолио Remplanner

Из особенностей – все смесители скрытого монтажа, включая гигиенический душ. Плюс рядом с чашей унитаза пара скрытых люков. Нет, это не доступ к кранам на стояках – это скрытый держатель туалетной бумаги и не менее скрытый ершик для унитаза. Признайтесь, последний всем нам иногда хочется спрятать, а подобное размещение туалетной бумаги и вовсе верх гигиеничности.

Портфолио Remplanner
Портфолио Remplanner

Ну что, последнее помещение, и это, разумеется, спальня! Главная ее фишка, конечно же, парящая кровать. Хотя, в действительности, это просто иллюзия, по центру расположено несколько металлических опор. Но в сочетании с подсветкой выглядит и правда круто, да и с уборкой никаких проблем.

Портфолио Remplanner
Портфолио Remplanner

Стена над кроватью привлекает внимание своим градиентным рисунком – это бесшовные фотообои с интересным переходом от оливкового к почти белому. Кстати, изголовье кровати и фасады тумбочки повторяют цвета, которые есть на обоях на стене.

Портфолио Remplanner
Портфолио Remplanner

Окно большое, оформлено, как и в кухне-гостиной, с помощью двух вариантов рулонных штор. Первый экран, рассеивающий свет, второй – полный блэкаут. Для спальни решение очень полезное.

Портфолио Remplanner
Портфолио Remplanner

У противоположной стены вместо туалетного столика консоль, исполняющая роль небольшого рабочего стола. Как и в гостиной, эта зона оформлена с помощью мебельных панелей, однако фрезеровка здесь иного плана и дополнена двумя светодиодными лентами.

Портфолио Remplanner
Портфолио Remplanner

Стена напротив кровати окрашена в зелено-серый (тоже присутствует в градиенте над кроватью), а там, где ожидаешь увидеть большой экран телевизора, висит круглое гипсовое панно с подсветкой. В темноте смотрится завораживающе.

Портфолио Remplanner
Портфолио Remplanner

Сбоку от двери традиционный шкаф для одежды, но в этой квартире он не совсем привычный. Это встроенный шкаф-купе, над которым расположены решетки воздуховодов. Фасады у него двухцветные, поэтому на секунду кажется, что это четырехдверный шкаф, но нет. Пространство разделено на две половины: слева ящики внизу и штанги наверху, справа только полки.

Портфолио Remplanner
Портфолио Remplanner

Вот такая у нас получилась квартира со стандартной изначально планировкой, которую мы превратили в нестандартное и строго индивидуальное пространство. Здесь нет нерационально используемой площади, при этом нет и ощущения тесноты. Использованы современные решения, которые обеспечивают не только комфортную планировку, но и микроклимат. Если вы хотите превратить вашу обычную квартиру в нечто подобное – оставляйте заявку, мы обязательно поможем в реализации ваших замыслов!