Найти в Дзене
DIVAN.RU

Крошечная студия 27 кв.м с удивительным функционалом

В этой чудо-квартире есть отдельная спальня со своей гардеробной. А еще полноценная кухня и гостиная… Посмотрим, как такое возможно. Квартиру приобрели с отделкой white box. Достоинство объекта — просторная 6-метровая лоджия с отличным видом, оказалось не таким однозначным: она выходит на солнечную сторону, и студия мгновенно нагревается. Чтобы снизить тепловую нагрузку, пришлось добавить вентиляционный клапан в стене, выбрать кондиционер, работающий при высоких температурах, и затонировать остекление. Планировка от застройщика предусматривала длинную и узкую гардеробную с доступом из прихожей. В ходе ремонта в квартире выделили спальню, и «кусок» гардеробной присоединили к ней. Вторая часть осталась в прихожей — сюда встроили систему хранения. Расположение мокрых зон не меняли, поэтому перепланировку без проблем узаконили. Чтобы не перегрузить пространство, отделку во всех зонах сделали одинаковую. Стены покрасили в светлый серо-бежевый оттенок Tikkurila X486 Median. На пол постелили
Оглавление

В этой чудо-квартире есть отдельная спальня со своей гардеробной. А еще полноценная кухня и гостиная… Посмотрим, как такое возможно.

  • Объект: студия 26,8 кв.м, г. Санкт-Петербург, ЖК «Малая Охта»
  • Авторы проекта: Мария Морковникова и Инга Ефимова, интерьерное ателье «Маринга», автор фото Кристина Плеер
  • Бюджет: 2 млн рублей

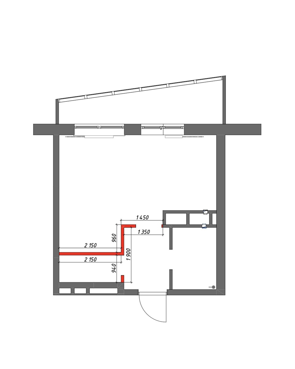
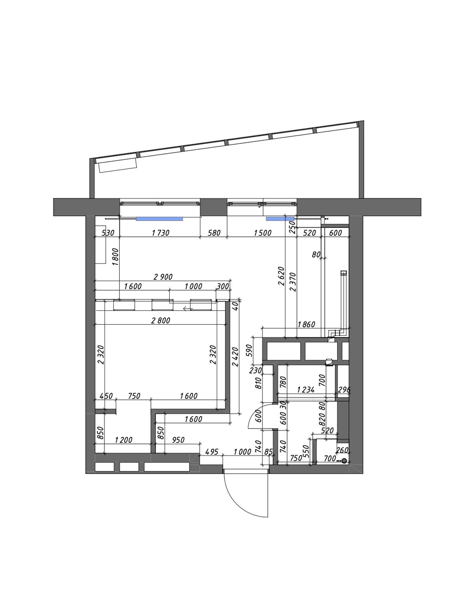
Планировочное решение

Квартиру приобрели с отделкой white box. Достоинство объекта — просторная 6-метровая лоджия с отличным видом, оказалось не таким однозначным: она выходит на солнечную сторону, и студия мгновенно нагревается. Чтобы снизить тепловую нагрузку, пришлось добавить вентиляционный клапан в стене, выбрать кондиционер, работающий при высоких температурах, и затонировать остекление.

Планировка от застройщика предусматривала длинную и узкую гардеробную с доступом из прихожей. В ходе ремонта в квартире выделили спальню, и «кусок» гардеробной присоединили к ней. Вторая часть осталась в прихожей — сюда встроили систему хранения. Расположение мокрых зон не меняли, поэтому перепланировку без проблем узаконили.

Чтобы не перегрузить пространство, отделку во всех зонах сделали одинаковую. Стены покрасили в светлый серо-бежевый оттенок Tikkurila X486 Median. На пол постелили ламинат Quick-Step Capture «орех коричневый» с микроплинтусом — алюминиевым профилем черного цвета.

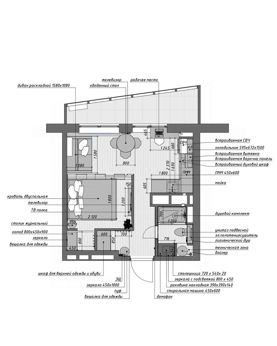
Кухня

Не смотря на то, что студия очень маленькая, кухня нужна была полноформатная, с достаточным количеством полок и всей необходимой техникой. Гарнитур пришлось делать на заказ — стандартные модели под эту задачу не подходили. Цвет фасадов подобрали максимально близким к оттенку стен. Столешница с имитацией бетона — не слишком выделяется, но и не сливается с фасадами.

Одну стену освободили от верхнего яруса, а фартук выложили плиткой до потолка. По другой стене — разноплановые шкафы: секция с выкатными ящиками, угловой шкаф под раковину, посудомоечная машина, духовой шкаф и вытяжка шириной 45 см, холодильник и встроенная микроволновая печь, высокий шкаф (в нем можно хранить сушилку для белья и швабру, а расположенная внутри шкафа розетка позволяет заряжать, например, вертикальный пылесос). В целях экономии использовали не встроенную модель холодильника, а стандартную.

-3

Между окнами поставили компактный круглый стол и стулья в разном дизайне. Подоконник у балконного блока накрыли накрыли кухонной столешницей. Она шире стандартного варианта, и теперь эту зону можно дополнительно использовать. Например, как рабочее место.

Обратите внимание: в студии несколько уровней освещения. Базовое — шина с плоскими светильниками и классический плоский светильник. В роли акцентов настенные бра и подвес над столом.

Гостиная

После перепланировки напротив гарнитура появилась ниша для дивана. Требовалось подобрать глубокий и в то же время компактный вариант.

Выбор пал на модель Слипсон Мини от divan.ru. При своих компактных размерах диван невероятно удобен, имеет высокую спинку и полноценное спальное место. А яркий терракотовый цвет обивки сделал его настоящим центром притяжения.

➡️Товары бренда divan.ru

Детали: вместо журнального стола поставили прозрачный табурет. Он из пластика, но за счет своей «огранки» наполняет интерьер игрой бликов.

Лоджия

Лоджия в студии неправильной формы. В широкой части поставили лофтовое кресло и журнальный стол — все, что нужно, чтобы любоваться закатами.

Спальня

Кровать поставили за стеклянной перегородкой. Она пропускает дневной свет и одновременно приглушает звуки. В стене спальни смонтировали вентиляционную решетку, дополнительный приточный вентилятор в венткоробе обеспечивает циркуляцию воздуха. Вдоль перегородки закрепили карниз со шторами — есть и тюль, и блэкаут.

Обратите внимание: по верху стены над кроватью пустили ряд керамогранита, под который заложили светодиодную ленту. Получившаяся горизонталь визуально расширяет пространство.

➡️Товары бренда divan.ru

Оформление гардеробной поддерживает терракотовую тему. Здесь повесили штангу для вешалок, закрепили пару крючков и поставили комод. Над проектом есть карниз, и при желании можно закрыть вход в гардеробную шторой.

Прихожая

На входе в квартиру нужен был шкаф. В целях экономии места его сделали подвесным — пространство внизу можно использовать как базу для робота-пылесоса (предусмотрена розетка) или обувницу.

Санузел

В санузел ведет дверь скрытого монтажа с черной алюминиевой кромкой — в такт напольным плинтусам в квартире. Внутри установлен душевой поддон из литого камня, унитаз, гигиенический душ, бойлер, коллекторная система. В шкафу под раковиной находится стиральная машина (листайте галерею ниже).

Мебель заказывали по индивидуальным размерам. За фасадами спрятали все технические элементы, включая замысловатые узлы из труб от застройщика, с сохранением доступа к коммуникациям.

💥 Обновили курс на хиты хранения — успейте до 30.07 купить тумбы, комоды, витрины, стеллажи и шкафы со скидками до 60% на divan.ru >>

-12

==========

Оцените интерьер в комментариях, а если статья понравилась — не забудьте поставить лайк👍

🖤divan.ru — не только блог про интерьеры, но и производитель доступной дизайнерской мебели. Ищите новые идеи и переходите на сайт, чтобы воплотить их в жизнь.