Добавить в корзинуПозвонить
Найти в Дзене

Дизайн Классной Трёхкомнатной Квартиры 85 м2 в Москве в Стиле Минимализм

Мы завершили работу над дизайн-проектом трёхкомнатной квартиры площадью 85,4 м² во вторичном фонде в Москве. Делюсь результатом — с планировкой до/после и ракурсами интерьера, которые раскроют каждый угол. Что было важно в этом проекте:
– адаптировать пространство под потребности современной семьи из 3-ёх человек — родители и сын предшкольного возраста
– сохранить максимум воздуха и света
– предусмотреть системы хранения без перегрузки объёма.
Кухня: 10 м²
Гостиная: 21 м²
Ванная: 3,5 м²
Туалет: 1 м²
Гардеробная в прихожей: 2,5 м²
Прихожая и коридор: 13 м²
Детская: 14 м²
Спальня: 13,4 м²
Гардеробная в спальне: 2,5 м²
Лоджия: 4,5 м² Дизайн гостиной в трёхкомнатной квартире в Москве 2025 Дизайн интерьера современной и небольшой кухни Дизайн входной группы в квартире (прихожая, коридор) А также гардеробная, которую построили в просторной прихожей зоне. Дизайн ванной комнаты и туалета Дизайн интерьера детской комнаты для мальчика Дизайн интерьера спальни, в которой предусмотрена гардеробн
Оглавление

Мы завершили работу над дизайн-проектом трёхкомнатной квартиры площадью 85,4 м² во вторичном фонде в Москве. Делюсь результатом — с планировкой до/после и ракурсами интерьера, которые раскроют каждый угол.

Что было важно в этом проекте:
– адаптировать пространство под потребности современной семьи из 3-ёх человек — родители и сын предшкольного возраста
– сохранить максимум воздуха и света
– предусмотреть системы хранения без перегрузки объёма.

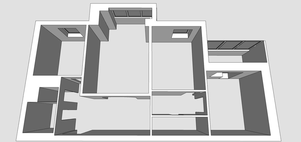
Исходная планировка квартиры от застройщика:

План квартиры после перепланировки:

-2

Состав данной трёхкомнатной квартиры в Москве:


Кухня: 10 м²
Гостиная: 21 м²
Ванная: 3,5 м²
Туалет: 1 м²
Гардеробная в прихожей: 2,5 м²
Прихожая и коридор: 13 м²
Детская: 14 м²
Спальня: 13,4 м²
Гардеробная в спальне: 2,5 м²
Лоджия: 4,5 м²

Визуализация планировки трёхкомнатной квартиры 85 м2 с освещением
Визуализация планировки трёхкомнатной квартиры 85 м2 с освещением

А теперь перейдём к визуализации нашего современного интерьера квартиры:

Дизайн гостиной в трёхкомнатной квартире в Москве 2025

-4
-5
-6
-7

Дизайн интерьера современной и небольшой кухни

-8
-9
-10
-11

Дизайн входной группы в квартире (прихожая, коридор)

-12
-13
-14

А также гардеробная, которую построили в просторной прихожей зоне.

-15

Дизайн ванной комнаты и туалета

-16
-17
-18
-19

Дизайн интерьера детской комнаты для мальчика

-20
-21
-22
-23
-24

Дизайн интерьера спальни, в которой предусмотрена гардеробная комната (с доступом только через спальню) и лоджия с рабочей зоной.

-25
-26
-27
-28
-29
-30
-31
-32

Как вам наш очередной интерьер?

В данный момент мы занимаемся реализацией данного дизайн-проекта под ключ.

Если вы ищете дизайнера, который не просто создаёт красивую «картинку», а умеет воплотить функциональный, живой и индивидуальный интерьер, будем рады обсудить ваш проект — будь то таунхаус, загородный дом или квартира.

С уважением, Григорий Абубекиров

Руководитель студии дизайна интерьера полного цикла - ABUBEKIROV DESIGN

www.vstudiig.ru - сайт в интернете с портфолио, отзывами, перечнем всех услуг

https://t.me/s/vstudiig - канал в телеграме

https://vk.com/vstudiig - группа вк

https://ru.pinterest.com/vstudiig/ - пинтерест