Найти в Дзене
Правда ПФО

В Уфе под административно-гостиничный комплекс отдают 33 га земли

Мэр Уфы Ратмир Мавлиев утвердил проект планировки квартала в границах проспекта Октября, Лесопаркового проезда, улицы Рихарда Зорге и границы Орджоникидзевского района. Общая площадь участка составляет 32,9 га. Снос объектов капстроительства не предусмотрен. На территории сохранят здание Государственного академического русского драматического театра, планетарий, комплекс колеса обозрения, рестораны, кафе, а также памятник Ленину, фонтан и пешеходный переход. Жилая застройка проектом не запланирована, но там собираются построить 29-этажное здание административно-гостиничного комплекса с двухэтажным комплексом на 400 мет. Фото: проектная документация

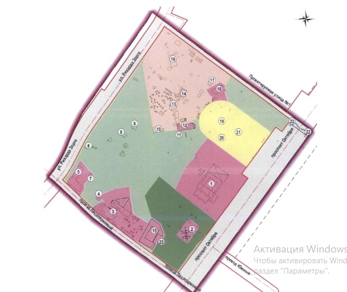
Мэр Уфы Ратмир Мавлиев утвердил проект планировки квартала в границах проспекта Октября, Лесопаркового проезда, улицы Рихарда Зорге и границы Орджоникидзевского района. Общая площадь участка составляет 32,9 га. Снос объектов капстроительства не предусмотрен.

На территории сохранят здание Государственного академического русского драматического театра, планетарий, комплекс колеса обозрения, рестораны, кафе, а также памятник Ленину, фонтан и пешеходный переход. Жилая застройка проектом не запланирована, но там собираются построить 29-этажное здание административно-гостиничного комплекса с двухэтажным комплексом на 400 мет.

Фото: проектная документация