Добавить в корзинуПозвонить
Найти в Дзене
Бери и Строй

Проект каркасного дома "БАРН 67м2"

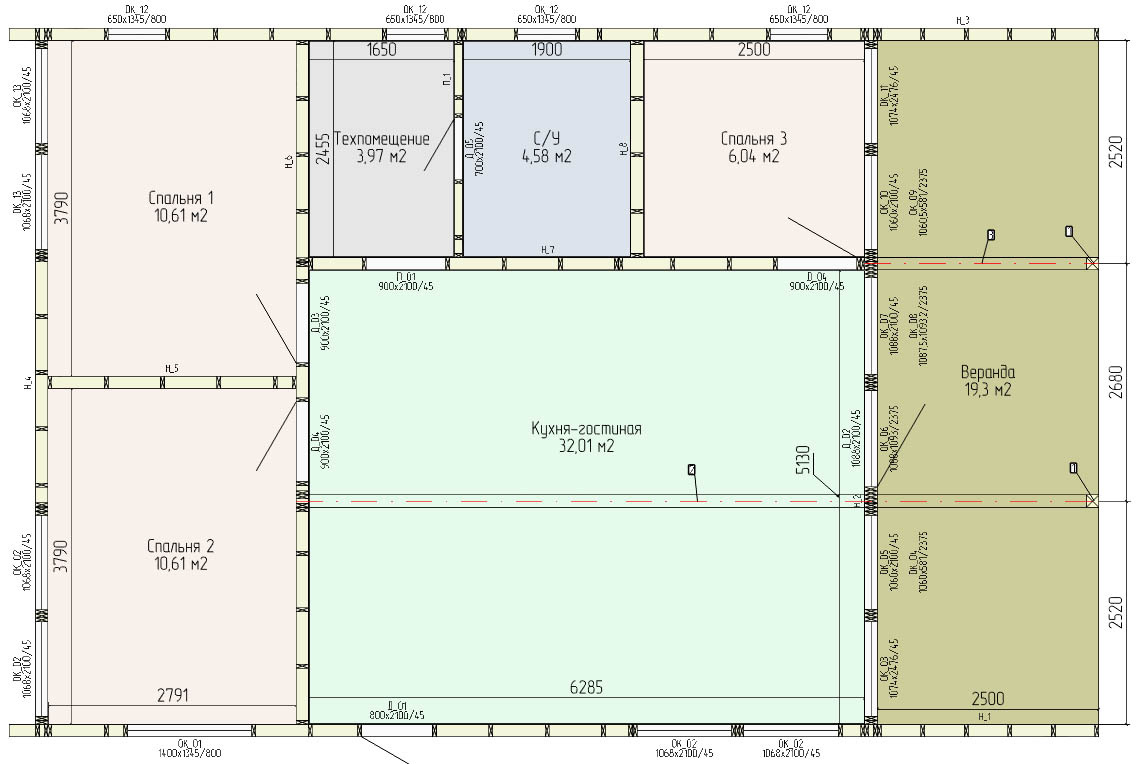
Приветствую всех! Наконец есть немного выходного дня, поэтому делюсь недавним проектом в стиле "БАРНХАУС", общей площадью на 67кв.м. с большой верандой на 19кв.м. Внешний вид Ссылка на проект https://boosty.to/karkasplan/posts/e79d6744-c4f2-49eb-8918-66b7657a9c13?share=success_publish_link Проект выполнен из строганной доски сечением 45х90, 140, 190мм. Стены разбиты на секции для облегчения сборки в два человека. Всем удачи!

Приветствую всех! Наконец есть немного выходного дня, поэтому делюсь недавним проектом в стиле "БАРНХАУС", общей площадью на 67кв.м. с большой верандой на 19кв.м.

Внешний вид

Ссылка на проект https://boosty.to/karkasplan/posts/e79d6744-c4f2-49eb-8918-66b7657a9c13?share=success_publish_link

Проект выполнен из строганной доски сечением 45х90, 140, 190мм. Стены разбиты на секции для облегчения сборки в два человека.

Всем удачи!