Добавить в корзинуПозвонить
Найти в Дзене
АО «ТАМАК»

«Эгоист-307»: когда роскошь становится образом жизни

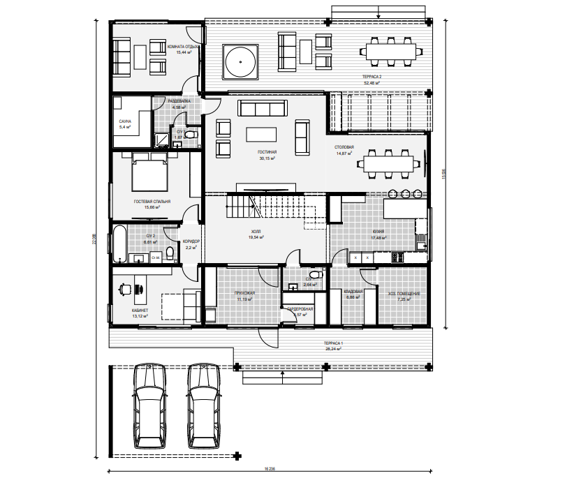
Знаете, что реально цепляет в загородной жизни? Не просто дом с участком, а вот эти уютные терраски, куда можно выскочить прямо из спальни! Да-да, те самые места, где утро начинается не с кофе на кухне, а с чашечки на свежем воздухе. Проект «Эгоист-307» — это как раз то, что доктор прописал для тех, кто устал от бетонных коробок. Представьте себе: четыре террасы! Две из них — на втором этаже, с личным выходом из спален. Мечта, а не решение, особенно если вы из тех, кто обожает встречать рассвет или провожать закат в тишине и уюте. Первый этаж — это вообще отдельная история. Тут вам и гостиная-великанша на 30,15 квадратов, где можно устраивать вечеринки до утра. И столовая, и кухня — всё как положено. А ещё кабинет для работы (ну или для того, чтобы спрятаться от домашних), зона отдыха с сауной (с раздевалкой и санузлом — никаких компромиссов!). И гостевая спальня, которую можно переделать под что угодно — хоть под игровую, хоть под гардеробную. Второй этаж — это вообще песня! Три спаль

Знаете, что реально цепляет в загородной жизни? Не просто дом с участком, а вот эти уютные терраски, куда можно выскочить прямо из спальни! Да-да, те самые места, где утро начинается не с кофе на кухне, а с чашечки на свежем воздухе.

Проект «Эгоист-307» — это как раз то, что доктор прописал для тех, кто устал от бетонных коробок. Представьте себе: четыре террасы! Две из них — на втором этаже, с личным выходом из спален. Мечта, а не решение, особенно если вы из тех, кто обожает встречать рассвет или провожать закат в тишине и уюте.

Первый этаж — это вообще отдельная история. Тут вам и гостиная-великанша на 30,15 квадратов, где можно устраивать вечеринки до утра. И столовая, и кухня — всё как положено. А ещё кабинет для работы (ну или для того, чтобы спрятаться от домашних), зона отдыха с сауной (с раздевалкой и санузлом — никаких компромиссов!). И гостевая спальня, которую можно переделать под что угодно — хоть под игровую, хоть под гардеробную.

Второй этаж — это вообще песня! Три спальни, мастер-спальня — всё как в лучших домах. Два санузла, кладовая и постирочная — чтобы жизнь была не только красивой, но и удобной. Такая планировка — просто находка для большой семьи или для тех, кто любит принимать гостей.

Характеристики проекта:

Общая площадь: 446.3 м²

Площадь помещений: 306,53 м²

Площадь террас и балконов: 139.77 м²

Общая площадь 1 этажа: 258.95 м²

Общая площадь 2 этажа: 187.02 м²

Спальни, шт.: 4

Санузлы, шт.: 6

Кабинеты, шт.: 1

Техническое помещение: да

Гараж: да

Сауна: да

В общем, если вы давно мечтали о доме, где каждый уголок продуман до мелочей — «Эгоист-307» может стать именно тем местом, куда захочется возвращаться снова и снова.