Найти в Дзене
Глеб Фостенко|MFG-SCHOOL

Новости с полей

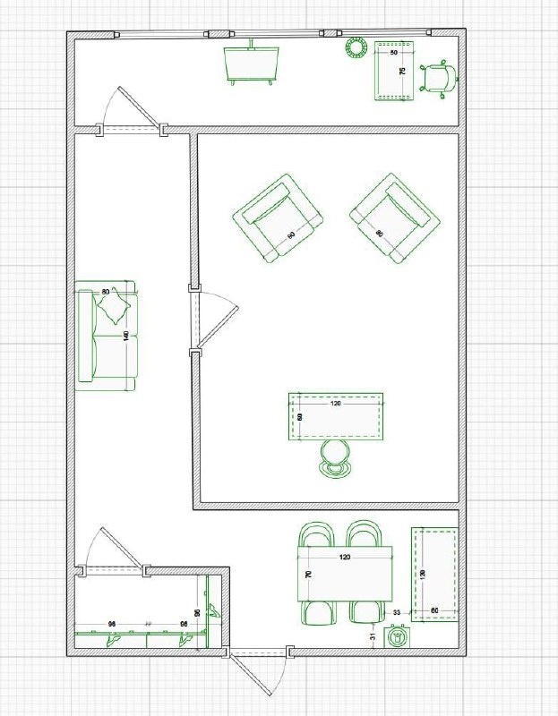
Новости с полей Короче 😄 Я резко влип в ремонт офиса и переезд, тк места мало (сейчас у нас 22 квадрата) Офис нашли. 72 квадрата. Задача: за 6 дней сделать из брошенного офиса современную подкаст студию, офис, зону отдыха, склад, а также сдать старое помещение и перенести всю мебель + докупить новую. Игра началась. Вводные данные: бюджет есть, бригады ремонтной нет, арендатор старый съезжает 30 июня, надо покупать стройматериалы, а хранить их негде. Поддержите ❤️, а то мои нервы закончатся уже очень скоро. Но эмоции..эмоции..не передать словами. Мы прям школа…компания.. Я в это не верю По моим подсчетам все это удовольствие выйдет примерно в 1.5 миллиона вместе с оборудованием.

Новости с полей

Короче 😄

Я резко влип в ремонт офиса и переезд, тк места мало (сейчас у нас 22 квадрата)

Офис нашли.

72 квадрата.

Задача: за 6 дней сделать из брошенного офиса современную подкаст студию, офис, зону отдыха, склад, а также сдать старое помещение и перенести всю мебель + докупить новую.

Игра началась.

Вводные данные: бюджет есть, бригады ремонтной нет, арендатор старый съезжает 30 июня, надо покупать стройматериалы, а хранить их негде.

Поддержите ❤️, а то мои нервы закончатся уже очень скоро.

Но эмоции..эмоции..не передать словами.

Мы прям школа…компания..

Я в это не верю

По моим подсчетам все это удовольствие выйдет примерно в 1.5 миллиона вместе с оборудованием.

-2