Добавить в корзинуПозвонить
Найти в Дзене

Новый проект загородного дома «Луч» | Строительство домов в Тюмени

Это одноэтажный дом с общей площадью 66,96 м², дополнительно крыльцо 5,42 м². Дом создан для тех, кто ценит простые и крепкие формы. Планировка дома продумана до мелочей, обеспечивая максимальный комфорт при компактной площади. Компактные размеры делают дом экономичным в строительстве и эксплуатации. Идеально для: Мы уверены, что индивидуальный подход — это ключ к созданию идеального дома. Именно поэтому любой проект, представленный на нашем сайте, мы можем адаптировать под желания и нужды наших клиентов. Каталог проектов в Тюмени Каталог проектов в Москве Также подписывайтесь на соцсети, чтобы быть в курсе наших акций и новостей! Наш канал в Telegram Мы в «ВКонтакте»

Это одноэтажный дом с общей площадью 66,96 м², дополнительно крыльцо 5,42 м². Дом создан для тех, кто ценит простые и крепкие формы.

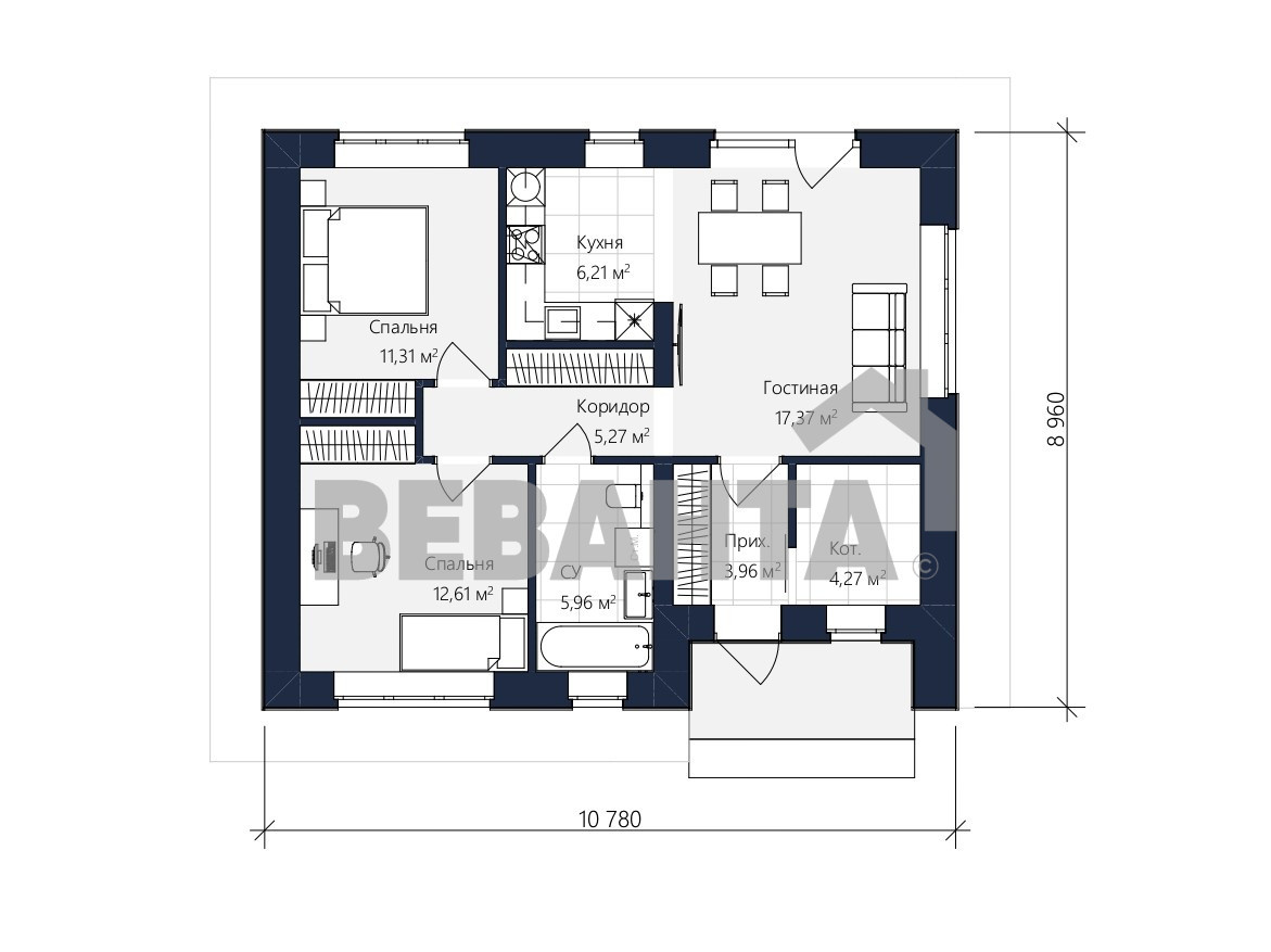
Планировка дома продумана до мелочей, обеспечивая максимальный комфорт при компактной площади.

Основные параметры по плану:

  • Гостиная: 17,37 м²
  • Кухня: 6,21 м²
  • Две спальни: 12,61 и11,31 м²
  • Санузел: 5,96 м²
  • Коридор: 5,27 м²
  • Прихожая: 3,96 м²
  • Котельная: 4,27 м²
  • Крыльцо: 5,42 м²
Поланировка проекта «Луч»
Поланировка проекта «Луч»

Компактные размеры делают дом экономичным в строительстве и эксплуатации.

Идеально для:

  1. Небольших семей, ищущих уютное и стильное жилье.
  2. Любителей классического дизайна.
  3. Тех, кто ценит энергоэффективность и функциональность.

Мы уверены, что индивидуальный подход — это ключ к созданию идеального дома. Именно поэтому любой проект, представленный на нашем сайте, мы можем адаптировать под желания и нужды наших клиентов.

Каталог проектов в Тюмени
Каталог проектов в Москве

Также подписывайтесь на соцсети, чтобы быть в курсе наших акций и новостей!

Наш канал в Telegram
Мы в «ВКонтакте»