Найти в Дзене

Необычная планировка, для стандартной 3-комнатной квартиры

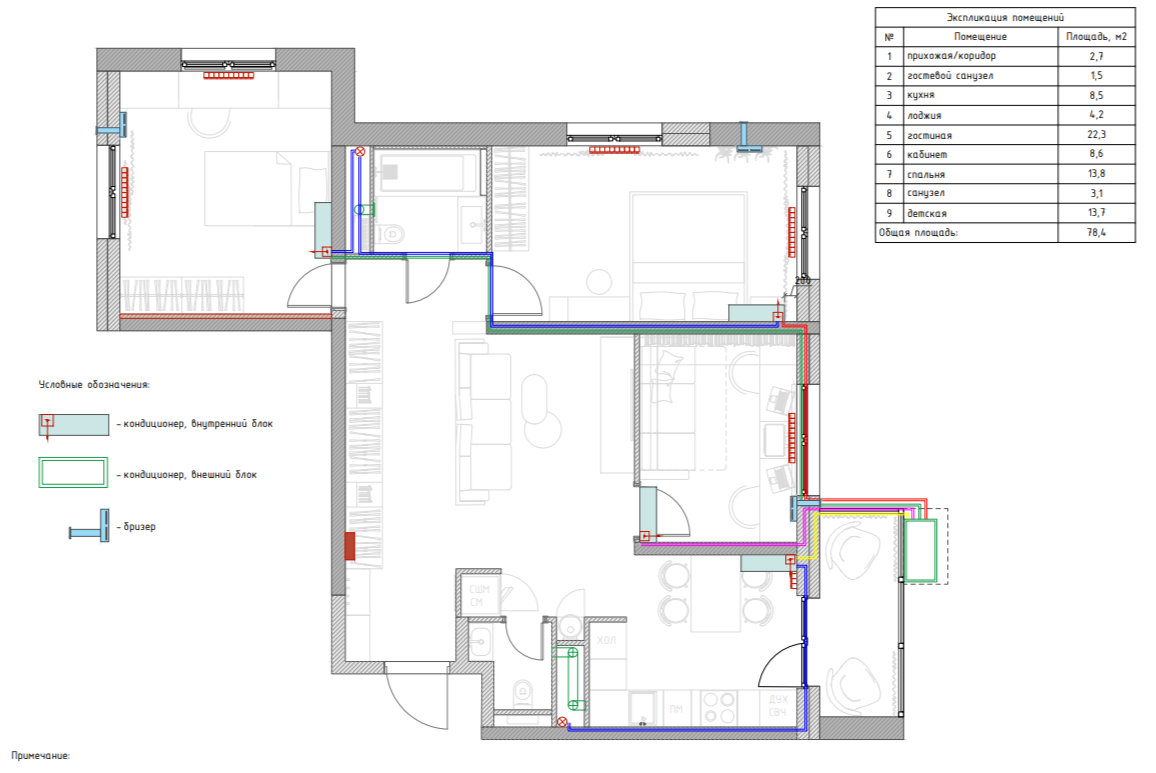
Одним из минусов наших квартир является коридор, часто он занимает много места, при этом нельзя назвать его функциональным пространством. Поэтому в нашем новом проекте мы избавились от него без сожалений! Показываем, что получилось. Квартира в новостройке, часть обозначенных на плане перегородок – это блоки, выложенные в 1 ряд. Лоджия с панорамным остеклением, важно было увеличить объем света, поступающего в кухню – это главный источник света в нашей открытой общей зоне. Поэтому балконный блок был заменен на две распашных двери. Дверной проем отсутствует полностью, ширина прохода 110 см, за счет смещения обеденной группы к центру, остается достаточно места для свободного передвижения. Базовый цвет светлый, один из теплых оттенков белого, на его фоне акцентный малиновый выглядит ярко и сочно. В противовес яркой обивке и абажуру, фасады кухни покрывает эмаль нежного оливкового цвета, а пустую стену над столом заполняет панно из черно-белых рисунков – капля монохрома балансирует яркость а

Одним из минусов наших квартир является коридор, часто он занимает много места, при этом нельзя назвать его функциональным пространством. Поэтому в нашем новом проекте мы избавились от него без сожалений! Показываем, что получилось.

Квартира в новостройке, часть обозначенных на плане перегородок – это блоки, выложенные в 1 ряд. Лоджия с панорамным остеклением, важно было увеличить объем света, поступающего в кухню – это главный источник света в нашей открытой общей зоне. Поэтому балконный блок был заменен на две распашных двери.

Портфолио Remplanner
Портфолио Remplanner

Дверной проем отсутствует полностью, ширина прохода 110 см, за счет смещения обеденной группы к центру, остается достаточно места для свободного передвижения. Базовый цвет светлый, один из теплых оттенков белого, на его фоне акцентный малиновый выглядит ярко и сочно.

Портфолио Remplanner
Портфолио Remplanner

В противовес яркой обивке и абажуру, фасады кухни покрывает эмаль нежного оливкового цвета, а пустую стену над столом заполняет панно из черно-белых рисунков – капля монохрома балансирует яркость акцентов.

Портфолио Remplanner
Портфолио Remplanner

Навесные шкафы здесь до потолка, но это один ярус, просто увеличенный размер. Фасады контрастные, цвета орех. Он повторяется и в остальной мебели в квартире – один из объединяющих элементов.

Портфолио Remplanner
Портфолио Remplanner

Кстати, кухня хоть и угловая, но начинается и заканчивается колонной со встроенной техникой – изящный штрих, делающий концепт более аккуратным и лаконичным. Кстати, обратите внимание на важную деталь – плинтуса делаются чуть ниже линии фасадов, иначе не откроется холодильник.

Портфолио Remplanner
Портфолио Remplanner

Добавив несколько каркасных перегородок, мы решили две задачи. Во-первых, функционально использовали нишу возле вентиляционной шахты, установив там встроенный шкаф, в открытом цоколе которого расположили робота-пылесоса. Во-вторых, сбоку от гостевого санузла у нас появился встроенный шкаф со стиральной и сушильной машинами. Берите на вооружение, если не можете найти место в ванной.

Портфолио Remplanner
Портфолио Remplanner

В верхней части шкафа, естественно, организовано хранение, а цветная плитка позади него – пространство прихожей. Фактически, это еще одна задача, которую решает наш шкаф – удлинение прихожей, превращение ее из открытой в закрытую.

Портфолио Remplanner
Портфолио Remplanner

Почти всю стену занимает зеркало в очень изящном обрамлении латунного цвета. Впрочем, и сама стена, точнее стены, достойны внимания – глубокий и сложный оттенок зеленого смотрится роскошно, особенно в сочетании с выбранной плиткой.

Портфолио Remplanner
Портфолио Remplanner

Отделка дверного полотна – МДФ под покраску, естественно, всё покрашено в один цвет. Зона прихожей строго в рамках, обозначенных плиткой – симметрия добавляет шарма, как и рейки всё в том же ореховом цвете и изящные черные подвесы напротив зеркала. Ничего лишнего, всё строго по делу, практично и красиво. Пол, кстати, с подогревом, что ускоряет высыхание обуви и добавляет комфорта при переобувании.

Портфолио Remplanner
Портфолио Remplanner

Прямо из прихожей у нас открывается вид на гостиную, которая стала единым целым с бывшим коридором и частью жилой комнаты. Она небольшая, с угловым диваном и нетривиальным декором в виде деревянных масок. Окна нет, зато комфортно смотреть телевизор в любое время суток.

Портфолио Remplanner
Портфолио Remplanner

Там, где заканчивается несущая стена, добавлен стеллаж шириной 55 см – декоративный элемент, зонирующий место установки дивана. Большой шкаф во всю стену стоит ровно там же, где и стоял бы, сохрани мы коридор. Так что единственное, что было потеряно – ощущение тесноты.

Портфолио Remplanner
Портфолио Remplanner

В шкафу три больших секции для хранения одежды и прочих вещей, со штангами и полками, а также две декоративные вставки-витрины. Оформление витрин – орех.

Кстати, пара слов о лоджии – конечно же, там расположилась зона отдыха. За яркость отвечает стильное кресло солнечного цвета, за веселье и релакс – подвесное кресло напротив. Ну а картинка с грустным енотиком просто для настроения.

Портфолио Remplanner
Портфолио Remplanner

Стена с телевизором – это еще и стена с дверью, именно за ней скрывается «пропавшее окно». ТВ-зона при этом оформлена максимально просто: пара гипсовых панелей для разбавления плоскости, и классная тумба в зеленом цвете.

Портфолио Remplanner
Портфолио Remplanner

За дверью полноценный кабинет для обоих супругов. В последние годы кабинет в квартире стал почти обязательной частью проекта, поскольку многие работают из дома, но не хотят превращать в офис спальню или кухню.

Портфолио Remplanner
Портфолио Remplanner

Наличие даже маленького, но отдельного рабочего пространства, положительно влияет на работоспособность и позволяет разделять работу и дом, даже если ты работаешь, не покидая квартиру.

Портфолио Remplanner
Портфолио Remplanner

И да, наличие кондиционера в таком маленьком пространстве обязательно. А проблему установки шкафа всегда можно решить с помощью навесного, пусть даже сильно урезанного варианта.

Портфолио Remplanner
Портфолио Remplanner

Общее пространство завершается обзором гостевого санузла, в отделке которого использована плитка под мозаику и покраска стен выше 120 см от пола. В нишу справа от входа удачно вписался умывальник, а в шкафчике над инсталляцией организовано хранение бытовых мелочей. Пол, кстати, кварцвиниловый ламинат, поэтому влага ему не страшна.

Портфолио Remplanner
Портфолио Remplanner

Продолжим тему санузлов – ванная комната, расположена в приватной части квартиры, между спальней и детской. Для ее оформления была выбрана плитка, повторяющая текстуру марокканской штукатурки таделакт. Красная, матовая плитка Tadelakt Berbere rett смотрится потрясающе, она согревает даже визуально.

Портфолио Remplanner
Портфолио Remplanner

При выборе красной плитки важно определиться – нужны вам холодные оттенки или же теплый, почти горячий красный? В ванной комнате теплые оттенки любых цветов выглядят лучше, они мягче и не придают коже специфический оттенок. Особенно важно это, если ванная комната у вас – это еще и место нанесения макияжа.

Портфолио Remplanner
Портфолио Remplanner

Встроенные полки-ниши здесь отличает форма – они со скругленными углами, поэтому отделка мозаичная, поскольку это единственная «гибкая» плитка. Но в сочетании с наборным декором в зоне умывальника мозаичные вставки стали настоящим украшением – скромным, но заметным.

Портфолио Remplanner
Портфолио Remplanner

Ну и главное, о чем нужно помнить – компаньон для яркой плитки всегда должен быть нейтральным. У нас это бежевая плитка, тоже Таделакт, смотрится она очень интересно, как переливы бархата, так что рекомендуем рассмотреть, если вы в поиске материалов.

Портфолио Remplanner
Портфолио Remplanner

Переходим к приватным помещениям, первой в списке будет детская, у них со спальней идентичная площадь, но разная форма, поэтому на чертеже кажется, что детская меньше, но разница между ними всего 10 см2.

Портфолио Remplanner
Портфолио Remplanner

Комната для девочки светлая и с минимальным количеством декоративных элементов. Главное было создать нейтральную базу, которую потом можно будет «раскрасить» по своему вкусу.

Портфолио Remplanner
Портфолио Remplanner

В обеих комнатах по два окна, что несколько сокращает число вариантов расстановки мебели. Кровать стоит напротив окна, которое оформлено красивым комплектом штор и тюля. Вдоль второго окна установлены тумбы-комоды, служащие подстольем письменного стола.

Портфолио Remplanner
Портфолио Remplanner

У противоположной стены расположили большой шкаф для одежды, центральные фасады сделали зеркальными.

Портфолио Remplanner
Портфолио Remplanner

Теплый оттенок дуба в сочетании с бежево-золотистым цветом стен, текстиля и фрезерованных элементов мебели придают комнате приятное, теплое свечение. Кому-то она может показаться пустой, но перегружать деталями небольшое пространство — не лучшая идея, к тому же дети обычно предпочитают самостоятельно украшать свое личное пространство.

Портфолио Remplanner
Портфолио Remplanner

Спальня у нас занимает комнату прямоугольной формы, тоже с двумя большими окнами. К основному золотисто-бежевому цвету здесь добавили бирюзовый – цвет обивки кровати и пуфа, а также портьер.

Портфолио Remplanner
Портфолио Remplanner

Слева от кровати, как и в детской, большой шкаф для одежды. Он разделен на две половины, наполнение стандартное: выдвижные ящики в нижней части, штанги и пара полок на антресолях.

Портфолио Remplanner
Портфолио Remplanner

Стены в спальне декорированы молдингами, которые добавляют объема однотонным стенам. Вместо люстры несколько вариантов потолочных светильников: стандартные встроенные и поворотные-накладные, заменяющие в данном случае трековый свет.

Портфолио Remplanner
Портфолио Remplanner

Прикроватная мебель здесь по индивидуальному проекту, она состоит из стандартной тумбы, и тандема – консоль-туалетный столик плюс небольшой комод. Обратите внимание, что при наличии молдингов, важно заранее выбрать мебель и знать ее точные размеры, иначе к стене она не встанет.

На этом всё, больше готовых проектов с чертежами и визуализациями (а также без них) можно найти у нас в портфолио. По вопросам индивидуального дизайн-проекта или заказа мебели, вы всегда можете связаться с нами по указанным здесь или на сайте контактам.