Найти в Дзене

Проект дома S-252, Самара

Продолжаем публиковать некоторые из текущих работ, ведь работа у нас ведется всегда - по изменениям и индивидуальным проектам. Представленный проект являет собой комфортное решение на две спальни - с открытым пространством дневной зоны, гардеробными и приличными спальнями, которые, при желании, можно увеличить. При этом здесь очень простая архитектура - всего одна несущая, а все коммуникации собраны в одной зоне. Изменения - 1. Замена материала стен на блок 375мм, плотностью D-350 + фасадная штукатурка. 2. Замена кровли на четырехскатную. 3. Перекрытия потолка плиты 220м. 4. Увеличение размеров дома на 0,5 метра по ширине, сделать 12*10. Увеличиваем ванную с котельной на 0.25 м и спальни на 0.25 Приобретая проект в Стройпрогресс31, Вы можете быть уверены, что мы всегда на связи и готовы ответить на возникающие вопросы и подсказать нюансы, даже спустя годы после его приобретения:)

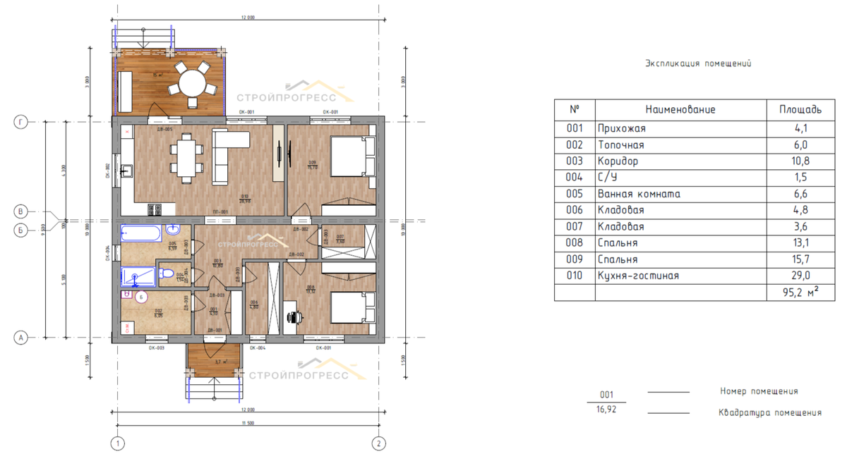
Продолжаем публиковать некоторые из текущих работ, ведь работа у нас ведется всегда - по изменениям и индивидуальным проектам.

Представленный проект являет собой комфортное решение на две спальни - с открытым пространством дневной зоны, гардеробными и приличными спальнями, которые, при желании, можно увеличить.

При этом здесь очень простая архитектура - всего одна несущая, а все коммуникации собраны в одной зоне.

Изменения -

1. Замена материала стен на блок 375мм, плотностью D-350 + фасадная штукатурка.

2. Замена кровли на четырехскатную.

3. Перекрытия потолка плиты 220м.

4. Увеличение размеров дома на 0,5 метра по ширине, сделать 12*10. Увеличиваем ванную с котельной на 0.25 м и спальни на 0.25

-2
-3
-4

Приобретая проект в Стройпрогресс31, Вы можете быть уверены, что мы всегда на связи и готовы ответить на возникающие вопросы и подсказать нюансы, даже спустя годы после его приобретения:)