Добавить в корзинуПозвонить
Найти в Дзене
CLT Segezha

Дом из клееного бруса в хайтек стиле

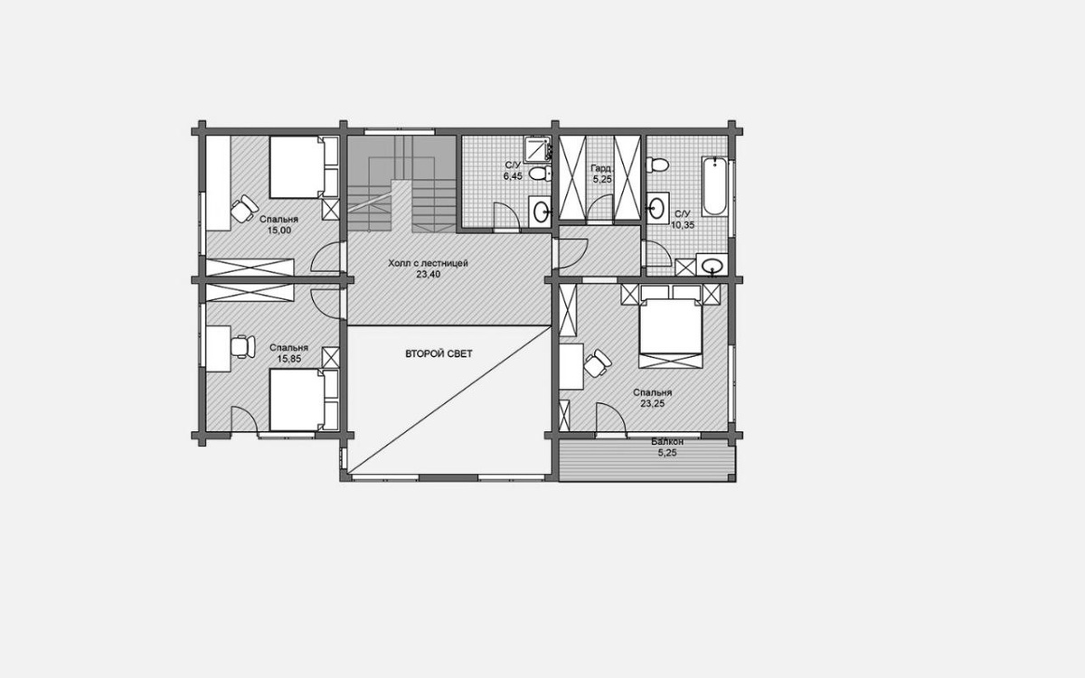
Дом из клееного бруса в хайтек стиле - 📐 Общая площадь 348 м² - 🌡 Теплая площадь 278 м² - 🏠 Этажность 2 этажа - 🛏 4 спальни - 🚽 3 санузла (2 этажа) Современный дизайн в стиле хайтек, который сочетает функциональность и эстетику. Идеальный выбор для комфортной жизни и впечатляющего внешнего вида. 📞 Для подробной информации позвоните 89523817471. 📧 Присылайте свои проекты на почту, выдадим смету dirprojectstroy@mail.ru. #каталогдомов

Дом из клееного бруса в хайтек стиле

- 📐 Общая площадь 348 м²

- 🌡 Теплая площадь 278 м²

- 🏠 Этажность 2 этажа

- 🛏 4 спальни

- 🚽 3 санузла (2 этажа)

Современный дизайн в стиле хайтек, который сочетает функциональность и эстетику. Идеальный выбор для комфортной жизни и впечатляющего внешнего вида.

📞 Для подробной информации позвоните 89523817471.

📧 Присылайте свои проекты на почту, выдадим смету dirprojectstroy@mail.ru.

#каталогдомов

-2
-3