Найти в Дзене

ТИПОВОЙ ПРОЕКТ, КОТОРЫЙ ПЕРЕСТАЛ БЫТЬ ТИПОВЫМ. Как мы адаптировали “Сапсан” под семью с ребенком

Подходит ли вам типовой проект? Возможно. Но этот случай покажет, как важно подстроить его под свой образ жизни. Наши заказчики — молодая семья с маленьким ребёнком — пришли к нам с мечтой о тёплом, уютном доме из клееного бруса. Им понравился наш типовой проект “Сапсан” — за его гармоничную планировку, стильный облик и чёткие сроки строительства. Но уже на первых встречах стало понятно: чтобы дом стал по-настоящему удобным для повседневной жизни, важно адаптировать его под привычки и желания семьи. Базовая версия “Сапсана” выглядела так: Общая площадь — 97 м² + 32 м² (терраса и балкон) Первый этаж: • Прихожая • Кухня-гостиная с выходом на открытую террасу • Санузел • Техническое помещение Второй этаж: • Две спальни • Второй санузел • Балкон Что изменилось — и зачем: Чтобы учесть ритм жизни и потребности семьи, мы внесли несколько ключевых изменений: 1. Открытую террасу сделали тёплой и застекленной Теперь это уютная зона отдыха круглый год — с панорамными окнами и видом на участок.

Подходит ли вам типовой проект? Возможно. Но этот случай покажет, как важно подстроить его под свой образ жизни.

Наши заказчики — молодая семья с маленьким ребёнком — пришли к нам с мечтой о тёплом, уютном доме из клееного бруса. Им понравился наш типовой проект “Сапсан” — за его гармоничную планировку, стильный облик и чёткие сроки строительства.

Но уже на первых встречах стало понятно: чтобы дом стал по-настоящему удобным для повседневной жизни, важно адаптировать его под привычки и желания семьи.

Базовая версия “Сапсана” выглядела так:

Общая площадь — 97 м² + 32 м² (терраса и балкон)

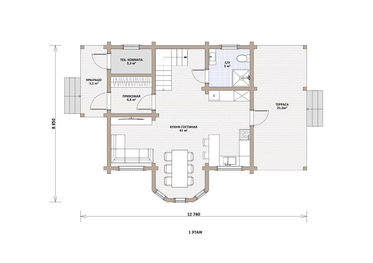
Первый этаж:

• Прихожая

• Кухня-гостиная с выходом на открытую террасу

• Санузел

• Техническое помещение

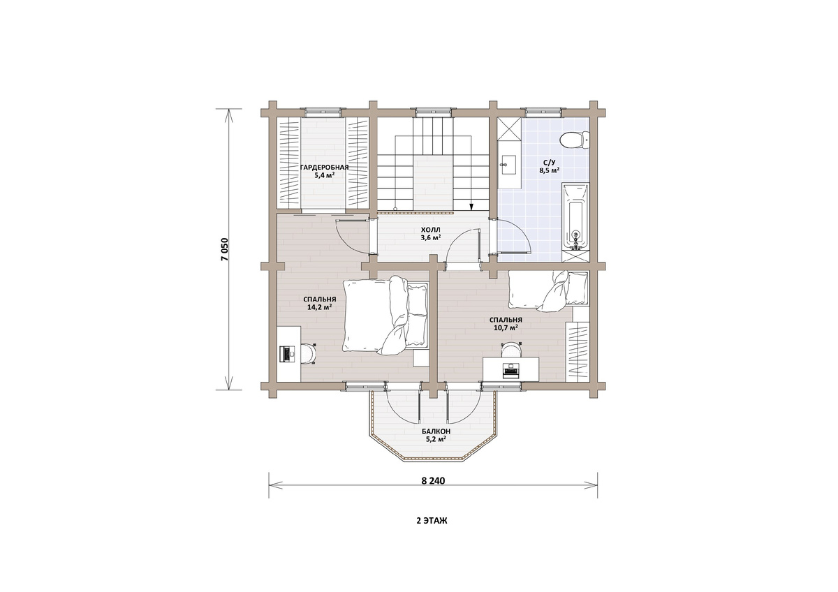
Второй этаж:

• Две спальни

• Второй санузел

• Балкон

Что изменилось — и зачем:

Чтобы учесть ритм жизни и потребности семьи, мы внесли несколько ключевых изменений:

1. Открытую террасу сделали тёплой и застекленной

Теперь это уютная зона отдыха круглый год — с панорамными окнами и видом на участок.

2. Сделали пристрой к кухне

Так кухня и гостиная стали двумя отдельными комнатами. Уютнее и функциональнее.

3. Переосмыслили план второго этажа

Вместо гардероба и второго санузла заказчики захотели три спальни — для родителей, ребёнка и гостей.

4. Добавили отдельный вход в техническое помещение

Теперь туда можно попасть прямо с улицы, не заходя в дом — удобно, практично, особенно зимой.

Новый результат:

Общая площадь после изменений: 118 м² + 23 м² (балкон и тёплая терраса)

Посмотрите, какой результат получился:

Сегодня семья уже живёт в этом доме.

Утром — мягкий свет в тёплой террасе и аромат кофе. Вечером— уютная гостиная и детский смех.

Типовой проект стал основой, но именно персональные доработки сделали его по-настоящему “своим”.

А вы бы что добавили в свой дом?

Напишите в комментариях. какая зона вам ближе: теплая терраса или открытая веранда? Какие решения сделали бы ваш дом идеальным?

Типовой проект — это не ограничение. Это база, которую можно гибко адаптировать под ваши нужды.

Присматриваетесь к Сапсану? Хотите обсудить, как доработать любой проект под свою жизнь? Заполните форму по ссылке, мы свяжемся с Вами, посоветуем, подскажем и подберём.