Найти в Дзене
G-dzen

Бойлер косвенного нагрева

Бойлер косвенного нагрева — это накопительный водонагреватель, который нагревает воду не за счёт встроенного источника тепла, а за счёт тепла, полученного от внешнего источника через теплообмен. Отсюда и название: нагрев воды происходит косвенно, то есть не напрямую от электричества или газа внутри бойлера, а через теплообменник, встроенный в бак. Внутри бака находится теплообменник, по которому циркулирует теплоноситель от внешней системы отопления — чаще всего это котёл. Тепло от теплоносителя передаётся воде в баке через стенки этого теплообменника, и таким образом происходит нагрев. Бойлер косвенного нагрева — это надёжное и экономичное решение для обеспечения дома горячей водой, особенно при наличии автономной системы отопления. Благодаря различным модификациям и возможностям подключения к разным источникам тепла, такие водонагреватели легко адаптируются под любые условия и потребности.
Оглавление

Устройство, виды и источники тепла

Что такое бойлер косвенного нагрева и почему он так называется?

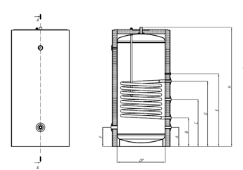
Принципиальная схема бойлера косвенного нагрева. (Источник - Navien.ru)
Принципиальная схема бойлера косвенного нагрева. (Источник - Navien.ru)

Бойлер косвенного нагрева — это накопительный водонагреватель, который нагревает воду не за счёт встроенного источника тепла, а за счёт тепла, полученного от внешнего источника через теплообмен. Отсюда и название: нагрев воды происходит косвенно, то есть не напрямую от электричества или газа внутри бойлера, а через теплообменник, встроенный в бак.

Внутри бака находится теплообменник, по которому циркулирует теплоноситель от внешней системы отопления — чаще всего это котёл. Тепло от теплоносителя передаётся воде в баке через стенки этого теплообменника, и таким образом происходит нагрев.

Преимущества бойлеров косвенного нагрева

  • Экономичность: при грамотном подборе и при наличии отопительного котла, горячая вода приготовляется быстро с меньшим расходованием ресурсов.
  • Накопительный принцип: позволяет обеспечить стабильное наличие горячей воды даже при большом расходе.
  • Долговечность: нет частого включения/выключения ТЭНов, меньше накипи и износа.

Основные виды бойлеров косвенного нагрева

  1. С одним теплообменником
    Классическая модель: один теплообменник подключается к отопительному котлу. Наиболее распространённый вариант в частных домах.
  2. С двумя теплообменниками
    Позволяет подключать два источника тепла — например, газовый котёл + солнечный коллектор. Один из теплообменников можно использовать как резерв или приоритизировать по температуре.
  3. С встраиваемым ТЭНом (комбинированные бойлеры)
    Такие модели имеют резервный электрический нагреватель. Это удобно в межсезонье, когда котёл не работает, а горячая вода всё ещё нужна.
  4. Нестандартные формы: настенные, вертикальные/горизонтальные
    Удобны в условиях ограниченного пространства.

Источники тепла для бойлеров косвенного нагрева

  • Газовый котёл — самый популярный источник. Высокая эффективность, стабильная температура.
  • Твердотопливный котёл — особенно актуально для домов без магистрального газа.
  • Электрический котёл — можно подключить как к основному, так и к резервному источнику.
  • Солнечные коллекторы — используются в комбинации с другими источниками, особенно в южных регионах.
  • Тепловые насосы — всё чаще применяются в современных системах, особенно в энергоэффективных домах.
  • Системы централизованного отопления — например, в многоквартирных домах с собственной котельной.

На что обратить внимание при выборе?

  • Объём бака — зависит от числа пользователей и потребностей. Для семьи из 3–4 человек чаще всего достаточно 150–200 литров.
  • Материал бака — нержавеющая сталь, эмаль, стеклокерамика. Важно учитывать антикоррозийную защиту и наличие магниевого анода.
  • Производительность теплообменника — чем больше площадь, тем быстрее нагрев.
  • Теплоизоляция — влияет на сохранение тепла и снижение потерь.
  • Наличие дополнительных опций — встроенные ТЭНы, рециркуляция, датчики температуры.

Бойлер косвенного нагрева — это надёжное и экономичное решение для обеспечения дома горячей водой, особенно при наличии автономной системы отопления. Благодаря различным модификациям и возможностям подключения к разным источникам тепла, такие водонагреватели легко адаптируются под любые условия и потребности.