Найти в Дзене
ДОМ ОТ ПРОФИ

ТОП 3 проекта для семей с детьми

Дома для семей с 1,2,3 ребенка + доп решения: гардеробные, с/у 🧸 Мы работаем по маткапиталу ✅ Пишите нам в телеграм-бот, чтобы записаться на консультацию в офисе, на которой мы расскажем вам, как получить бесплатный проект и покажем, как будет выглядеть ваш будущий дом 🏡 ▪️Общая площадь 161,5 кв.м. ▪️Площадь помещений 118,8 кв.м. (121,7 кв.м) 🔰 План 1 этажа: - кухня-гостиная 30 кв.м. с выходом на террасу 15 кв.м. - санузел - котельная - спальня 10 кв.м. - кладовая в подлестничном пространстве 🔰 План 2 этажа: - 4 спальни - санузел Планировка универсальная: - подойдет как многодетной семье, так и семье с 1-2 ребенком. - Вся зона отдыха расположена на 2 этаже, поэтому даже долгие посиделки с друзьями не станут помехой для детей, которые рано уходят спать ▪️Общая площадь 130 кв.м. ▪️Площадь помещений 104 кв.м. ▪️Габариты 8,6 х 7,2 м 🔰План 1 этажа: - большая кухня-гостиная с выходом во двор - комната (гостевая, комната отдыха, кабинет) - санузел - гардеробная для верхней одежды - бойле
Оглавление

Дома для семей с 1,2,3 ребенка + доп решения: гардеробные, с/у 🧸

Мы работаем по маткапиталу ✅

Пишите нам в телеграм-бот, чтобы записаться на консультацию в офисе, на которой мы расскажем вам, как получить бесплатный проект и покажем, как будет выглядеть ваш будущий дом 🏡

1️⃣Проект двухэтажного дома 22-162-1

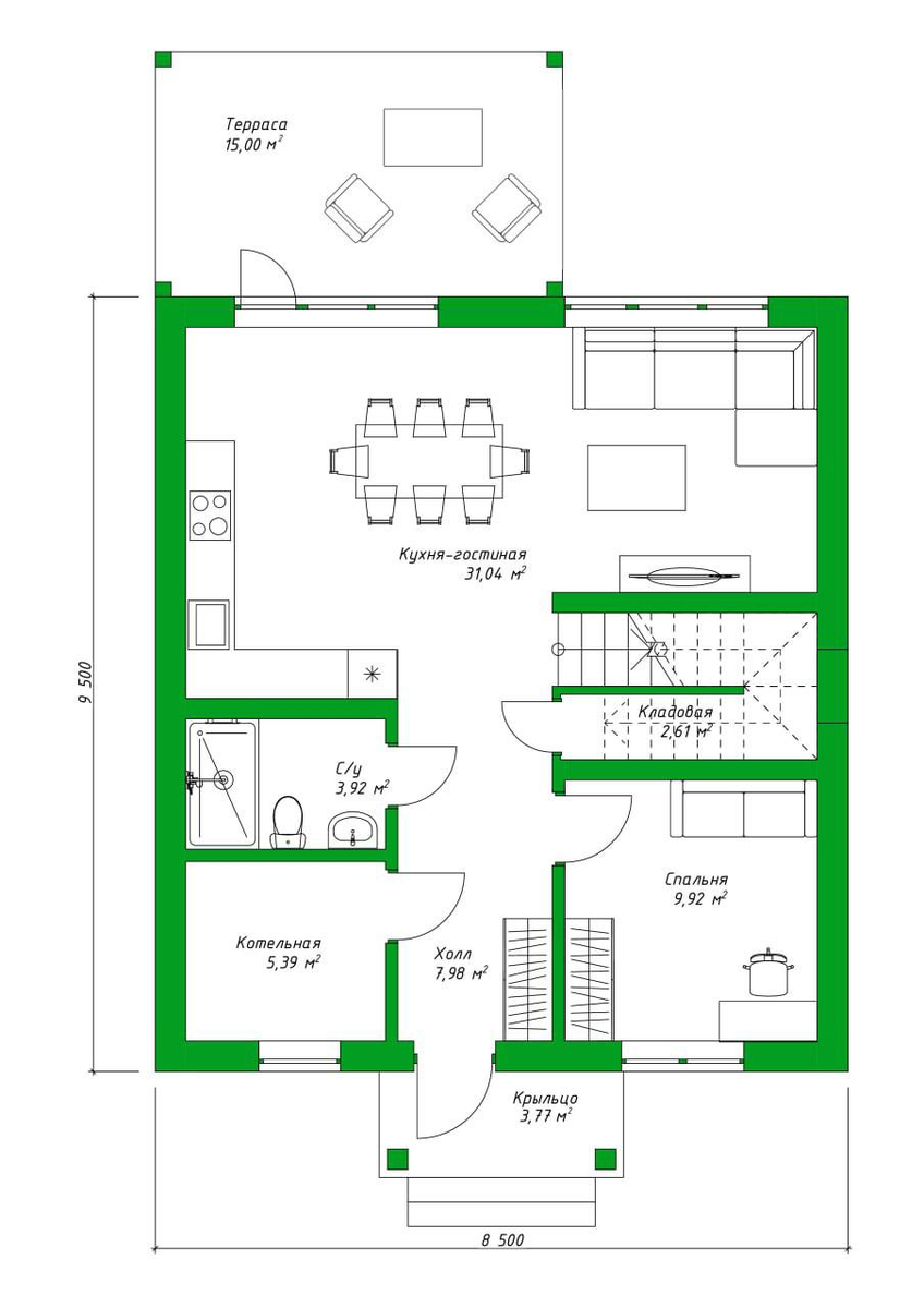
▪️Общая площадь 161,5 кв.м.

▪️Площадь помещений 118,8 кв.м. (121,7 кв.м)

🔰 План 1 этажа:

- кухня-гостиная 30 кв.м. с выходом на террасу 15 кв.м.

- санузел

- котельная

- спальня 10 кв.м.

- кладовая в подлестничном пространстве

-2

🔰 План 2 этажа:

- 4 спальни

- санузел

-3

Планировка универсальная:

- подойдет как многодетной семье, так и семье с 1-2 ребенком.
- Вся зона отдыха расположена на 2 этаже, поэтому даже долгие посиделки с друзьями не станут помехой для детей, которые рано уходят спать

2️⃣Проект двухэтажного дома с мансардой 15-13

-4

▪️Общая площадь 130 кв.м.

▪️Площадь помещений 104 кв.м.

▪️Габариты 8,6 х 7,2 м

🔰План 1 этажа:

- большая кухня-гостиная с выходом во двор

- комната (гостевая, комната отдыха, кабинет)

- санузел

- гардеробная для верхней одежды

- бойлерная

-5

🔰План 2 этажа:

- 3 спальни

- гардеробная

- санузел

-6
Простой, но в то же время стильный и функциональный дом — то, что нужно для семьи с детьми ✅

3️⃣Проект двухэтажного дома 21-186-1

-7

▪️ Общая площадь 186 кв.м.

▪️ Площадь помещений 144 кв.м.

🔰 План 1 этажа

- большая кухня-гостиная

- спальня

- санузел

- тамбур с бойлерной

-8

🔰 План 2 этажа

- 4 спальни

- санузел

-9
Дом с 5-ю просторными комнатами, которые можно использовать на ваше усмотрение: детские (если у вас многодетная семья), гостевая для любителей приглашать гостей в дом, кабинет для главы семейства, игровая, кинотеатр, спортзал, библиотека и тд.