Добавить в корзинуПозвонить
Найти в Дзене
INMYROOM

9 классных дизайн-решений, подсмотренных в двушке-хрущевке 47 м²

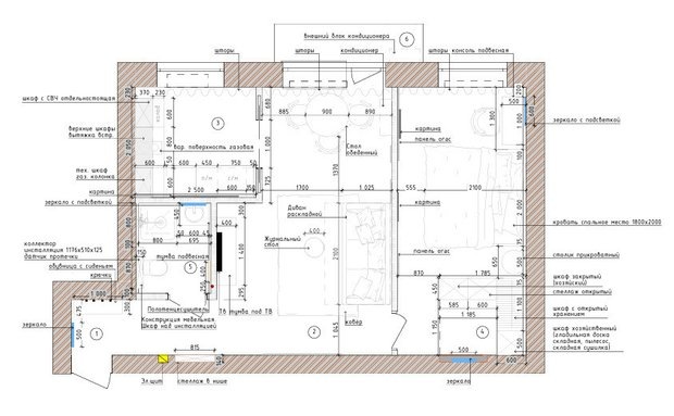
Вдохновляйтесь и берите на заметку! Перед дизайнером Полиной Чернышовой стояла задача создать интерьер, который бы вызывал эмоции и не оставлял равнодушным. Требовалось оформить двухкомнатную квартиру для сдачи в аренду, комфортную для проживания двух-трех человек. Показываем интересные решения из проекта, которые сделали эту двушку по-настоящему уникальной. Кухню объединили с гостиной — это сделало пространство более светлым и просторным. Вход в кухню расположен со стороны гостиной, а между ними установлена раздвижная дверь кассетного типа, что позволяет гибко разделять и объединять зоны. Для спальни выбрали обои с принтом медузы и растительным сюжетом. Это создает ощущение глубины и уюта, погружая в атмосферу спокойствия и комфорта, что особенно важно для пространства, предназначенного для отдыха. В зоне обеденной группы использован прием колор-блок. Этот подход добавляет визуальный интерес и разнообразие в интерьер. Выделение обеденной зоны помогает создать динамичное пространство,
Оглавление

Вдохновляйтесь и берите на заметку!

Перед дизайнером Полиной Чернышовой стояла задача создать интерьер, который бы вызывал эмоции и не оставлял равнодушным. Требовалось оформить двухкомнатную квартиру для сдачи в аренду, комфортную для проживания двух-трех человек. Показываем интересные решения из проекта, которые сделали эту двушку по-настоящему уникальной.

 📷
📷

1. Объединение кухни с гостиной

Кухню объединили с гостиной — это сделало пространство более светлым и просторным. Вход в кухню расположен со стороны гостиной, а между ними установлена раздвижная дверь кассетного типа, что позволяет гибко разделять и объединять зоны.

 📷
📷

2. Обои с принтом

Для спальни выбрали обои с принтом медузы и растительным сюжетом. Это создает ощущение глубины и уюта, погружая в атмосферу спокойствия и комфорта, что особенно важно для пространства, предназначенного для отдыха.

 📷
📷

3. Колор-блок в обеденной зоне

В зоне обеденной группы использован прием колор-блок. Этот подход добавляет визуальный интерес и разнообразие в интерьер. Выделение обеденной зоны помогает создать динамичное пространство, делая его более современным и стильным.

 📷
📷

4. Индивидуальный дизайн кухни

Кухня была разработана на заказ, с яркими фасадами из МДФ в эмали. Верхние фасады дополнены вставками из перфорированного металла для вентиляции, что делает дизайн не только стильным, но и функциональным.

 📷
📷

5. Подоконник-столешница

Подоконник служит комфортным местом для кофе, быстрых завтраков и перекусов. Это решение помогает максимально использовать пространство и добавить в него функциональности, превращая подоконник в полезную часть интерьера.

 📷
📷

6. Арт на стене кухни

Арт на стене кухни был создан Полиной самостоятельно. Она решила изобразить довольных дам с Балтийского побережья в пляжный сезон. Это добавляет индивидуальности и характер кухонному пространству.

 📷
📷

7. Стильный стеллаж в прихожей

Ниша в прихожей оформлена стильным стеллажом для мелочей и декора. Он делает прихожую более организованной и функциональной, позволяя легко собирать все необходимые вещи перед выходом.

 📷
📷

8. Терракотовый цвет в интерьере

Во входной зоне стены и потолок окрашены в терракотовый цвет, который создает теплоту и уют. Он помогает связать пространство воедино, добавляя гармонии и стиля.

 📷
📷

9. Акцент в санузле

Цвет мебели в санузле стал акцентом, привлекая внимание и создавая стильный контраст с окружающим пространством. Он подчеркивает современный дизайн и гармонично сочетается с матовой хромированной сантехникой.

 📷
📷

Каждое из этих решений помогло создать стильный и комфортный интерьер, который станет настоящим уютным убежищем для будущих жильцов.

Сейчас читают:

Спасибо, что читаете нас! ❤️

Если материал был полезен — поставьте лайк и отправьте другу.

А ещё больше интерьерных идей, советы экспертов и классные румтуры в нашем Telegram-канале. Подписывайтесь, вам точно понравится!