Добавить в корзинуПозвонить
Найти в Дзене

Комфорт для ВСЕХ в Проекте Дома 386 м² «П271» | 4 Спальни, 3 С/У, Просторная Терраса, Навес

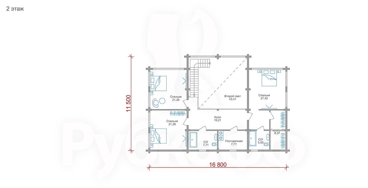
Этот проект проверен временем и опытом наших заказчиков. Главное фишкой этого дома стала невероятно просторная терраса, плавно перетекающая в навес для 4 автомобилей. Взгляните на визуализации — это выглядит невероятно масштабно! И, при этом, общая площадь относительно не велика, всего 386 м² на два этажа. Сохранить баланс между отдыхом и работой поможет личный кабинет на первом этаже. Второй этаж — зона спокойствия и уединения. Мастер-спальня обеспечит максимальный уровень комфорта и личного пространства. Навес на четыре машины — практичное решение для еще большего удобства. Строгий дизайн идеально вписывается в загородный ландшафт, а открытое пространство гостиной и столовой с выходом на огромную террасу с патио — зона семейного отдыха, общения с друзьями или праздников. Узнайте подробнее о материалах, комплектациях и стоимости проекта П271 от Рубкофф на нашем сайте, по телефону, или в личном Telegram-чате с вашим персональным менеджером. Готовое решение по загородным домам
+7 495 02

Этот проект проверен временем и опытом наших заказчиков. Главное фишкой этого дома стала невероятно просторная терраса, плавно перетекающая в навес для 4 автомобилей. Взгляните на визуализации — это выглядит невероятно масштабно! И, при этом, общая площадь относительно не велика, всего 386 м² на два этажа.

Сохранить баланс между отдыхом и работой поможет личный кабинет на первом этаже. Второй этаж — зона спокойствия и уединения. Мастер-спальня обеспечит максимальный уровень комфорта и личного пространства. Навес на четыре машины — практичное решение для еще большего удобства.

-2

Строгий дизайн идеально вписывается в загородный ландшафт, а открытое пространство гостиной и столовой с выходом на огромную террасу с патио — зона семейного отдыха, общения с друзьями или праздников.

Узнайте подробнее о материалах, комплектациях и стоимости проекта П271 от Рубкофф на нашем сайте, по телефону, или в личном Telegram-чате с вашим персональным менеджером.

РУБКОФФ

Готовое решение по загородным домам
+7 495 021 74 14
@rubkoffdom
rubkoff.ru

строительство домов под ключ, услуги по строительству домов, строительство дома 2025, купить загородный дом, стили домов, лучшие загородные дома, участок загородного дома, купить дом коттедж, продажа коттеджей