Добавить в корзинуПозвонить
Найти в Дзене
GREY HOUSE

Строительство каркасного энергоэффективного дома Норд с мастер спальней

Строительство каркасного дома по проекту «Норд» началось в д. Зверево. Компания Grey House приступила к возведению современного каркасного дома в д. Зверево, расположенной в Троицком а.о., г. Москве. Проект «Норд» с тремя спальнями сочетает в себе продуманную планировку, энергоэффективные технологии и высококачественные материалы. Размеры дома составляют 14,6×9,9 м, что позволяет разместить все необходимые помещения для комфортного проживания семьи: - Просторная кухня-гостиная – объединённое пространство для приготовления пищи, семейных обедов и приёма гостей. - Три отдельные спальни – каждая с оптимальным метражом. Одна спальня с собственным с/у. - Гардеробная – незаменимая комната в вашем загородном доме. - Санузел и тамбур – функциональные зоны, обеспечивающие удобство повседневного использования. - Техническое помещение и постирочная – дополнительные пространства для хранения и размещения инженерного оборудования. - Терраса площадью 15 м² – идеальное место для отдыха на свежем возд
Оглавление

Строительство каркасного дома по проекту «Норд» началось в д. Зверево.

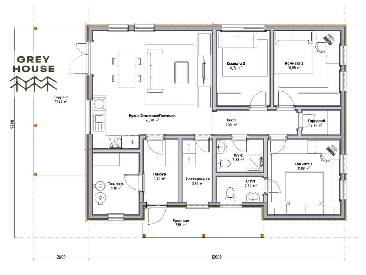
Дом по проекту Норд с мастер спальней
Дом по проекту Норд с мастер спальней

Компания Grey House приступила к возведению современного каркасного дома в д. Зверево, расположенной в Троицком а.о., г. Москве. Проект «Норд» с тремя спальнями сочетает в себе продуманную планировку, энергоэффективные технологии и высококачественные материалы.

Планировка и площадь дома

-2

Размеры дома составляют 14,6×9,9 м, что позволяет разместить все необходимые помещения для комфортного проживания семьи:

- Просторная кухня-гостиная – объединённое пространство для приготовления пищи, семейных обедов и приёма гостей.

- Три отдельные спальни – каждая с оптимальным метражом. Одна спальня с собственным с/у.

- Гардеробная – незаменимая комната в вашем загородном доме.

- Санузел и тамбур – функциональные зоны, обеспечивающие удобство повседневного использования.

- Техническое помещение и постирочная – дополнительные пространства для хранения и размещения инженерного оборудования.

- Терраса площадью 15 м² – идеальное место для отдыха на свежем воздухе в тёплое время года.

- Чердак – дополнительное место для хранения сезонных вещей.

Чердак в доме Норд
Чердак в доме Норд

Фотоотчет с объекта

Монтаж фундамента
Монтаж фундамента
Обвязка фундамента
Обвязка фундамента
Монтаж чернового пола
Монтаж чернового пола
Монтаж защитной сетки от грызуном и ветрозащитной мембраны
Монтаж защитной сетки от грызуном и ветрозащитной мембраны
Монтаж нулевого перекрытия
Монтаж нулевого перекрытия
Строительство каркаса
Строительство каркаса
Строительство каркаса дома
Строительство каркаса дома
Строительство каркаса
Строительство каркаса
Строительство каркаса
Строительство каркаса
Строительство каркаса
Строительство каркаса
Строительство каркаса
Строительство каркаса
Строительство каркаса
Строительство каркаса
Строительство каркаса
Строительство каркаса
Строительство каркаса
Строительство каркаса
Строительство каркаса
Строительство каркаса
Монтаж стропильной системы
Монтаж стропильной системы
Монтаж обрешетки и контробрешетки
Монтаж обрешетки и контробрешетки
Утепление дома
Утепление дома
Утепление дома
Утепление дома
Монтаж ветрозащитной мембраны
Монтаж ветрозащитной мембраны
Монтаж фасада из скандинавской доски с заводской покраской
Монтаж фасада из скандинавской доски с заводской покраской
Монтаж металлочерепицы
Монтаж металлочерепицы
Утепление дома
Утепление дома
Установка окон
Установка окон
Утеплнение дома и монтаж пароизоляции
Утеплнение дома и монтаж пароизоляции
-29
-30

Фото готового дома

-31
-32
-33
-34
-35
-36
-37
-38

Больше фотографий дома на сайте - https://grey-house.ru

Ключевые особенности строительства и комплектации

Дом возводится с применением современных технологий и проверенных материалов, обеспечивающих долговечность и энергоэффективность:

1. Фундамент и основание

- Свайно-бетонный фундамент (сваи 150×150×3000 и 4000 мм).

- Обвязка из бруса 150×150 мм.

- Защита от грызунов с помощью оцинкованной сетки 10×10 мм.

2. Каркас и утепление

- Несущий каркас из строганного бруса камерной сушки (45×195 мм).

- Утепление:

- Пол и кровля – 200 мм (Технониколь Роклайт).

- Наружные стены – 200 мм.

- Внутренние перегородки – 100 мм.

- Паро- и ветрозащита: Jutavek 115, Ютафол H110 с армированным скотчем Delta.

3. Кровля и фасад

- Покрытие кровли – металлочерепица толщиной 0,45 мм.

- Фасадная отделка – скандинавская доска с заводской покраской.

- Подшивка свесов и ветровая доска в едином стиле.

4. Окна и двери

- Энергоэффективные окна Rehau (70 мм) с двойным стеклопакетом и мультифункциональным стеклом.

- Фурнитура Roto для долговечной эксплуатации.

5. Внутренняя отделка

- Стены – без отделки.

- Потолок – без отделки.

- Пол – OSB-плиты (22 мм).

- Покрытие террасы и ступени – лиственница (28 мм).

Преимущества проекта

- Энергоэффективность – качественное утепление и современные окна снижают теплопотери.

- Продуманная планировка – оптимальное зонирование для комфортного проживания.

- Долговечные материалы – использование сухого строганного бруса, металлочерепицы и устойчивых к влаге пород дерева.

Как заказать аналогичный проект?

Компания Grey House специализируется на строительстве каркасных домов в Москве и Московской области. Если вас заинтересовал этот проект, вы можете:

- Узнать стоимость строительства под ключ.

- Заказать индивидуальную адаптацию планировки.

- Выбрать альтернативные варианты отделки и комплектации.

Контакты для связи:

- Телефон: 8 (495) 504-71-33

- WhatsApp: 8 (909) 622-35-22

- Подробнее о проектах: Grey House

Этот дом – отличное решение для тех, кто ценит качество, скорость строительства и комфорт загородной жизни. Следите за ходом строительства в нашем блоге!