Добавить в корзинуПозвонить
Найти в Дзене
ЭТО ВАШ ИНТЕРЬЕР

Купила себе запущенную квартиру и начала её преображать! Смотрите, какая прелесть получилась. Она показала фото ДО и ПОСЛЕ

Когда заходит речь о создании уютного пространства, которое будет отражать личность его владельца, важна каждая деталь. В этом проекте мы расскажем, как дизайнер Илона Рафикова из бюро Terracotta преобразила скромную двушку в московской брежневке в стильный и функциональный интерьер для молодой айтишницы, которая ценит комфорт, стиль и атмосферу уюта. Заказчица, работающая в сфере IT, обратилась к Илоне с четким запросом: создать интерьер, который будет не только функциональным, но и запоминающимся. Она искала решение, которое сочетало бы в себе яркие акценты и спокойные, уютные цвета, отражая ее интересы к моде и спорту. Не боясь экспериментировать с цветами, девушка пожелала видеть в интерьере оттенки зеленого, красного и голубого, которые должны были гармонично сочетаться с черно-белыми элементами и натуральным деревом. В процессе обсуждения дизайна Илона узнала, что заказчица увлекается путешествиями и фотографией. Это вдохновение стало основой для создания уникальных акцентов в ин

Когда заходит речь о создании уютного пространства, которое будет отражать личность его владельца, важна каждая деталь. В этом проекте мы расскажем, как дизайнер Илона Рафикова из бюро Terracotta преобразила скромную двушку в московской брежневке в стильный и функциональный интерьер для молодой айтишницы, которая ценит комфорт, стиль и атмосферу уюта.

Заказчица, работающая в сфере IT, обратилась к Илоне с четким запросом: создать интерьер, который будет не только функциональным, но и запоминающимся. Она искала решение, которое сочетало бы в себе яркие акценты и спокойные, уютные цвета, отражая ее интересы к моде и спорту. Не боясь экспериментировать с цветами, девушка пожелала видеть в интерьере оттенки зеленого, красного и голубого, которые должны были гармонично сочетаться с черно-белыми элементами и натуральным деревом.

В процессе обсуждения дизайна Илона узнала, что заказчица увлекается путешествиями и фотографией. Это вдохновение стало основой для создания уникальных акцентов в интерьере, которые отражают ее личные увлечения.

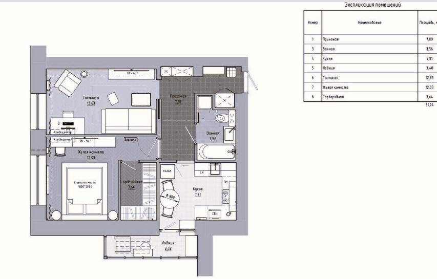
Планировка квартиры претерпела лишь небольшие изменения, но они оказались значительными для функциональности пространства. Санузел был объединен и немного расширен за счет коридора, что позволило создать более удобное и практичное помещение. В одной из комнат была организована уютная спальня с отдельной гардеробной, а во второй — светлая гостиная, где нашлось место для рабочего стола.

-2

Из кухни имеется выход на небольшую лоджию, которая была превращена в зону отдыха и хранения. Здесь можно наслаждаться утренним кофе или просто расслабиться после трудового дня. На лоджии планируется разместить небольшой зеленый уголок с комнатными растениями, которые будут радовать глаз и очищать воздух.

-3

П-образная кухня стала настоящей находкой для оптимизации пространства. Верхние шкафчики оставили только с одной стороны, что создало ощущение открытости и легкости. Насыщенный зеленый цвет кухонного гарнитура стал ярким акцентом, а латунные подвесные светильники добавили стильный штрих, придавая кухне нотку элегантности.

-4

Компактная обеденная зона, оформленная стульями разных цветов, создает непринужденную атмосферу для дружеских встреч и семейных ужинов. Заказчица мечтала о месте, где можно не только готовить, но и наслаждаться общением с близкими, поэтому в кухне предусмотрены уютные барные стулья, которые идеально вписываются в общий стиль.

В гостиной нашлось место для уютного дивана, телевизора и кресла для чтения. Заказчица, работающая из дома, нуждалась в удобном рабочем месте, поэтому около окна было организовано комфортное пространство для работы. Здесь установили стильный стол с подставкой для ноутбука и удобным креслом, что позволяет сосредоточиться на задачах, не теряя при этом связи с окружающим миром.

На стене за диваном разместили большой черно-белый постер в модной тематике, который стал ярким акцентом в интерьере. Слева от постера гармонично смотрится стильное бра, добавляющее теплый и уютный свет. Декор в виде фотографий из путешествий заказчицы, оформленных в едином стиле, создает атмосферу близости к дому и вдохновляет на новые свершения.

Основной цвет стен в комнатах был выбран светлый с теплым оттенком «ряженки». Этот цвет создает уютную атмосферу и визуально увеличивает пространство. Широкие напольные и потолочные плинтусы, окрашенные в цвет стен, добавляют высоты потолкам и делают комнаты более воздушными.

-8

В спальне шоколадный оттенок в сочетании с темно-красным и черно-белыми элементами создает стильный и уютный интерьер. Яркие декоративные подушки, элегантные светильники с латунными акцентами и стильные постеры придают пространству выразительность и индивидуальность. Особое внимание уделено функциональности: в спальне выделено место под гардеробную и туалетный столик, а также предусмотрено хранение под кроватью.

Каждый элемент декора был тщательно подобран в соответствии с пожеланиями заказчицы. Меховой плед и подушки в гостиной, текстиль в спальне — все это создает атмосферу уюта и стиля. На стенах разместили постеры, отражающие увлечения и стиль хозяйки, что придает пространству индивидуальность. Также в интерьере появились акценты в виде цветных ваз и оригинальных статуэток, которые привносят нотку игривости.

В прихожей использован приятный голубой оттенок, который прекрасно гармонирует с черно-белыми элементами и ярким красным цветом. Пространство организовано эффективно благодаря двум шкафам с зеркальными фасадами: один предназначен для хранения одежды, а другой — для технических нужд. Стильная обувница добавляет функциональности и подчеркивает общую эстетику интерьера.

В прихожей также предусмотрено место для хранения ключей и мелочей, благодаря чему пространство остается аккуратным и организованным. Настенное зеркало с подсветкой визуально расширяет пространство и добавляет света.

Санузел стал еще одной изюминкой проекта. Объединив пространство, дизайнеры разместили стиральную и сушильную машины, что позволило максимально эффективно использовать площадь. Для отделки стен и пола в мокрых зонах использовали плитку, а на остальных участках — влагостойкую краску.

Над инсталляцией расположен технический шкаф с гребенками, а зеркало с подсветкой и освещение цоколя ванны создают эффект «парения». Накладная раковина из речного камня с уникальной текстурой гармонирует с латунной сантехникой, создавая уютное сочетание с приглушенным розовым оттенком стен и деревянной мебелью.

-14

Проект Илоны Рафиковой стал примером того, как можно вдохнуть новую жизнь в старую квартиру. Умелое сочетание ярких акцентов и уютных тонов, функциональность и стиль — все это сделало пространство не только красивым, но и комфортным для жизни. Мы видим, как интерьер стал отражением личности его владельца, создавая атмосферу, в которой хочется проводить время.