Найти в Дзене
АО «ТАМАК»

«Бавария-93»: одноэтажный дом для комфортной жизни

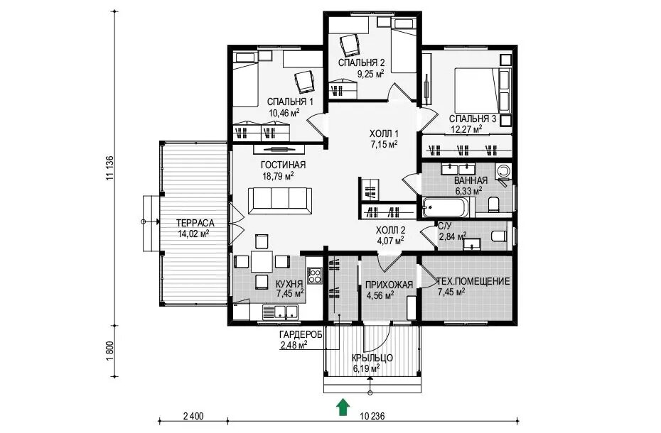
Проект «Бавария-93» – идеальное решение для тех, кто ценит комфорт и функциональность. Это традиционный немецкий стиль, который отлично сочетается с современными технологиями. Продуманная планировка позволяет сократить расходы на отопление и охлаждение дома, а качественные ЦСП материалы гарантируют долговечность и надёжность конструкции. Общая площадь дома составляет 113,31 м², что является отличным выбором для небольшой семьи. Несмотря на компактные размеры, в доме присутствует 3 спальни, 2 санузла и отдельный от комнат гардероб. Просторное техническое помещение позволит вместить всё необходимое оборудование, а объединённая кухня-гостиная идеально подойдёт для семейного отдыха. Вдохновением для архитектуры дома стала традиционная немецкая школа строительства. Строгие линии, продуманные пропорции и классический дизайн создают облик, который никогда не выйдет из моды. Большие окна обеспечивают естественное освещение, визуально делающее дом более светлым и просторным. Характеристики прое

Проект «Бавария-93» – идеальное решение для тех, кто ценит комфорт и функциональность. Это традиционный немецкий стиль, который отлично сочетается с современными технологиями. Продуманная планировка позволяет сократить расходы на отопление и охлаждение дома, а качественные ЦСП материалы гарантируют долговечность и надёжность конструкции.

Общая площадь дома составляет 113,31 м², что является отличным выбором для небольшой семьи. Несмотря на компактные размеры, в доме присутствует 3 спальни, 2 санузла и отдельный от комнат гардероб. Просторное техническое помещение позволит вместить всё необходимое оборудование, а объединённая кухня-гостиная идеально подойдёт для семейного отдыха.

Вдохновением для архитектуры дома стала традиционная немецкая школа строительства. Строгие линии, продуманные пропорции и классический дизайн создают облик, который никогда не выйдет из моды. Большие окна обеспечивают естественное освещение, визуально делающее дом более светлым и просторным.

Характеристики проекта:

Общая площадь: 113.31 м²

Площадь помещений: 93,1 м²

Площадь террас и балконов: 20.21 м²

Общая площадь 1 этажа: 113.31 м²

Спальни, шт.: 3

Санузлы, шт.: 2

Техническое помещение: да

Схема дома «Бавария-93»
Схема дома «Бавария-93»

Этот дом – настоящее воплощение уюта и гармонии. Проект «Бавария-93» станет идеальным выбором для тех, кто стремится соединить традиции европейской архитектуры с современным комфортом и практичностью.