Найти Π² Π”Π·Π΅Π½Π΅
ELNDESIGN Бтудия Π΄ΠΈΠ·Π°ΠΉΠ½Π°

πŸ”Ή Π”Π΅Π»ΡŽΡΡŒ ΠΊΠΎΠΌΠΏΠ°Π½ΠΈΠ΅ΠΉ ΠΈ Ρ€Π΅Π·ΡƒΠ»ΡŒΡ‚Π°Ρ‚ΠΎΠΌ Ρ€Π°Π±ΠΎΡ‚, Π²Ρ‹ΠΏΠΎΠ»Π½ΡΡŽΡ‰Π΅ΠΉ 3D-сканированиС всСх ΠΌΠΎΠΈΡ… ΠΎΠ±ΡŠΠ΅ΠΊΡ‚ΠΎΠ² Π½Π° ΠΏΡ€ΠΈΠΌΠ΅Ρ€Π΅ ΠΏΡ€ΠΎΠ΅ΠΊΡ‚Π° Π½Π° 8-ΠΉ БовСтской

πŸ”Ή Π”Π΅Π»ΡŽΡΡŒ ΠΊΠΎΠΌΠΏΠ°Π½ΠΈΠ΅ΠΉ ΠΈ Ρ€Π΅Π·ΡƒΠ»ΡŒΡ‚Π°Ρ‚ΠΎΠΌ Ρ€Π°Π±ΠΎΡ‚, Π²Ρ‹ΠΏΠΎΠ»Π½ΡΡŽΡ‰Π΅ΠΉ 3D-сканированиС всСх ΠΌΠΎΠΈΡ… ΠΎΠ±ΡŠΠ΅ΠΊΡ‚ΠΎΠ² Π½Π° ΠΏΡ€ΠΈΠΌΠ΅Ρ€Π΅ ΠΏΡ€ΠΎΠ΅ΠΊΡ‚Π° Π½Π° 8-ΠΉ БовСтской Π”ΠΎΠ±Ρ€Ρ‹ΠΉ Π²Π΅Ρ‡Π΅Ρ€! Π“ΠΎΡ‚ΠΎΠ² ΠΎΠ±ΠΌΠ΅Ρ€Π½Ρ‹ΠΉ ΠΏΠ»Π°Π½ ΠΏΠΎ ΠΏΡ€ΠΎΠ΅ΠΊΡ‚Ρƒ Π½Π° 8-ΠΉ БовСтской. БСгодня Ρ…ΠΎΡ‡Ρƒ ΠΏΠΎΠ΄Π΅Π»ΠΈΡ‚ΡŒΡΡ с Π²Π°ΠΌΠΈ ΠΌΠ°Ρ‚Π΅Ρ€ΠΈΠ°Π»Π°ΠΌΠΈ ΠΎΡ‚ ΠΊΠΎΠΌΠΏΠ°Π½ΠΈΠΈ β€œVESO”, которая ΠΏΡ€ΠΎΠ²ΠΎΠ΄ΠΈΡ‚ ΠΎΠ±ΠΌΠ΅Ρ€Π½Ρ‹Π΅ Ρ€Π°Π±ΠΎΡ‚Ρ‹ ΠΈ 3D-сканированиС всСх ΠΌΠΎΠΈΡ… ΠΎΠ±ΡŠΠ΅ΠΊΡ‚ΠΎΠ². πŸ“‚ Π’ Π°Ρ€Ρ…ΠΈΠ²Π΅: - Облака Ρ‚ΠΎΡ‡Π΅ΠΊ ΠΈ Ρ„ΠΎΡ‚ΠΎΠ³Ρ€Π°Ρ„ΠΈΠΈ (Ρ„ΠΎΡ€ΠΌΠ°Ρ‚Ρ‹ RCS, E57, JPG) - Π§Π΅Ρ€Ρ‚Π΅ΠΆΠΈ ΠΈ ΠΌΠΎΠ΄Π΅Π»ΠΈ (DWG, RVT, SKP, FBX, IFC) - ΠŸΠΎΡΡΠ½ΠΈΡ‚Π΅Π»ΡŒΠ½Π°Ρ записка (PDF) с описаниСм ΠΌΠ΅Ρ‚ΠΎΠ΄ΠΈΠΊΠΈ ΠΈΠ·ΠΌΠ΅Ρ€Π΅Π½ΠΈΠΉ ΠΈ основных ΠΏΡ€ΠΈΠ½Ρ†ΠΈΠΏΠΎΠ² Ρ€Π°Π±ΠΎΡ‚Ρ‹ πŸ“„ ΠšΠ»ΡŽΡ‡Π΅Π²Ρ‹Π΅ ΠΌΠΎΠΌΠ΅Π½Ρ‚Ρ‹ ΠΈΠ· ΠΏΠΎΡΡΠ½ΠΈΡ‚Π΅Π»ΡŒΠ½ΠΎΠΉ записки: - ΠžΠ±ΠΌΠ΅Ρ€Ρ‹ Π²Ρ‹ΠΏΠΎΠ»Π½Π΅Π½Ρ‹ с использованиСм Π½Π°Π·Π΅ΠΌΠ½Ρ‹Ρ… Π»Π°Π·Π΅Ρ€Π½Ρ‹Ρ… сканСров. - Π’ΠΎΠ»Ρ‰ΠΈΠ½Ρ‹ стСн, ΠΏΠ°Ρ€Π°ΠΌΠ΅Ρ‚Ρ€Ρ‹ ΠΎΠΊΠΎΠ½ ΠΈ Π΄Π²Π΅Ρ€Π΅ΠΉ ΡƒΠΊΠ°Π·Π°Π½Ρ‹ условно (Ссли Π½Π΅ Π±Ρ‹Π»ΠΎ спСцзадания). - Для Ρ€Π°Π±ΠΎΡ‚Ρ‹ с ΠΎΠ±Π»Π°ΠΊΠ°ΠΌΠΈ Ρ‚ΠΎΡ‡Π΅ΠΊ Ρ€Π΅ΠΊΠΎΠΌΠ΅Π½Π΄ΠΎΠ²Π°Π½ΠΎ Autodesk Recap. πŸ’‘ Π­Ρ‚ΠΎΡ‚ Π½Π°Π±ΠΎΡ€ ΠΌΠΎΠΆΠ΅Ρ‚ Π±Ρ‹Ρ‚ΡŒ ΠΏΠΎΠ»Π΅Π·Π΅Π½: - АрхитСкторам ΠΈ ΠΏΡ€ΠΎΠ΅ΠΊΡ‚ΠΈΡ€ΠΎΠ²Ρ‰ΠΈΠΊΠ°ΠΌ, Ρ€Π°Π±ΠΎΡ‚Π°ΡŽΡ‰ΠΈΠΌ с Ρ‚ΠΎΡ‡Π½Ρ‹ΠΌΠΈ ΠΎΠ±ΠΌΠ΅Ρ€Π°ΠΌΠΈ. - БпСциалистам ΠΏΠΎ BIM-ΠΌΠΎΠ΄Π΅Π»ΠΈΡ€ΠΎΠ²Π°Π½ΠΈΡŽ. - ВсСм, ΠΊΡ‚ΠΎ интСрСсуСтся тСхнологиями 3D-сканирования. Бсылка Π½Π° компанию: https://v

πŸ”Ή Π”Π΅Π»ΡŽΡΡŒ ΠΊΠΎΠΌΠΏΠ°Π½ΠΈΠ΅ΠΉ ΠΈ Ρ€Π΅Π·ΡƒΠ»ΡŒΡ‚Π°Ρ‚ΠΎΠΌ Ρ€Π°Π±ΠΎΡ‚, Π²Ρ‹ΠΏΠΎΠ»Π½ΡΡŽΡ‰Π΅ΠΉ 3D-сканированиС всСх ΠΌΠΎΠΈΡ… ΠΎΠ±ΡŠΠ΅ΠΊΡ‚ΠΎΠ² Π½Π° ΠΏΡ€ΠΈΠΌΠ΅Ρ€Π΅ ΠΏΡ€ΠΎΠ΅ΠΊΡ‚Π° Π½Π° 8-ΠΉ БовСтской

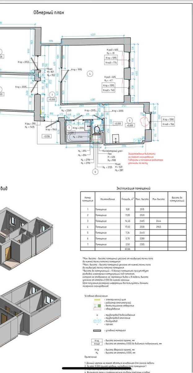
Π”ΠΎΠ±Ρ€Ρ‹ΠΉ Π²Π΅Ρ‡Π΅Ρ€! Π“ΠΎΡ‚ΠΎΠ² ΠΎΠ±ΠΌΠ΅Ρ€Π½Ρ‹ΠΉ ΠΏΠ»Π°Π½ ΠΏΠΎ ΠΏΡ€ΠΎΠ΅ΠΊΡ‚Ρƒ Π½Π° 8-ΠΉ БовСтской. БСгодня Ρ…ΠΎΡ‡Ρƒ ΠΏΠΎΠ΄Π΅Π»ΠΈΡ‚ΡŒΡΡ с Π²Π°ΠΌΠΈ ΠΌΠ°Ρ‚Π΅Ρ€ΠΈΠ°Π»Π°ΠΌΠΈ ΠΎΡ‚ ΠΊΠΎΠΌΠΏΠ°Π½ΠΈΠΈ β€œVESO”, которая ΠΏΡ€ΠΎΠ²ΠΎΠ΄ΠΈΡ‚ ΠΎΠ±ΠΌΠ΅Ρ€Π½Ρ‹Π΅ Ρ€Π°Π±ΠΎΡ‚Ρ‹ ΠΈ 3D-сканированиС всСх ΠΌΠΎΠΈΡ… ΠΎΠ±ΡŠΠ΅ΠΊΡ‚ΠΎΠ².

πŸ“‚ Π’ Π°Ρ€Ρ…ΠΈΠ²Π΅:

- Облака Ρ‚ΠΎΡ‡Π΅ΠΊ ΠΈ Ρ„ΠΎΡ‚ΠΎΠ³Ρ€Π°Ρ„ΠΈΠΈ (Ρ„ΠΎΡ€ΠΌΠ°Ρ‚Ρ‹ RCS, E57, JPG)

- Π§Π΅Ρ€Ρ‚Π΅ΠΆΠΈ ΠΈ ΠΌΠΎΠ΄Π΅Π»ΠΈ (DWG, RVT, SKP, FBX, IFC)

- ΠŸΠΎΡΡΠ½ΠΈΡ‚Π΅Π»ΡŒΠ½Π°Ρ записка (PDF) с описаниСм ΠΌΠ΅Ρ‚ΠΎΠ΄ΠΈΠΊΠΈ ΠΈΠ·ΠΌΠ΅Ρ€Π΅Π½ΠΈΠΉ ΠΈ основных ΠΏΡ€ΠΈΠ½Ρ†ΠΈΠΏΠΎΠ² Ρ€Π°Π±ΠΎΡ‚Ρ‹

πŸ“„ ΠšΠ»ΡŽΡ‡Π΅Π²Ρ‹Π΅ ΠΌΠΎΠΌΠ΅Π½Ρ‚Ρ‹ ΠΈΠ· ΠΏΠΎΡΡΠ½ΠΈΡ‚Π΅Π»ΡŒΠ½ΠΎΠΉ записки:

- ΠžΠ±ΠΌΠ΅Ρ€Ρ‹ Π²Ρ‹ΠΏΠΎΠ»Π½Π΅Π½Ρ‹ с использованиСм Π½Π°Π·Π΅ΠΌΠ½Ρ‹Ρ… Π»Π°Π·Π΅Ρ€Π½Ρ‹Ρ… сканСров.

- Π’ΠΎΠ»Ρ‰ΠΈΠ½Ρ‹ стСн, ΠΏΠ°Ρ€Π°ΠΌΠ΅Ρ‚Ρ€Ρ‹ ΠΎΠΊΠΎΠ½ ΠΈ Π΄Π²Π΅Ρ€Π΅ΠΉ ΡƒΠΊΠ°Π·Π°Π½Ρ‹ условно (Ссли Π½Π΅ Π±Ρ‹Π»ΠΎ спСцзадания).

- Для Ρ€Π°Π±ΠΎΡ‚Ρ‹ с ΠΎΠ±Π»Π°ΠΊΠ°ΠΌΠΈ Ρ‚ΠΎΡ‡Π΅ΠΊ Ρ€Π΅ΠΊΠΎΠΌΠ΅Π½Π΄ΠΎΠ²Π°Π½ΠΎ Autodesk Recap.

πŸ’‘ Π­Ρ‚ΠΎΡ‚ Π½Π°Π±ΠΎΡ€ ΠΌΠΎΠΆΠ΅Ρ‚ Π±Ρ‹Ρ‚ΡŒ ΠΏΠΎΠ»Π΅Π·Π΅Π½:

- АрхитСкторам ΠΈ ΠΏΡ€ΠΎΠ΅ΠΊΡ‚ΠΈΡ€ΠΎΠ²Ρ‰ΠΈΠΊΠ°ΠΌ, Ρ€Π°Π±ΠΎΡ‚Π°ΡŽΡ‰ΠΈΠΌ с Ρ‚ΠΎΡ‡Π½Ρ‹ΠΌΠΈ ΠΎΠ±ΠΌΠ΅Ρ€Π°ΠΌΠΈ.

- БпСциалистам ΠΏΠΎ BIM-ΠΌΠΎΠ΄Π΅Π»ΠΈΡ€ΠΎΠ²Π°Π½ΠΈΡŽ.

- ВсСм, ΠΊΡ‚ΠΎ интСрСсуСтся тСхнологиями 3D-сканирования.

Бсылка Π½Π° компанию:

https://veso.ru

#3DсканированиС #BIM #ΠžΠ±ΠΌΠ΅Ρ€Ρ‹ #АрхитСктура #ΠŸΡ€ΠΎΠ΅ΠΊΡ‚ΠΈΡ€ΠΎΠ²Π°Π½ΠΈΠ΅ #VESO

-2
-3
-4
-5
-6
-7
-8
-9
-10