Добавить в корзинуПозвонить
Найти в Дзене
ПСК "Градиент"

Проект частного дома до 70 м² - современный дом мечты с удобной планировкой и рациональным использованием пространства

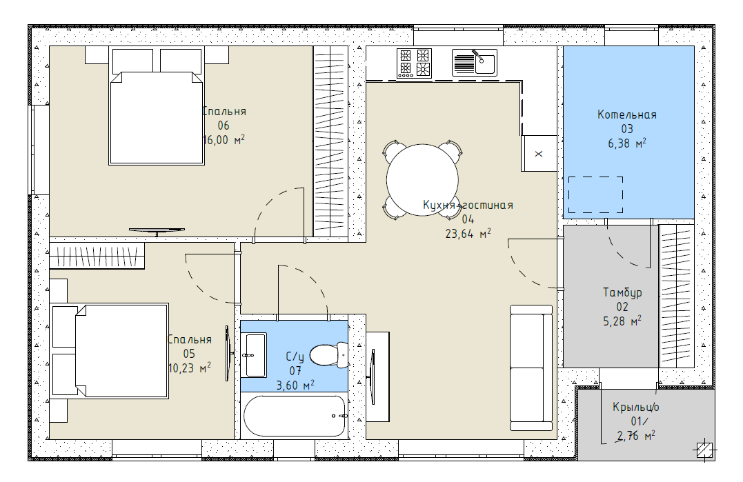
Строительство собственного дома - это важный шаг для многих семей. Сегодня мы расскажем о проекте компактного и функционального частного дома площадью 67,89 м². Такой дом идеально подойдет для тех, кто ценит уют и рациональное использование каждого квадратного метра. Крыльцо (2,76 м²) - это первое, что встречает вас, стильный дизайн придаст дому привлекательный внешний вид. Следующий этап - тамбур (5,28 м²), защищающий дом от холода и уличной пыли, создавая дополнительный комфорт. Котельная (6,38 м²) с продуманным размещением оборудования обеспечивает эффективное отопление и подачу горячей воды, что особенно важно для создания комфортного климата в доме. Самое просторное помещение - кухня-гостиная (23,64 м²). Это сердце дома, где можно готовить, принимать гостей и отдыхать семьей. Просторная и светлая зона открывает множество возможностей для оригинального дизайна и функционального обустройства. Две спальни по 10,23 и 16,00 м² - обеспечивают приватность и комфорт для всей семьи. Их мож

Строительство собственного дома - это важный шаг для многих семей. Сегодня мы расскажем о проекте компактного и функционального частного дома площадью 67,89 м². Такой дом идеально подойдет для тех, кто ценит уют и рациональное использование каждого квадратного метра.

Крыльцо (2,76 м²) - это первое, что встречает вас, стильный дизайн придаст дому привлекательный внешний вид. Следующий этап - тамбур (5,28 м²), защищающий дом от холода и уличной пыли, создавая дополнительный комфорт.

Котельная (6,38 м²) с продуманным размещением оборудования обеспечивает эффективное отопление и подачу горячей воды, что особенно важно для создания комфортного климата в доме.

-2

Самое просторное помещение - кухня-гостиная (23,64 м²). Это сердце дома, где можно готовить, принимать гостей и отдыхать семьей. Просторная и светлая зона открывает множество возможностей для оригинального дизайна и функционального обустройства.

Две спальни по 10,23 и 16,00 м² - обеспечивают приватность и комфорт для всей семьи. Их можно легко адаптировать под разные потребности: детская комната, рабочий кабинет или уютное место для отдыха. Небольшой, но удобный санузел (3,60 м²) завершает планировку, обеспечивая все необходимые условия для повседневной жизни.

Использование такого проекта позволяет сэкономить на строительстве и обслуживании, при этом не жертвуя комфортом. Этот дом станет надежным и уютным местом для жизни, притягивая теплой атмосферой и удобством.

Если вы планируете строительство частного дома, обязательно обратите внимание на функциональную планировку и рациональное распределение пространства. Это главный ключ к созданию идеального жилья для вас и вашей семьи.