Добавить в корзинуПозвонить
Найти в Дзене
Beatrice INTERIUS

Женственный интерьер с ноткой ар-деко: проект однокомнатной квартиры 38,3 м²

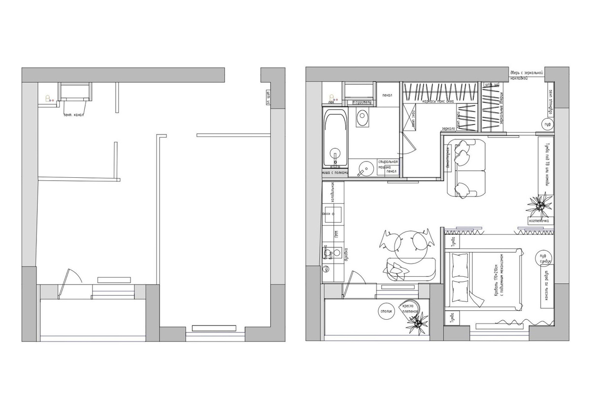
Автор проекта: Алёна Матисова | Фото: Анна Скударь Перед дизайнером стояла задача создать функциональное и уютное пространство для молодой девушки и её кота. Новостройка с изначальной высотой потолков 2,8 м и общей площадью 38,3 м² потребовала особого внимания к планировке и отделке. В результате получился лёгкий, светлый интерьер с нотками ар-деко, изысканной палитрой и акцентом на золотую фурнитуру. Итоговая высота потолков — 2,7 м. Изначальная планировка не предполагала чёткого деления на зоны. В результате перепланировки удалось разместить отдельную спальню с системой хранения, компактную кухню, столовую группу у окна и зону отдыха с ТВ и мягким диваном. Между спальней и остальной частью квартиры установлены раздвижные стеклянные перегородки, которые создают ощущение открытости, при этом позволяют уединиться при необходимости. Серые фасады кухонного гарнитура с тонкой рамкой — это мягкий и современный взгляд на классику. В сочетании с фартуком и столешницей под мрамор они выглядят
Оглавление

Автор проекта: Алёна Матисова | Фото: Анна Скударь

Перед дизайнером стояла задача создать функциональное и уютное пространство для молодой девушки и её кота. Новостройка с изначальной высотой потолков 2,8 м и общей площадью 38,3 м² потребовала особого внимания к планировке и отделке. В результате получился лёгкий, светлый интерьер с нотками ар-деко, изысканной палитрой и акцентом на золотую фурнитуру. Итоговая высота потолков — 2,7 м.

Планировка: максимум пользы в каждой зоне

Изначальная планировка не предполагала чёткого деления на зоны. В результате перепланировки удалось разместить отдельную спальню с системой хранения, компактную кухню, столовую группу у окна и зону отдыха с ТВ и мягким диваном. Между спальней и остальной частью квартиры установлены раздвижные стеклянные перегородки, которые создают ощущение открытости, при этом позволяют уединиться при необходимости.

Кухня: пастельный тон и золотая геометрия

Серые фасады кухонного гарнитура с тонкой рамкой — это мягкий и современный взгляд на классику. В сочетании с фартуком и столешницей под мрамор они выглядят благородно и сдержанно. Белый изогнутый смеситель и золотая мойка — настоящие звёзды этой зоны: они задают настроение и поддерживают общую декоративную линию.

Золотая фурнитура и ручки с тонкой графикой придают фасадам законченный вид, а чёрный духовой шкаф добавляет необходимый контраст. Несмотря на компактные размеры, кухня полностью укомплектована — здесь есть и варочная панель, и встроенный холодильник, и даже место для декора, что делает кухню не только функциональной, но и живой.

-2

-3

-4

Столовая группа — женственность и стиль

Обеденная зона расположена у окна и оформлена с особым вниманием к деталям. Белый круглый стол на ножке с золотыми перекрестьями стал центральным элементом этой части квартиры. Его дополняют бархатные винные стулья с золотыми деталями — это сочетание мягкости и уверенной элегантности. Над столом — группа подвесных светильников с прозрачными плафонами и лампами Эдисона, создающими теплый рассеянный свет.

На стене — портрет девушки со спины в шелке, обрамлённый тонкой рамкой. Такой приём добавляет романтизма и чуть-чуть ар-нуво в общее настроение интерьера.

-5

Гостиная и ТВ-зона: уют с ритмом ар-деко

ТВ-зона оформлена минималистично, но со вкусом. Под телевизором — графичная тумба на ножках, украшенная книгами, вазой и декоративными элементами. Слева от ТВ — крупное растение в крафтовом горшке. Живые акценты из зелени добавляют интерьеру динамики и делают его «живым».

Диван — небольшой, серого цвета, с уютными подушками: одна в чёрно-белую «гусиную лапку», другая — пушистая, почти декоративная. Рядом — лаконичный круглый столик с золотым основанием и белой вазой.

-6

-7

Спальня: свет, текстиль и лёгкость

Спальня отделена стеклянной перегородкой и смотрится очень светло и воздушно. Мягкое изголовье кровати, графичные светильники, декоративные подушки в пудровом и горчичном цвете создают ощущение уюта, но не перегружают пространство. Лёгкие шторы в цвет стен визуально расширяют помещение, а встроенные светильники и подвесы формируют многослойное освещение.

На прикроватных тумбах — растения в золотых кашпо и книги — ещё один элемент, который придаёт интерьеру характер. Консоль с восьмигранным зеркалом в золотой раме завершает композицию: здесь можно устроить мини-будуар или рабочее место. Всё лаконично, но эстетически наполнено.

-8

-9

-10

-11

-12

Санузел: мрамор, терракота и золото

Основная плитка — под белый мрамор с серыми прожилками. В нише — акцентная плитка в терракотовом оттенке, выложенная ёлочкой. Золотая сантехника и чёрные аксессуары выступают контрастом и добавляют нотку ар-деко. Даже полотенцесушитель встроен в нишу — эстетично и продуманно.

Отдельное внимание заслуживает раковина на мраморной столешнице и большое арочное зеркало — приём, который зрительно увеличивает ванную комнату и делает её по-настоящему стильной.

-13

-14

Прихожая: минимализм с нотками ретро

Даже в небольшом пространстве прихожей нашлось место для системы хранения, банкетки, золотого светильника и пары декоративных деталей. Панели на стенах, книги, ваза и цвет — всё работает на образ квартиры, где нет случайных элементов.ю

-15

-16

Этот интерьер — пример того, как на небольшой площади можно реализовать по-настоящему изящный, функциональный и эстетичный проект. Благодаря светлой палитре, грамотному зонированию и тонким декоративным решениям, квартира кажется просторной, уютной и очень «живой». Здесь хочется остаться — или хотя бы вдохновиться для своего ремонта.

Площадь: 38,3 м²

Бюджет: ~2,5 млн ₽

Дизайнер: Алёна Матисова

Фото: Анна Скударь

Поддержите, пожалуйста, статью пальцем вверх👍, а меня подпиской на канал, это очень помогает развитию🙏❤️

Жду вас в своем Телеграм, там мы обсуждаем модные дизайны интерьеров и ремонт