Найти в Дзене

Успели соскучиться? Я приехала и начинаю входить в рабочий ритм

Успели соскучиться? Я приехала и начинаю входить в рабочий ритм. Сегодня обсудим спальни.

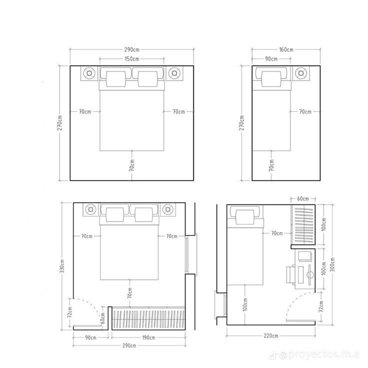
Спальня. Эргономика, проходы.

Кровать- композиционный центр спальни.

📍Симметричная планировка по оси кровати самая предпочтительная, особенно для двоих.

📍Размер кровати.

Стандартная длина матраса для кровати 190 или 200 см. Добавьте 15-25 см в зависимости от выбранной модели кровати и получите её длину.

Ширина кровати. Конечно, всё зависимости от выбранной модели, то есть чем пышнее царги, тем больше будет сама кровать.

Односпальная: 90-100см.

Полуторка: 120-140 см.

Двуспальная кровать : 172-210см.

Необходимые проходы:

50-70см - минимальное расстояние кровати до стены или шкафа.

70-100см- минимальное расстояние до рабочего или туалетного столика.

-2
-3