Добавить в корзинуПозвонить
Найти в Дзене
Дача Хит

Модульный дом «Кунжут 94» под ключ в Москве: полный гид по современному жилью с реальными цифрами и советами

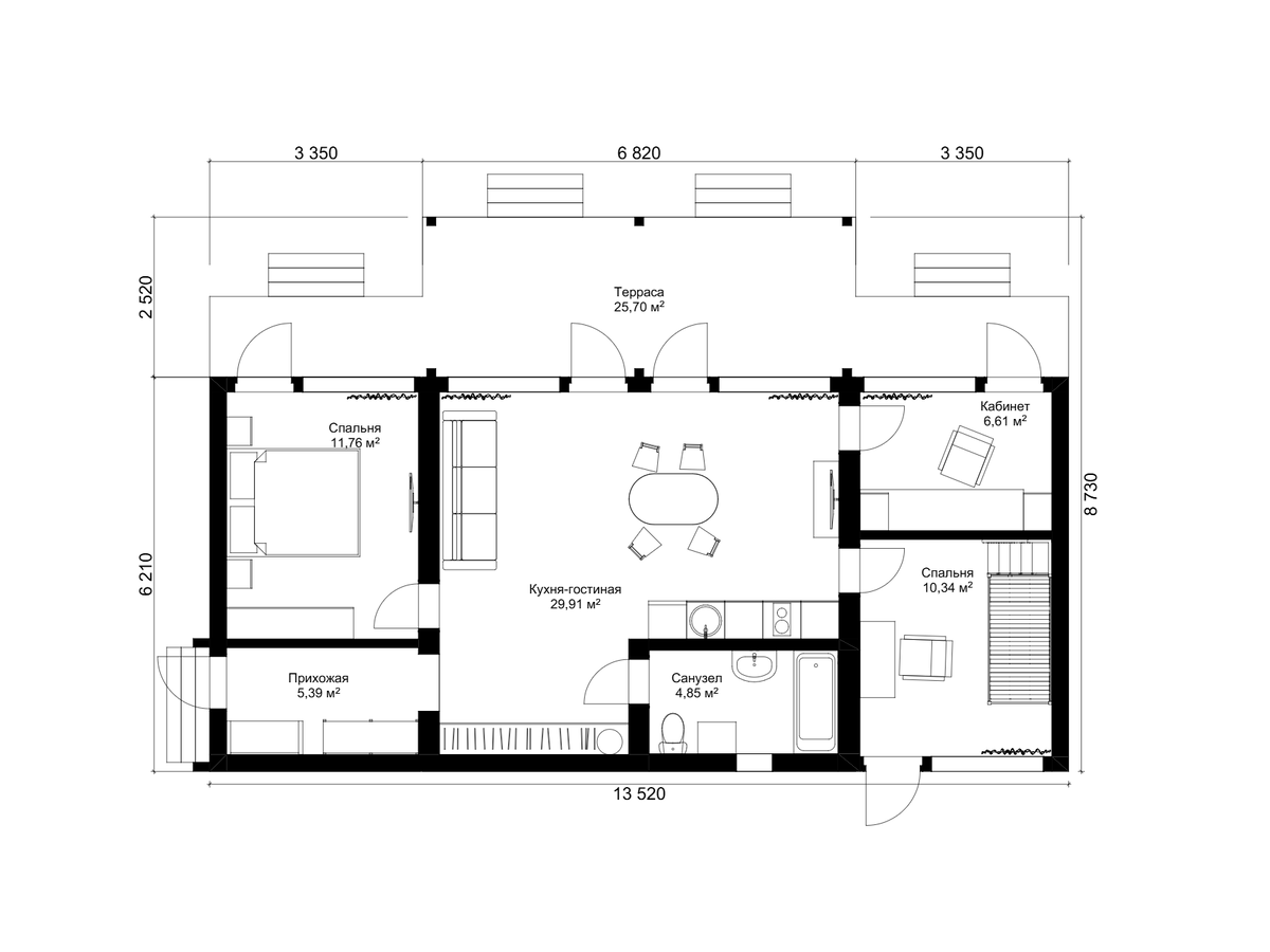
В последние годы рынок загородной недвижимости Московского региона переживает настоящую революцию. Все больше людей выбирают модульные дома, и на то есть веские причины. В этой статье мы детально разберем один из самых популярных проектов - «Кунжут 94», рассмотрев его со всех сторон: от технологии производства до реальных затрат на эксплуатацию. «Кунжут 94» производится в Подмосковье, где действует строгий 12-ступенчатый контроль качества: • Каркас: усиленные стальные балки с антикоррозийной обработкой • Утепление: трехслойные сэндвич-панели с базальтовым утеплителем (200 мм) • Внутренние перегородки: экологичные SIP-панели с шумоизоляцией • Кровельная система: плоская мембранная крыша Производственный цикл занимает 2-3 месяца, при этом: - 80% работ выполняются в цеху - 20% - окончательная сборка на участке «Кунжут 94» - это воплощение популярного флэтхаус стиля: • Общая площадь: 94,3 м2 (по внутренним замерам) • Габариты: 13,52×8,73 м • Высота потолков: 2,85 м • Площадь остекления: 2
Оглавление

Почему модульные дома стали трендом 2024 года?

В последние годы рынок загородной недвижимости Московского региона переживает настоящую революцию. Все больше людей выбирают модульные дома, и на то есть веские причины. В этой статье мы детально разберем один из самых популярных проектов - «Кунжут 94», рассмотрев его со всех сторон: от технологии производства до реальных затрат на эксплуатацию.

1. Технология производства: как создается дом?

«Кунжут 94» производится в Подмосковье, где действует строгий 12-ступенчатый контроль качества:

• Каркас: усиленные стальные балки с антикоррозийной обработкой

• Утепление: трехслойные сэндвич-панели с базальтовым утеплителем (200 мм)

• Внутренние перегородки: экологичные SIP-панели с шумоизоляцией

• Кровельная система: плоская мембранная крыша

Производственный цикл занимает 2-3 месяца, при этом:

- 80% работ выполняются в цеху

- 20% - окончательная сборка на участке

2. Архитектурные особенности проекта

«Кунжут 94» - это воплощение популярного флэтхаус стиля:

• Общая площадь: 94,3 м2 (по внутренним замерам)

• Габариты: 13,52×8,73 м

• Высота потолков: 2,85 м

• Площадь остекления: 28 м2 (30% от общей площади)

Особенности планировки:

- Зонирование на дневную и ночную зоны

- Отсутствие коридоров (экономия 7-8 м2 полезной площади)

- Единый уровень пола по всему дому

3. Инженерные системы: что входит в комплектацию?

3.1. Электроснабжение:

• Вводной щит на 15 кВт

• Медная проводка

• 28 розеток (включая USB-разъемы)

• Уличное освещение (4 точки)

3.2. Отопление:

• Основное: водяные теплые полы

• Дополнительное: электрические конвекторы (3 шт.)

• Автоматика: погодозависимое регулирование

3.3. Водоснабжение:

• Накопительный бойлер 100 л

• Система фильтрации (3 ступени)

Реальные эксплуатационные расходы

• Отопление: 2 500 руб/мес (при -15°C)

• Электричество: 1 800 руб/мес

• Обслуживание: 15 000 руб/год

«Кунжут 94» - это:

✓ В 1,5 раза дешевле кирпичного аналога
✓ В 6 раз быстрее строительства
✓ В 2 раза экономичнее в обслуживании

Для тех, кто ценит свое время и деньги, модульные дома стали оптимальным решением. Оставьте заявку на точный расчет для вашего участка - наши специалисты подготовят индивидуальное предложение в течение 24 часов.

💻Сайт: https://dachahit.ru/modulnye-doma/kunzhut
📱
Видеообзор: https://rutube.ru/video/94284474c2d95af277392e1c8028dacc/
📞
Для связи: https://api.whatsapp.com/send/?phone=79801770808&text&type=phone_number&app_absent=0

#ДачаХит #Кунжут94 #МодульныйДом #ДомПодКлюч #МодульныеДома2024 #СтроительствоПодКлюч #ДомДляПостоянногоПроживания #МосковскаяОбласть #ЭнергоэффективныйДом