Найти в Дзене
ДОМ с умом

Проект "Марта"

Проект соответствует популярному сейчас тренду на одноэтажные дома: все помещения находятся в одном уровне, что очень удобно. Архитектура дома довольно простая, современная и лаконичная. Правильная форма дома позволяет создать уютный и закрытый от посторонних взглядов внутренний двор и закрытую с двух сторон террасу. Общая площадь: 162,1 кв.м
Жилая площадь: 149,9 кв.м
Габариты: 19 м х 11,4 м
Фундамент: монолитная железобетонная плита
Стены: газобетонный блок 400 мм, утеплитель - 50 мм
Отделка фасада: декоративная штукатурка и искусственный камень
Чердачное перекрытие - по деревянным балкам
Крыша - из металлочерепицы по деревянной стропильной системе Красивый и вместительный дом по проекту "Марта" рассчитан на семью из четырех человек. Центральным помещением дома является кухня-гостиная с большими окнами. Из неё открывается вид на сад и выход на террасу. Спальная зона включает три комфортабельные спальни, одна из которых оснащена личным гардеробом и ванной. Также в коттедже расположе
Оглавление

Проект соответствует популярному сейчас тренду на одноэтажные дома: все помещения находятся в одном уровне, что очень удобно. Архитектура дома довольно простая, современная и лаконичная. Правильная форма дома позволяет создать уютный и закрытый от посторонних взглядов внутренний двор и закрытую с двух сторон террасу.

Характеристики:

Общая площадь: 162,1 кв.м
Жилая площадь: 149,9 кв.м
Габариты: 19 м х 11,4 м
Фундамент: монолитная железобетонная плита
Стены: газобетонный блок 400 мм, утеплитель - 50 мм
Отделка фасада: декоративная штукатурка и искусственный камень
Чердачное перекрытие - по деревянным балкам
Крыша - из металлочерепицы по деревянной стропильной системе

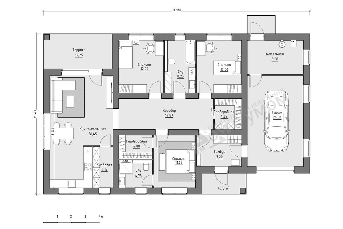
Планировка:

Красивый и вместительный дом по проекту "Марта" рассчитан на семью из четырех человек. Центральным помещением дома является кухня-гостиная с большими окнами. Из неё открывается вид на сад и выход на террасу. Спальная зона включает три комфортабельные спальни, одна из которых оснащена личным гардеробом и ванной. Также в коттедже расположены гардеробная при входе, кладовая, котельная и гараж.

-2

📌Жилая площадь – 149,9 кв.м
📌Кухня-гостиная – 31,4 кв.м
📌Спальни – 3 шт.
📌Терраса – 12,2 кв.м
📌Гараж – на 1 авто