Добавить в корзинуПозвонить
Найти в Дзене
Jeevaa design

Идеальная планировка для квартиры под сдачу

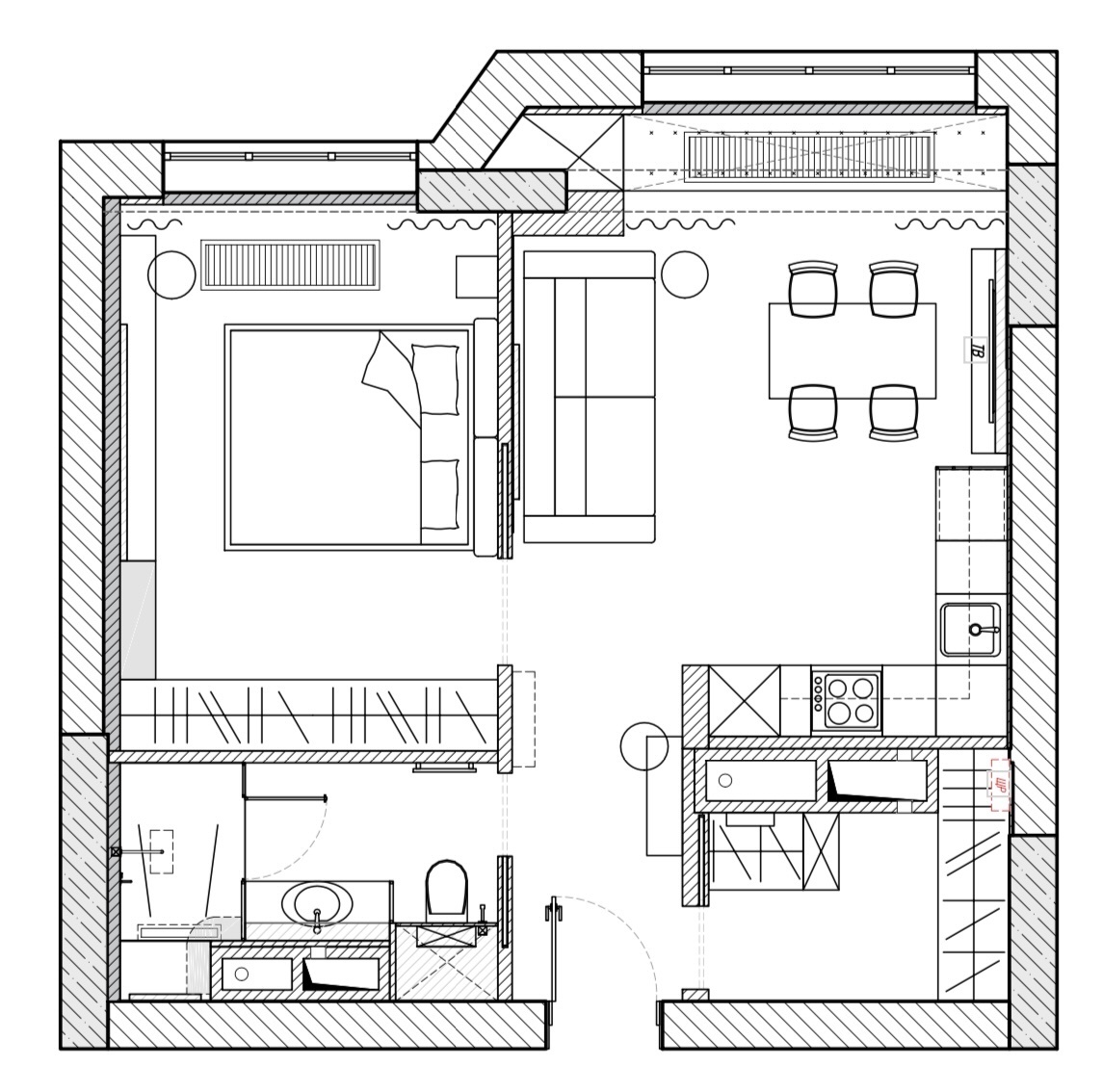
В апартаментах в 49 кв.м. нам удалось разместить: ▪️Спальню в 14,6 кв. м. ▪️Санузел в 5,6 кв. м. ▪️Гардеробную в 4,3 кв. м. Но главное — мы нашли идеальный баланс между комфортом, функциональностью и стилем🫶 И всё это — в сердце Москвы, где каждый квадратный метр на вес золота. 💡Как мы это сделали? 📌Статус апартаментов позволил нам свободно распоряжаться пространством — без жёстких ограничений, как в обычных квартирах. 📌Санузел немного уменьшили, чтобы освободить пространство для шкафа и сделать спальню более уютной. Декоративная перегородка между раковиной и унитазом визуально зонирует пространство и сохраняет ощущение уюта. 📌Внутрипольные конвекторы от застройщика позволили сэкономить место — ниши для штор стали меньше, а полезная площадь — больше. 📌Оконный проём в зоне кухни-гостиной мы обрамили шпонированными панелями — эффект потрясающий, а атмосфера — домашняя. ✨ Всё, что нужно для жизни в мегаполисе — здесь. Такие решения — не просто удобны, а вдохновляют. Потому что даже
Планирвочоное решение
Планирвочоное решение

В апартаментах в 49 кв.м. нам удалось разместить:

▪️Спальню в 14,6 кв. м.

▪️Санузел в 5,6 кв. м.

▪️Гардеробную в 4,3 кв. м.

Интерьер Jeevaa design
Интерьер Jeevaa design

Но главное — мы нашли идеальный баланс между комфортом, функциональностью и стилем🫶

И всё это — в сердце Москвы, где каждый квадратный метр на вес золота.

Интерьер Jeevaa design
Интерьер Jeevaa design

💡Как мы это сделали?

📌Статус апартаментов позволил нам свободно распоряжаться пространством — без жёстких ограничений, как в обычных квартирах.

📌Санузел немного уменьшили, чтобы освободить пространство для шкафа и сделать спальню более уютной. Декоративная перегородка между раковиной и унитазом визуально зонирует пространство и сохраняет ощущение уюта.

📌Внутрипольные конвекторы от застройщика позволили сэкономить место — ниши для штор стали меньше, а полезная площадь — больше.

📌Оконный проём в зоне кухни-гостиной мы обрамили шпонированными панелями — эффект потрясающий, а атмосфера — домашняя.

Интерьер Jeevaa design
Интерьер Jeevaa design

✨ Всё, что нужно для жизни в мегаполисе — здесь.

Такие решения — не просто удобны, а вдохновляют.

Потому что даже в маленькой площади можно найти простор для жизни🫶

Интерьер Jeevaa design
Интерьер Jeevaa design

Для заказа дизайн-проекта заполняйте форму 👇

https://forms.yandex.ru/cloud/623c54b5074a525dde2fe230/

Dream. Project. Life.

#project_jeevaa_VTB_Arena_Park_50

Интерьер Jeevaa design
Интерьер Jeevaa design