Найти в Дзене

Как думаете ,что входит в полный дизайн-проект?

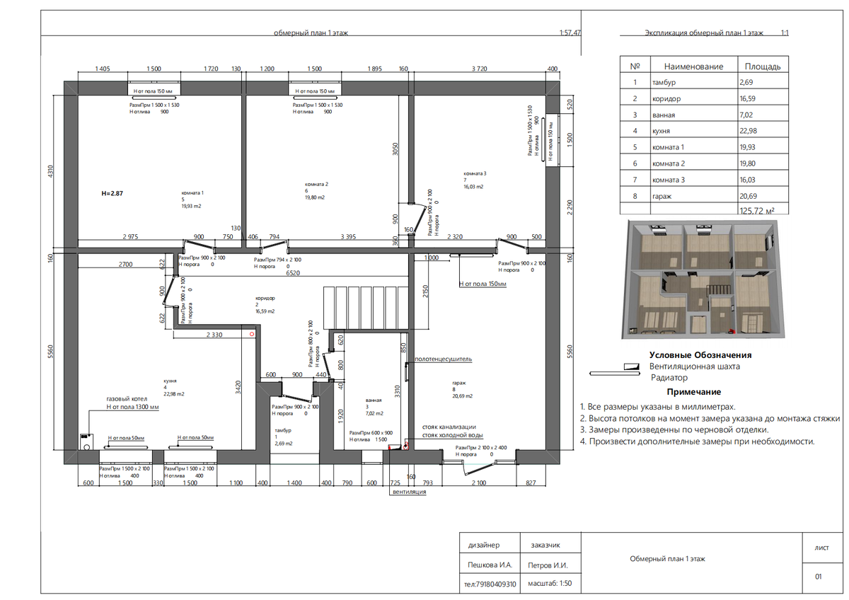
Обмерный план помещения — это основа для создания функционального и эстетичного пространства. Он необходим для:
• Создания дизайн-проекта. Точные размеры комнаты помогают дизайнеру правильно спланировать расстановку мебели, расположение розеток и выключателей, а также подобрать подходящие отделочные материалы.
• Согласования перепланировки. Если вы хотите изменить планировку квартиры или дома, обмерный план поможет вам понять, какие изменения возможны и как они повлияют на пространство.
• Заказа мебели и техники. С обмерным планом вы сможете точно определить, какая мебель и техника подойдут для вашего помещения. Это поможет избежать ошибок при заказе и доставке товаров.
• Контроля за выполнением работ. Обмерный план может служить основой для контроля за выполнением ремонтных работ. Он позволяет убедиться в том, что все изменения соответствуют первоначальному плану.
Таким образом, с обмерного плана начинается работа над созданием идеального пространства). Планировочное решение – это го

Обмерный план помещения — это основа для создания функционального и эстетичного пространства. Он необходим для:
• Создания дизайн-проекта. Точные размеры комнаты помогают дизайнеру правильно спланировать расстановку мебели, расположение розеток и выключателей, а также подобрать подходящие отделочные материалы.
• Согласования перепланировки. Если вы хотите изменить планировку квартиры или дома, обмерный план поможет вам понять, какие изменения возможны и как они повлияют на пространство.
• Заказа мебели и техники. С обмерным планом вы сможете точно определить, какая мебель и техника подойдут для вашего помещения. Это поможет избежать ошибок при заказе и доставке товаров.
• Контроля за выполнением работ. Обмерный план может служить основой для контроля за выполнением ремонтных работ. Он позволяет убедиться в том, что все изменения соответствуют первоначальному плану.
Таким образом, с обмерного плана начинается работа над созданием идеального пространства).

Обмерный План Загородного дома
Обмерный План Загородного дома

Планировочное решение – это готовая идея будущего интерьера. Это так называемый костяк дизайн-проекта, именно на эту основу нанизываются последующие идеи, в частности по дизайну мебели и декоративным элементам. От продуманности и грамотности планировки зависит, насколько комфортно вам будет проживать в квартире или доме.
Грамотное планировочное решение позволяет:
-Повысить функциональность пространства;
-Улучшить эстетические качества будущего интерьера;
-Увеличить визуальный объем помещения;
-Создать гармоничную и комфортную среду для проживания.
При разработке планировочного решения учитываются нормы эргономики, требования Жилищного кодекса Российской Федерации. Важно также принимать во внимание индивидуальные потребности и образ жизни жильцов. На основе предпочтений и выявления потребностей заказчика заполняется - ТЕХНИЧЕСКОЕ ЗАДАНИЕ. Далее составляется
✔️ОБМЕРНЫЙ ПЛАН;
✔️ПЛАНЫ ДЕМОНТАЖА И МОНТАЖА ПЕРЕГОРОДОК;
✔️ПЛАНИРОВОЧНОЕ РЕШЕНИЕ;
✔️ЭСКИЗЫ.

план Демонтажа
план Демонтажа
план Монтажа
план Монтажа
план Расстановки мебели
план Расстановки мебели
Эскиз
Эскиз

Визуализация интерьера-это детальное графическое представление пространства. Она помогает увидеть будущий интерьер в обьёме , оценить его с разных ракурсов . Включает в себя планировку помещения, выбор отделочных материалов, расстановку мебели и декора.

Кухня
Кухня
Кухня
Кухня
Гостиная
Гостиная
Гостиная
Гостиная

Рабочая документация: эта стадия предусматривает детальную разработку проектных решений. Включает в себя чертежи, спецификации, схемы.

Чертежи и ведомости
Чертежи и ведомости
Спецификация
Спецификация
-12

Алгоритм работы с дизайнером над полным проектом:

• Заполнение ТЗ, что бы понять ваши желания.

• Проведение обмеров дизайнером, заметной компанией или своими силами по присланной инструкции

• Подготовка планировочных решений

• Утверждение финального планировочного решения.

• Визуализация

• Утверждение визуализации

• Разработка схем электрики

• Утверждение электрики

• Подготовка ведомости по товарам и материалам

• Разработка чертежей с развёртками стен и узлами

• Утверждение проекта

• Авторский надзор

Вот из чего состоит полный дизайн проект.