Добавить в корзинуПозвонить
Найти в Дзене
Дача Хит

Модульный дом «Кунжут 51» — готовое жильё «всё включено» под Москвой

Ищете недорогой, но качественный дом для круглогодичного проживания? Хотите купить модульный дом «всё включено» в Москве без лишних хлопот? Тогда «Кунжут 51» от компании «Дача Хит» — идеальный вариант! Этот современный одноэтажный дом площадью 51 м² (с террасой) построен по модульной технологии и полностью готов к заселению. Разберём его преимущества подробнее. ✅ Полная комплектация «под ключ» Не нужно докупать материалы или нанимать рабочих — дом уже включает: ✔ Отделка (ламинат, керамогранит в санузле) ✔ Инженерные системы (электрика, водопровод, отопление) ✔ Встроенная техника (бойлер, светильники, розетки) ✔ Вентиляция (бризеры в каждой комнате) ✅ Быстрое строительство — 2–3 месяца В отличие от кирпичных и каркасных домов, модульная технология позволяет возвести «Кунжут 51» всего за 60–90 дней — от фундамента до сдачи. ✅ Энергоэффективность и комфорт ✔ Тёплые полы + конвекторы (поддержка температуры даже в морозы) ✔ Энергосберегающие окна (двухкамерные стеклопакеты) ✔ Утеплённые ст
Оглавление

Ищете недорогой, но качественный дом для круглогодичного проживания? Хотите купить модульный дом «всё включено» в Москве без лишних хлопот? Тогда «Кунжут 51» от компании «Дача Хит» — идеальный вариант!

Этот современный одноэтажный дом площадью 51 м² (с террасой) построен по модульной технологии и полностью готов к заселению. Разберём его преимущества подробнее.

Почему «Кунжут 51» — выгодная покупка?

Полная комплектация «под ключ»

Не нужно докупать материалы или нанимать рабочих — дом уже включает:

✔ Отделка (ламинат, керамогранит в санузле)

✔ Инженерные системы (электрика, водопровод, отопление)

✔ Встроенная техника (бойлер, светильники, розетки)

✔ Вентиляция (бризеры в каждой комнате)

Быстрое строительство — 2–3 месяца

В отличие от кирпичных и каркасных домов, модульная технология позволяет возвести «Кунжут 51» всего за 60–90 дней — от фундамента до сдачи.

Энергоэффективность и комфорт

✔ Тёплые полы + конвекторы (поддержка температуры даже в морозы)

✔ Энергосберегающие окна (двухкамерные стеклопакеты)

✔ Утеплённые стены и крыша (зимой тепло, летом прохладно)

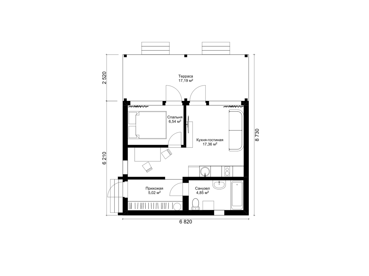
Удобная планировка (34 м2 жилой площади)

- Прихожая (4,5 м2) со шкафом-купе

- Кухня-гостиная (14 м2) с панорамным окном

- Спальня (10 м2) с выходом на террасу

- Санузел (5,5 м2) с душевой кабиной

Терраса 17 м2 в подарок!

Дополнительное пространство для отдыха с:

✔ Прочным хвойным настилом

✔ Защитой от влаги и солнца

✔ Встроенной подсветкой

Почему это выгоднее, чем строить самому?

🔹 Экономия времени — не нужно ждать год, пока дом даст усадку

🔹 Фиксированная цена — без скрытых платежей и перерасхода бюджета

🔹 Гарантия качества — заводское производство исключает ошибки строителей

🚀 Где заказать модульный дом «всё включено» в Москве?

Компания «Дача Хит» — производитель модульных домов с собственным производством.

📌 Преимущества:

✔ Доставка и установка на участке

✔ Возможность рассрочки

✔ Гарантия на материалы и работы

💬 Хотите узнать больше?

👉 Посмотрите проект на сайте: https://dachahit.ru/modulnye-doma/kunzhut/51

#МодульныеДома #КупитьДомМосква #ДомПодКлюч #ДачаХит #Кунжут51

🔎 купить модульный дом всё включено Москва, модульные дома под ключ недорого, готовые дома для ПМЖ, Кунжут 51 цена, модульные дома от производителя, Дача Хит отзывы.