Добавить в корзинуПозвонить
Найти в Дзене
ДОМ с умом

Проект "Виола" - коттедж со сдержанной архитектурой и логичной планировкой

В этом доме дом каждый квадратный метр работает на ваш комфорт. Компактный, одноэтажный, удобный для пожилых и детей — без лестниц и перепадов уровней. Архитектура дома простая и органичная. Она достигается за счёт темных лаконичных фасадов и больших окон. Площадь комфортна для проживания семьи из 4 человек. Общая площадь: 148,6 кв.м
Жилая площадь: 130,7 кв.м
Габариты: 14 м х 13,9м
Фундамент: монолитная плита
Стены: керамический блок 250 мм, утеплитель 100 мм
Отделка фасада: кирпич
Чердачное перекрытие - по деревянным балкам
Крыша - из металлочерепицы по деревянной стропильной системе Пространство дома разделено на две функциональные составляющие: дневную и ночную. Дневная зона представлена просторным помещением кухни-гостиной с выходом на небольшую летнюю террасу, расположенную позади дома. Ночная зона включает в себя три спальни, одна из которых мастер-спальня с собственной ванной и гардеробной, а также общую ванную комнату. Также в коттедже расположены котельная и кладовая. 📌Жилая
Оглавление

В этом доме дом каждый квадратный метр работает на ваш комфорт. Компактный, одноэтажный, удобный для пожилых и детей — без лестниц и перепадов уровней. Архитектура дома простая и органичная. Она достигается за счёт темных лаконичных фасадов и больших окон. Площадь комфортна для проживания семьи из 4 человек.

Характеристики:

Общая площадь: 148,6 кв.м
Жилая площадь: 130,7 кв.м
Габариты: 14 м х 13,9м
Фундамент: монолитная плита
Стены: керамический блок 250 мм, утеплитель 100 мм
Отделка фасада: кирпич
Чердачное перекрытие - по деревянным балкам
Крыша - из металлочерепицы по деревянной стропильной системе

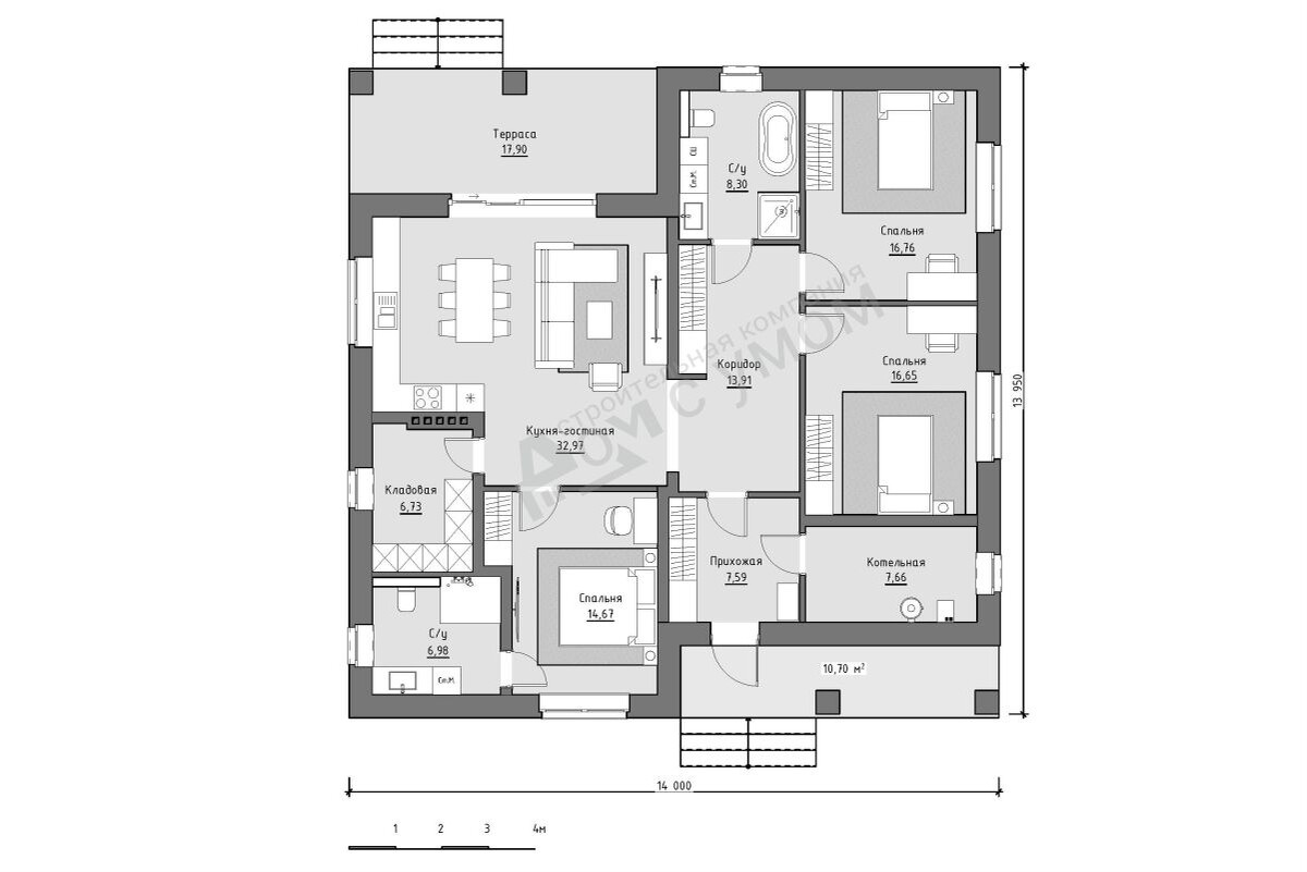
Планировка:

Пространство дома разделено на две функциональные составляющие: дневную и ночную. Дневная зона представлена просторным помещением кухни-гостиной с выходом на небольшую летнюю террасу, расположенную позади дома. Ночная зона включает в себя три спальни, одна из которых мастер-спальня с собственной ванной и гардеробной, а также общую ванную комнату. Также в коттедже расположены котельная и кладовая.

-2

📌Жилая площадь – 130,7 кв.м
📌Кухня-гостиная – 32,9 кв.м
📌Спальни – 3 шт.
📌Терраса – 17,9 кв.м