Найти в Дзене
ТЕХНОНИКОЛЬ ИЖС

Дом - хит 2024 года! МОНЕ 49: Компактный дом с большим потенциалом

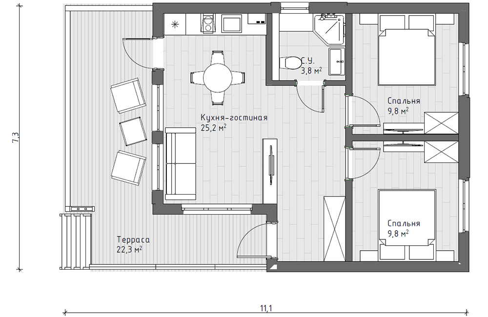
Проект МОНЕ 49 от ДОМ ТЕХНОНИКОЛЬ стал настоящим бестселлером 2024 года. Этот одноэтажный коттедж площадью около 50 м² сочетает в себе функциональность, стиль и доступность, что делает его идеальным выбором для дачных участков, коттеджных поселков и даже туристических комплексов. Ключевые особенности: Этот дом идеально вписывается в концепцию «минимум лишнего — максимум комфорта». При площади менее 50 м² в нём грамотно размещены всё необходимое для жизни: кухня-гостиная, спальня, санузел и даже веранда. При этом он подходит как для дачи, так и для постоянного проживания, особенно для пары, пожилых людей или тех, кто хочет начать загородную жизнь с небольших вложений. Что ещё важно — дом полностью готов к проживанию: инженерные коммуникации уже внутри, материалы подобраны с учётом энергоэффективности и долговечности. Проект оказался настолько удачным, что именно его чаще всего выбирают на выставках, рекомендуют друзья и заказывают повторно для родителей или гостей. Проект МОНЕ 49 — это

Проект МОНЕ 49 от ДОМ ТЕХНОНИКОЛЬ стал настоящим бестселлером 2024 года. Этот одноэтажный коттедж площадью около 50 м² сочетает в себе функциональность, стиль и доступность, что делает его идеальным выбором для дачных участков, коттеджных поселков и даже туристических комплексов.

Ключевые особенности:

  • Эффективная планировка: две спальни, кухня-гостиная и компактный санузел обеспечивают комфортное проживание.

Этот дом идеально вписывается в концепцию «минимум лишнего — максимум комфорта». При площади менее 50 м² в нём грамотно размещены всё необходимое для жизни: кухня-гостиная, спальня, санузел и даже веранда. При этом он подходит как для дачи, так и для постоянного проживания, особенно для пары, пожилых людей или тех, кто хочет начать загородную жизнь с небольших вложений.

-2
  • Универсальный дизайн: внешний вид дома можно адаптировать под различные стили — от классического шале до современного минимализма, благодаря разнообразным вариантам отделки.
  • Быстрое строительство: панельно-каркасная технология позволяет возвести дом за считанные недели.

Что ещё важно — дом полностью готов к проживанию: инженерные коммуникации уже внутри, материалы подобраны с учётом энергоэффективности и долговечности. Проект оказался настолько удачным, что именно его чаще всего выбирают на выставках, рекомендуют друзья и заказывают повторно для родителей или гостей.

  • Практичность: дом легко обслуживать, а его компактные размеры делают его экономичным в эксплуатации.
-3

Проект МОНЕ 49 — это идеальное решение для тех, кто ищет уютный и функциональный дом без лишних затрат.

А проект МОНЕ 60 можно заказать уже готовый прямо со склада. Представьте, заселиться в дом через 1 месяц после начала строительства?

👉 Подробнее о проекте читайте в полной статье: Этот проект стал бестселлером