Найти в Дзене
DIVAN.RU

Милая однушка 42 кв.м для молодой девушки, кота и кошки

Хозяйка этой квартиры работает в сфере IT и увлекается керамикой. Особое внимание при проектировании интерьера она просила уделить гардеробной и санузлу. Коты тоже не остались без внимания — у каждого теперь есть свой вход в личную уборную. Планировка от застройщика оказалась удачной: комнаты правильной формы, ниши под встроенные шкафы в спальне и прихожей. Неудобно была размещена только дверь в санузел. Проем сместили всего на полметра — а в результате появилось место для установки мебели (вдоль стены встала тумба с раковиной). В спальне достроили стену гардеробной, увеличив площадь под хранение. Итог — на схеме ниже, а исходная планировка — в галерее, листайте👇 «Планировочное решение этой кухни — универсальное для новостроек, — рассказывает дизайнер. — В 12 квадратов удачно встает гостиная зона с телевизором, при этом мы не жертвуем кухней и столовой зоной». Гарнитур заказали угловой. Фасады нижнего яруса с ручками-профилями Гола в цвете латуни, фасады верхнего открываются нажатием.
Оглавление

Хозяйка этой квартиры работает в сфере IT и увлекается керамикой. Особое внимание при проектировании интерьера она просила уделить гардеробной и санузлу. Коты тоже не остались без внимания — у каждого теперь есть свой вход в личную уборную.

Автор проекта: дизайнер Евгения Петренко, автор фото: Евгений Гнесин
Автор проекта: дизайнер Евгения Петренко, автор фото: Евгений Гнесин
  • Объект: однокомнатная квартира, 42 кв.м (с лоджией 44,2 кв.м), ЖК «Алия», г. Москва
  • Автор проекта: дизайнер Евгения Петренко, автор фото: Евгений Гнесин
  • Бюджет проекта: 4 млн рублей

Что просила владелица

  • Использовать дерево, зеленый и серый оттенки в отделке и мебели.
  • Предусмотреть рабочее место.
  • Выделить гардеробную.
  • Оформить уютный санузел.
  • Организовать хранение керамических изделий, которые хозяйка делает своими руками.

Логика планировки

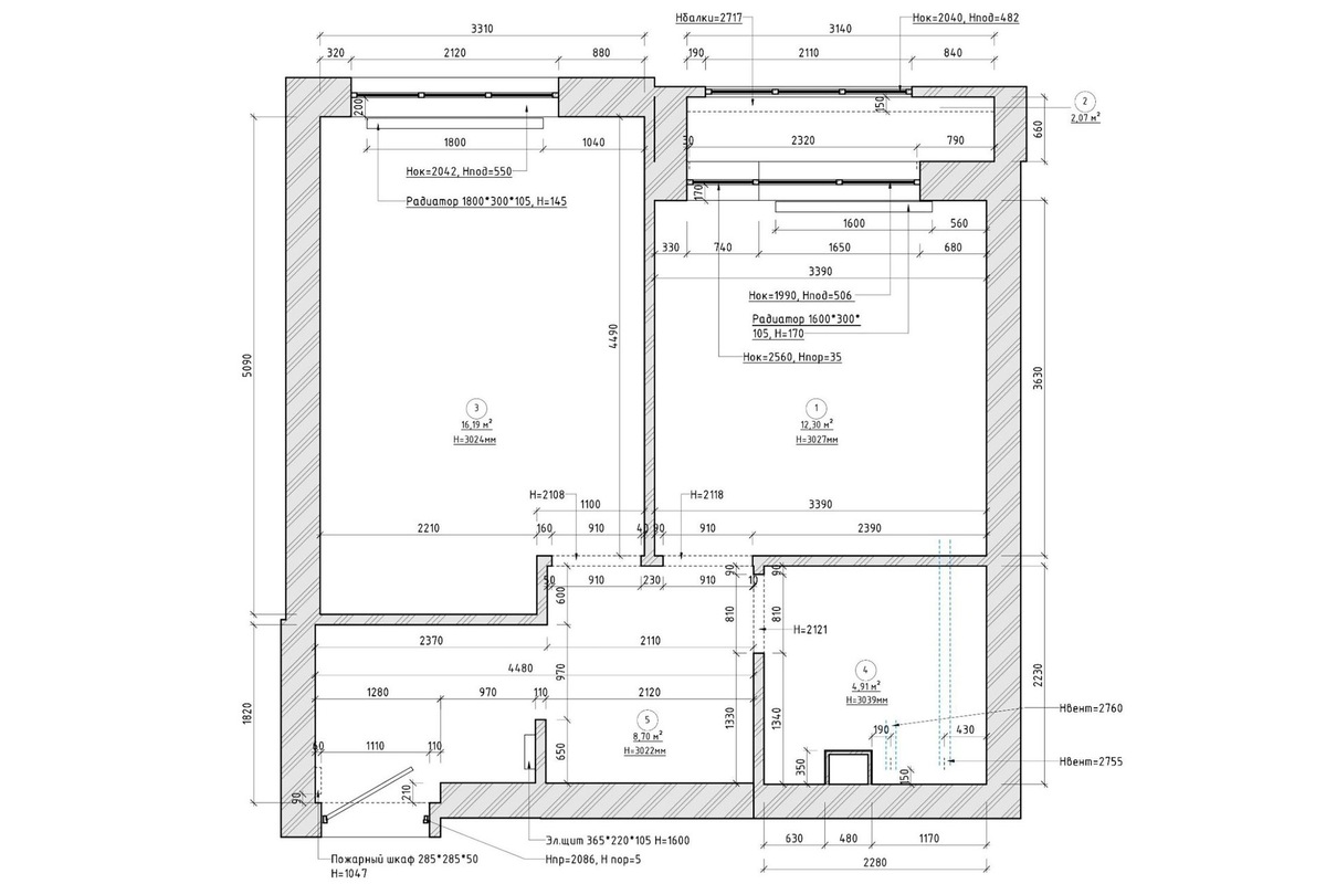
Планировка от застройщика оказалась удачной: комнаты правильной формы, ниши под встроенные шкафы в спальне и прихожей. Неудобно была размещена только дверь в санузел. Проем сместили всего на полметра — а в результате появилось место для установки мебели (вдоль стены встала тумба с раковиной). В спальне достроили стену гардеробной, увеличив площадь под хранение. Итог — на схеме ниже, а исходная планировка — в галерее, листайте👇

Кухня-гостиная

«Планировочное решение этой кухни — универсальное для новостроек, — рассказывает дизайнер. — В 12 квадратов удачно встает гостиная зона с телевизором, при этом мы не жертвуем кухней и столовой зоной».

Гарнитур заказали угловой. Фасады нижнего яруса с ручками-профилями Гола в цвете латуни, фасады верхнего открываются нажатием. Встроенную микроволновку разместили на верхнем ярусе кухни (обычно ее встраивают в высокий пенал, но в этом гарнитуре его не проектировали в целях экономии места). Чтобы печь не слишком выделялась на фоне фасадов, выше организовали витрину с рифленым стеклом и подсветкой. Холодильник по просьбе хозяйки приобрели отдельно стоящий.

Для дивана оставалось всего полтора метра, и мы долго искали раскладную модель, которая впишется в такой маленький простенок. Идеально вошла модель Кускен от divan.ru. Диван трансформируется в кровать, хозяйка сможет оставить гостей на ночь.

➡️Товары бренда divan.ru

Диван прямой Кускен Velvet Sand

Журнальный стол Глэд Black

Стул Меган Velvet Beige

Спальня

Стену за изголовьем кровати оформили фреской с растительным принтом. Нейтральный цвет и природный рисунок поддерживают общую «натуральную» концепцию. По мнению дизайнера, фреска — хорошая альтернатива обоям, имеет минимальное количество стыков или просто клеится единым полотном.

Автор проекта: дизайнер Евгения Петренко, автор фото: Евгений Гнесин
Автор проекта: дизайнер Евгения Петренко, автор фото: Евгений Гнесин

Обратите внимание: для дополнительного зонирования стены декорировали гипсовыми 3D-панелями — они выделяют рабочую зону на общем фоне.

Стол Монблан от divan.ru привлек интересными фасадами из МДФ и лаконичными латунными ручками, которые работают в паре со светильником на стене», — объясняет свой выбор дизайнер.

➡️Товары бренда divan.ru

Кровать Лайтси 160 Velvet Grey

Письменный стол Монблан Line Milk

При входе в комнату выстроена гардеробная. В качестве фасада — сдвижная конструкция с горизонтальными рейками. Недостаток у такой системы только один — нужно постоянно поддерживать порядок. Но, по мнению хозяйки, визуально оно того стоит.

Автор проекта: дизайнер Евгения Петренко, автор фото: Евгений Гнесин
Автор проекта: дизайнер Евгения Петренко, автор фото: Евгений Гнесин

Прихожая

В прихожей установили «парящий» шкаф — под ним оставили место для повседневной обуви.

Входную зону украсил пуф Плиди от divan.ru в трендовой обивке “барашек”. В ней он выглядит, как облачко — оценивает каждый приходящий гость.

В основной части прихожей — шкаф для бытового хранения. В нем стоит стиральная машина, гладильная доска, сушилка и пылесос.

Хозяйка планировала жить в квартире одна, но по счастливой случайности компанию ей составили кот и кошка. Пришлось импровизировать со шкафом в прихожей — внутри теперь две уборные для животных. Для быстрого доступа к ним в фасадах выпилили два входа.

Автор проекта: дизайнер Евгения Петренко, автор фото: Евгений Гнесин
Автор проекта: дизайнер Евгения Петренко, автор фото: Евгений Гнесин

Санузел

Оформлению санузла уделили особое внимание. По словам хозяйки, сочетание приглушенного оливкового цвета с «теплым» деревом делает комнату очень комфортной.

Стены и пол облицевали керамогранитом. Для хранения предусмотрели тумбу под раковиной, нишу для шампуней у ванны, встроенный шкаф для косметики под стеклянным фасадом, хранение над инсталляцией.

===============

Оцените интерьер в комментариях, а если материал понравился — не забудьте поставить лайк👍

===============

🖤divan.ru — не только блог про интерьеры, но и производитель доступной дизайнерской мебели. Ищите новые идеи и переходите на сайт, чтобы воплотить их в жизнь.

-11

💥 Успейте купить мебель из наличия со скидками до -70%. Закажите с быстрой доставкой и оплатите бонусами до 15% стоимости на divan.ru >>