Добавить в корзинуПозвонить
Найти в Дзене
DIVAN.RU

Преобразили типовой ремонт с помощью мебели и декора: евродвушка 32 кв.м в природных оттенках

Небесные и морские цвета в отделке и мебели «оживили» отделку от застройщика в этой квартире. В целях минимизировать бюджет на ремонт планировку и отделку от застройщика не меняли. В квартире есть отдельная спальня, кухня-гостиная, небольшая прихожая, санузел. Г-образный кухонный гарнитур, встроенный в нишу, завершается барной стойкой. Она делит комнату на зоны готовки и отдыха. Чтобы визуально объединить пространство, в обеих использовали бирюзовый цвет. В кухне это нижние шкафы и пенал для встроенного холодильника. Морской оттенок добавляет свежести, оживляет интерьер и служит акцентом. У окна обустроили зону отдыха с раскладным диваном Маркфул от бренда divan.ru. Обивку подобрали в цвет кухонного гарнитура. Вертикальные полосы на обивке поддержали рифлеными фасадами ТВ-тумбы. ➡️Товары бренда divan.ru Диван прямой Маркфул Velvet Ocean Ковер Нуэл 160x230 Компактный стол у окна можно использовать в качестве рабочего места. Стену за диваном украсили «морскими» постерами. Они поддержив
Оглавление

Небесные и морские цвета в отделке и мебели «оживили» отделку от застройщика в этой квартире.

Автор проекта: дизайнер Кристина Личик; автор фото: Константин Пырьев
Автор проекта: дизайнер Кристина Личик; автор фото: Константин Пырьев
  • Об объекте: евродвушка 32 кв.м в г. Москва
  • Автор проекта: дизайнер Кристина Личик; автор фото: Константин Пырьев

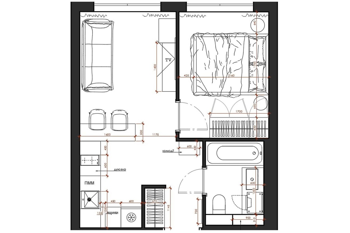
Планировочное решение

В целях минимизировать бюджет на ремонт планировку и отделку от застройщика не меняли. В квартире есть отдельная спальня, кухня-гостиная, небольшая прихожая, санузел.

Планировочное решение и расстановка мебели
Планировочное решение и расстановка мебели

Кухня-гостиная

Г-образный кухонный гарнитур, встроенный в нишу, завершается барной стойкой. Она делит комнату на зоны готовки и отдыха. Чтобы визуально объединить пространство, в обеих использовали бирюзовый цвет. В кухне это нижние шкафы и пенал для встроенного холодильника. Морской оттенок добавляет свежести, оживляет интерьер и служит акцентом.

Автор проекта: дизайнер Кристина Личик; автор фото: Константин Пырьев
Автор проекта: дизайнер Кристина Личик; автор фото: Константин Пырьев
У окна обустроили зону отдыха с раскладным диваном Маркфул от бренда divan.ru. Обивку подобрали в цвет кухонного гарнитура. Вертикальные полосы на обивке поддержали рифлеными фасадами ТВ-тумбы.
-4

➡️Товары бренда divan.ru

Диван прямой Маркфул Velvet Ocean

Ковер Нуэл 160x230

Компактный стол у окна можно использовать в качестве рабочего места. Стену за диваном украсили «морскими» постерами. Они поддерживают основную идею проекта и создают отпускное настроение.

Спальня

Прохладную синюю палитру в спальне разбавили теплыми оттенками розового. Цветовая гамма создает ощущение спокойствия и умиротворения, необходимое для полноценного отдыха.

На стене за изголовьем — обои с изображением южных растений на фоне моря. Природные ноты добавляют тепла и поддерживают тематику проекта.

Кровать Лайтси от divan.ru гармонично вписалась в обстановку.

➡️Товары бренда divan.ru

Кровать Лайтси 180 Velvet Navy Blue

Подушка Деко Velvet Corall

-7

▶️Обновите интерьер с выгодой! Применяйте скидку на товары из подборки: -2500 ₽ по промокоду CART и с тегом -5000 ₽ по промокоду CART5 >>

Обратите внимание: оттенок обивки повторили вертикальной полосой на стене у окна. Она добавляет интерьеру «глубины» и делает его более «сложным».

Для хранения предусмотрели вместительный шкаф высотой в потолок. Зеркальная секция визуально расширяет помещение и добавляет света.

Автор проекта: дизайнер Кристина Личик; автор фото: Константин Пырьев
Автор проекта: дизайнер Кристина Личик; автор фото: Константин Пырьев

Прихожая

Основное хранение организовали в прихожей. Вдоль одной стены разместили шкаф с раздвижными зеркальными дверями — оптимальное решение для узкого помещения. На верхних полках выделили место для несезонных вещей.

Автор проекта: дизайнер Кристина Личик; автор фото: Константин Пырьев
Автор проекта: дизайнер Кристина Личик; автор фото: Константин Пырьев

Санузел

Стиральную машину установили под общей столешницей с раковиной. Для хранения предусмотрели шкаф над инсталляцией и место под ванной за жалюзийными дверцами.

Автор проекта: дизайнер Кристина Личик; автор фото: Константин Пырьев
Автор проекта: дизайнер Кристина Личик; автор фото: Константин Пырьев

===============

Не забудьте оценить интерьер в комментариях, а если материал понравился — ставьте лайк👍

===============

🖤divan.ru — не только блог про интерьеры, но и производитель доступной дизайнерской мебели. Ищите новые идеи и переходите на сайт, чтобы воплотить их в жизнь.