Найти в Дзене
Дом на Кубани

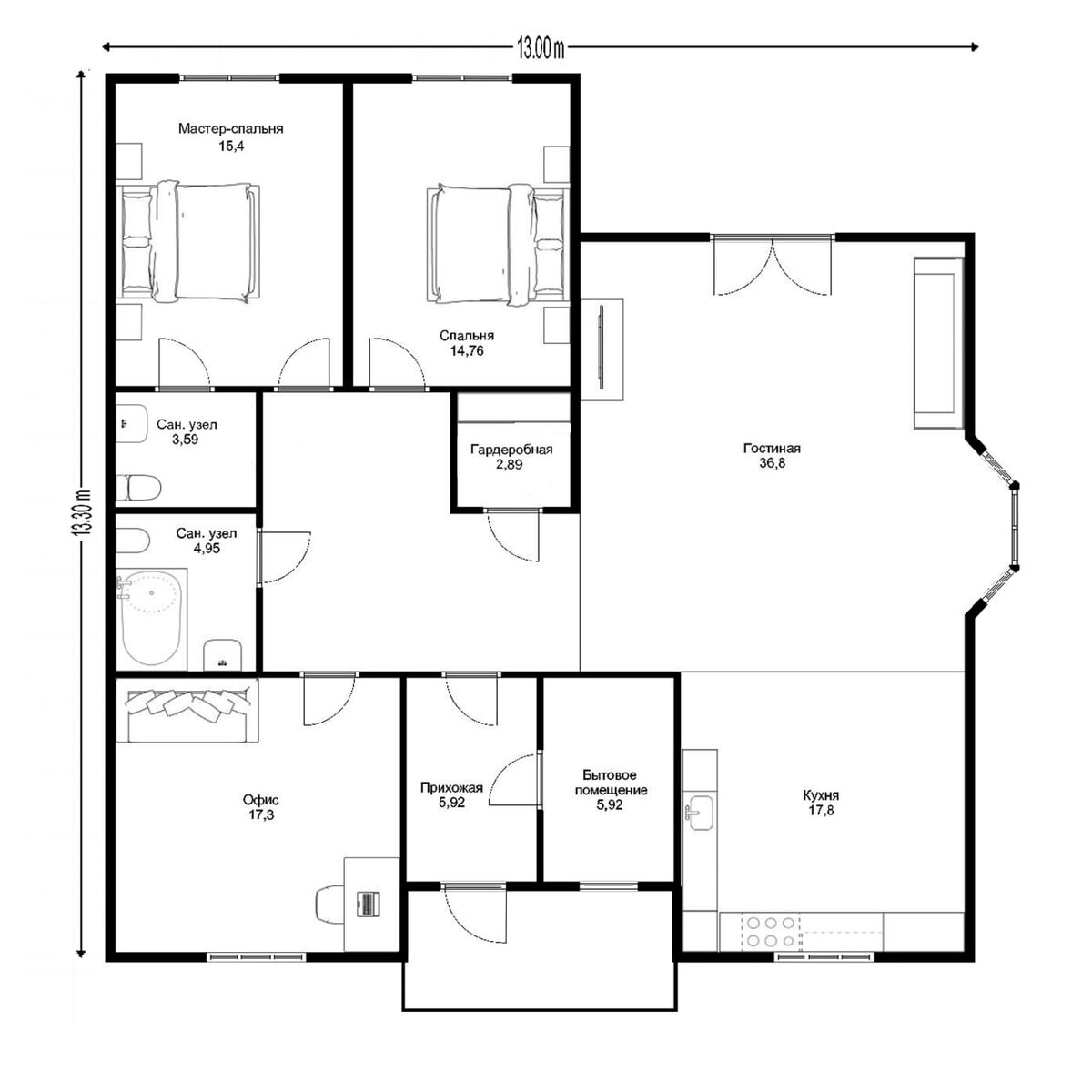
ДНК-107. Площадью 140 м2.

Наш совершенно новый проект, который был создан по пожеланиям многих из вас.
Среди наших заказчиков очень много самозанятых.
Тех, кто может вести свою деятельность на дому, не арендуя помещений.
Это и юристы и парикмахеры и ательеры и массажисты итп...
Отдельный кабинет, вход в который можно сделать либо прямо с улицы, либо через отдельный тамбур.
В отдельном тамбуре можно разместить еще один гостевой санузел.
Планировка дома позволяет сделать множество вариаций именно под ваше пожелание.
Дом-работа! Работа-дом!
Не надо ни у кого ничего отдельно арендовать,если можно сделать под одной крышей!
Хотите? Мы сделаем!!!
+79184707686
дом-накубани.рф.
Краснодар, ул. Индустриальная 57.

Наш совершенно новый проект, который был создан по пожеланиям многих из вас.

Среди наших заказчиков очень много самозанятых.

Тех, кто может вести свою деятельность на дому, не арендуя помещений.

Это и юристы и парикмахеры и ательеры и массажисты итп...

Отдельный кабинет, вход в который можно сделать либо прямо с улицы, либо через отдельный тамбур.

В отдельном тамбуре можно разместить еще один гостевой санузел.

Планировка дома позволяет сделать множество вариаций именно под ваше пожелание.

Дом-работа! Работа-дом!

Не надо ни у кого ничего отдельно арендовать,если можно сделать под одной крышей!

Хотите? Мы сделаем!!!

+79184707686

дом-накубани.рф.

Краснодар, ул. Индустриальная 57.