Добавить в корзинуПозвонить
Найти в Дзене

Проект дома «Агава» — стильный хай-тек и максимальный комфорт

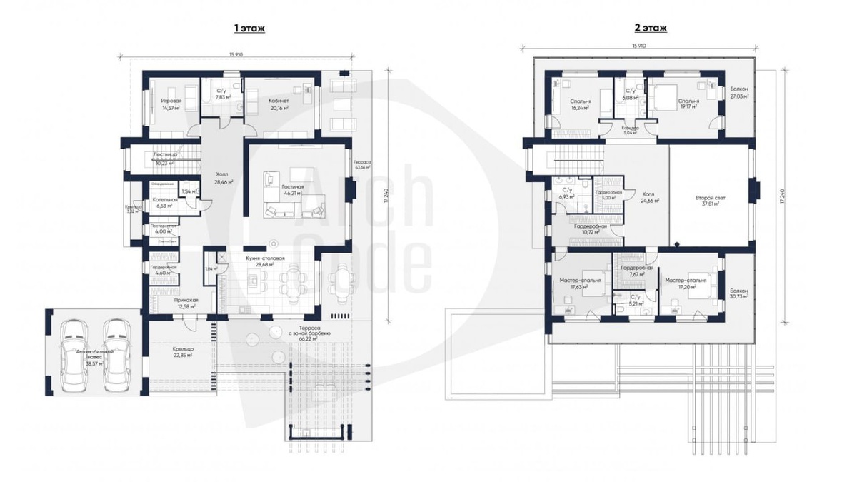
Представляем вам проект элегантного двухэтажного коттеджа «Агава» в современном хай-тек стиле. Площадь и пространство: - Общая жилая площадь: 378,93 м² - Террасы: 109,89 м² — идеально подходят для отдыха на открытом воздухе - Балконы: 58,05 м² — для утреннего кофе и вечернего расслабления - Два крыльца: 27,34 м² - Навес для автомобиля: 38,82 м² Планировка и удобства: - 2 мастер-спальни - 2 детские комнаты - 5 санузлов - Кухня-столовая и просторная гостиная - Кабинет и игровая комната для работы и отдыха - Второй свет Дизайн и архитектура: - Впечатляющий внешний вид в стиле хай-тек - Панорамные окна и использование натуральных материалов Как построить дом в Тюмени? Как построить дом в Москве? Готовые дома в Тюмени Готовые дома в Москве Земельные участки в Тюмени Задать вопрос в ТГ И подписывайтесь на наш канал, чтобы не пропустить новые интересные проекты. #проектдома #проектдвухэтажногодома #построитьдом #купитьдом #двухэтажныйдом #лучшиедвухэтажныедома #дом #новыедома

Представляем вам проект элегантного двухэтажного коттеджа «Агава» в современном хай-тек стиле.

Площадь и пространство:

- Общая жилая площадь: 378,93 м²

- Террасы: 109,89 м² — идеально подходят для отдыха на открытом воздухе

- Балконы: 58,05 м² — для утреннего кофе и вечернего расслабления

- Два крыльца: 27,34 м²

- Навес для автомобиля: 38,82 м²

Планировка и удобства:

- 2 мастер-спальни

- 2 детские комнаты

- 5 санузлов

- Кухня-столовая и просторная гостиная

- Кабинет и игровая комната для работы и отдыха

- Второй свет

Дизайн и архитектура:

- Впечатляющий внешний вид в стиле хай-тек

- Панорамные окна и использование натуральных материалов

-2

Понравился проект? Заказать проект или выбрать подобный можно по телефону: +79323212510. Звоните или пишите. Заявки принимаются по вотцап, телеграмм. Готовы рассчитать для вас смету!

Как построить дом в Тюмени?

Как построить дом в Москве?

Готовые дома в Тюмени

Готовые дома в Москве

Земельные участки в Тюмени

Задать вопрос в ТГ

И подписывайтесь на наш канал, чтобы не пропустить новые интересные проекты.

#проектдома #проектдвухэтажногодома #построитьдом #купитьдом

#двухэтажныйдом #лучшиедвухэтажныедома #дом #новыедома