Добавить в корзинуПозвонить
Найти в Дзене
GREY HOUSE

Строительство каркасного дома «Нева»: первые этапы завершены

Бригада строителей приступила к возведению каркасного дома «Нева» — современного и комфортного жилья для большой семьи. Уже выполнены подготовительные работы, и сейчас активно ведется монтаж каркаса. На текущий момент завершены следующие этапы строительства: - Монтаж свайного фундамента - Обвязка фундамента — надежное основание для будущего дома. - Монтаж чернового пола и защитной сетки от грызунов - Монтаж ветрозащитной мембраны и устройство нулевого перекрытия Технические характеристики дома «Нева» - Площадь: 177 м² - Планировка: 5 спален, 2 санузла, гардеробная, прихожая, котельная - Просторная кухня-столовая — удобство для семейных обедов - Гостиная со вторым светом — большое количество естественного света и ощущение простора - Терраса 34 м² — идеальное место для отдыха на свежем воздухе Дом возводится с использованием семейной ипотеки, что делает его покупку более доступной для семей с детьми. Все расчеты ведутся через эскроу-счета, обеспечивающие безопасность сделки. Следите за о
Оглавление

Бригада строителей приступила к возведению каркасного дома «Нева» — современного и комфортного жилья для большой семьи. Уже выполнены подготовительные работы, и сейчас активно ведется монтаж каркаса.

Визуализация дома Нева
Визуализация дома Нева

Что уже сделано?

На текущий момент завершены следующие этапы строительства:

- Монтаж свайного фундамента

-3

- Обвязка фундамента — надежное основание для будущего дома.

-4

- Монтаж чернового пола и защитной сетки от грызунов

-5

- Монтаж ветрозащитной мембраны и устройство нулевого перекрытия

Возведение каркаса

Каркас дома и стропильная система
Каркас дома и стропильная система
Каркас дома и стропильная система
Каркас дома и стропильная система
Каркас дома и стропильная система
Каркас дома и стропильная система
Каркас дома и стропильная система
Каркас дома и стропильная система
-11
-12
Утепление дома
Утепление дома
Монтаж ветрозащитной мембраны
Монтаж ветрозащитной мембраны
Монтаж кровли
Монтаж кровли
Монтаж фасада
Монтаж фасада
Монтаж ограждения террасы
Монтаж ограждения террасы
Подготовка полу к монтажу труб теплого пола
Подготовка полу к монтажу труб теплого пола
Подшивка потолка террасы
Подшивка потолка террасы

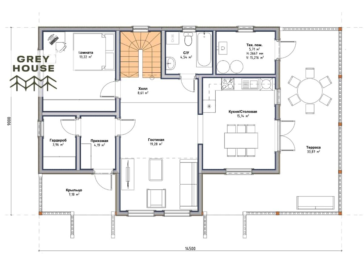
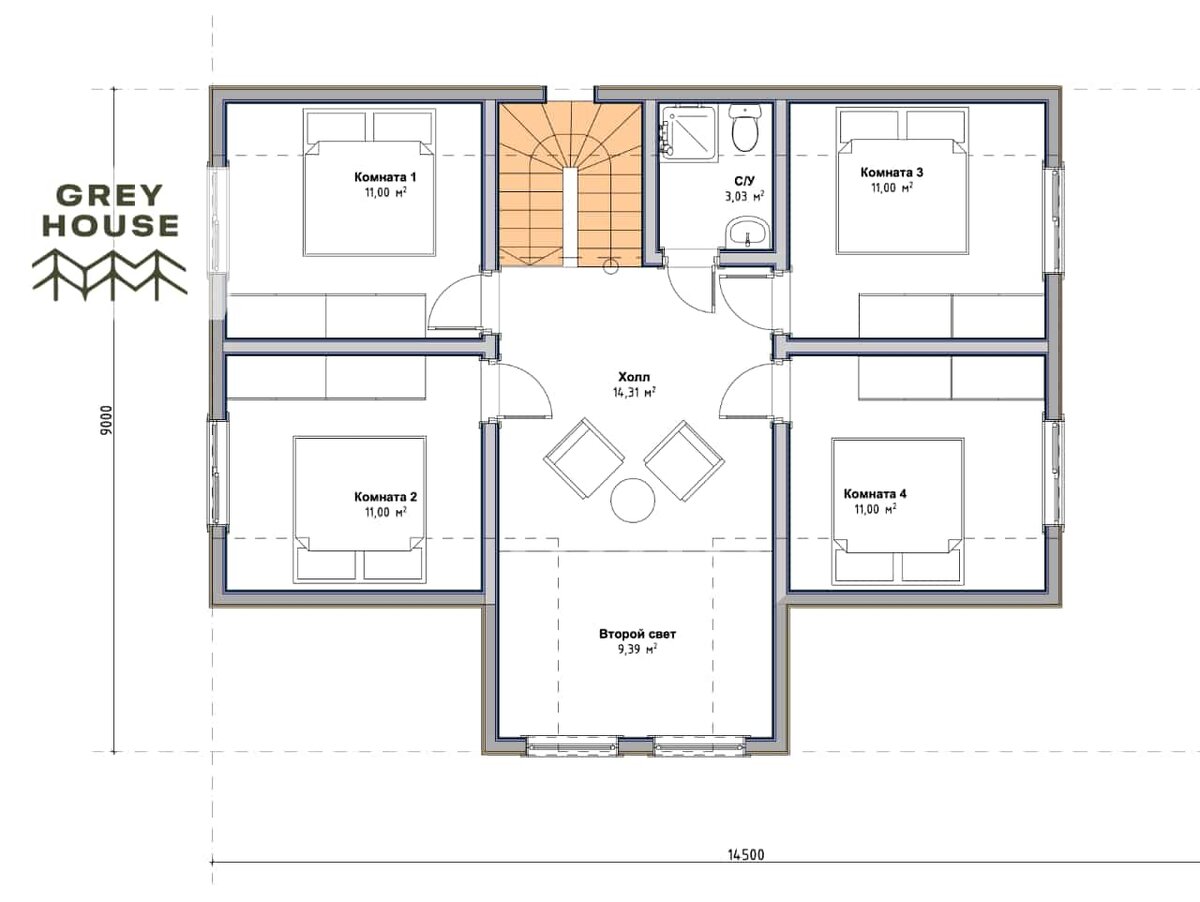
Технические характеристики дома «Нева»

- Площадь: 177 м²

- Планировка: 5 спален, 2 санузла, гардеробная, прихожая, котельная

- Просторная кухня-столовая — удобство для семейных обедов

- Гостиная со вторым светом — большое количество естественного света и ощущение простора

- Терраса 34 м² — идеальное место для отдыха на свежем воздухе

Финансирование строительства

Дом возводится с использованием семейной ипотеки, что делает его покупку более доступной для семей с детьми. Все расчеты ведутся через эскроу-счета, обеспечивающие безопасность сделки.

Следите за обновлениями — в следующих статьях расскажем о прогрессе в строительстве каркасного дома «Нева»!

Преимущества проекта

- Энергоэффективность – качественное утепление и современные окна снижают теплопотери.

- Продуманная планировка – оптимальное зонирование для комфортного проживания.

- Долговечные материалы – использование сухого строганого бруса, металлочерепицы и устойчивых к влаге пород дерева.

- Готовые инженерные решения – тёплый пол, продуманная электрика и водоотведение.

Как заказать аналогичный проект?

Компания Grey House специализируется на строительстве каркасных домов в Москве и Московской области. Если вас заинтересовал этот проект, вы можете:

- Узнать стоимость строительства под ключ.

- Заказать индивидуальную адаптацию планировки.

- Выбрать альтернативные варианты отделки и комплектации.

Контакты для связи:

- Телефон: 8 (495) 504-71-33

- WhatsApp: 8 (909) 622-35-22

- Подробнее о проектах: Grey House

Этот дом – отличное решение для тех, кто ценит качество, скорость строительства и комфорт загородной жизни. Следите за ходом строительства в нашем блоге!