Найти в Дзене

Гостиная вместо спальни

Гостиная вместо спальни? Такое предложение было у клиентки в этом проекте. Спальня изначально была очень мелкой и «душной», а хотелось какого-то простора. Мое дизайнерское видение было другое ) спальню я предложила оставить на своем законном месте, переместив перегородку. Слава небесам, что застройщик предоставил нам такую возможность 👏Тем более перегородки изначально были выстроены под снос. И вот, что у нас получилось ✅ #проект #планировка

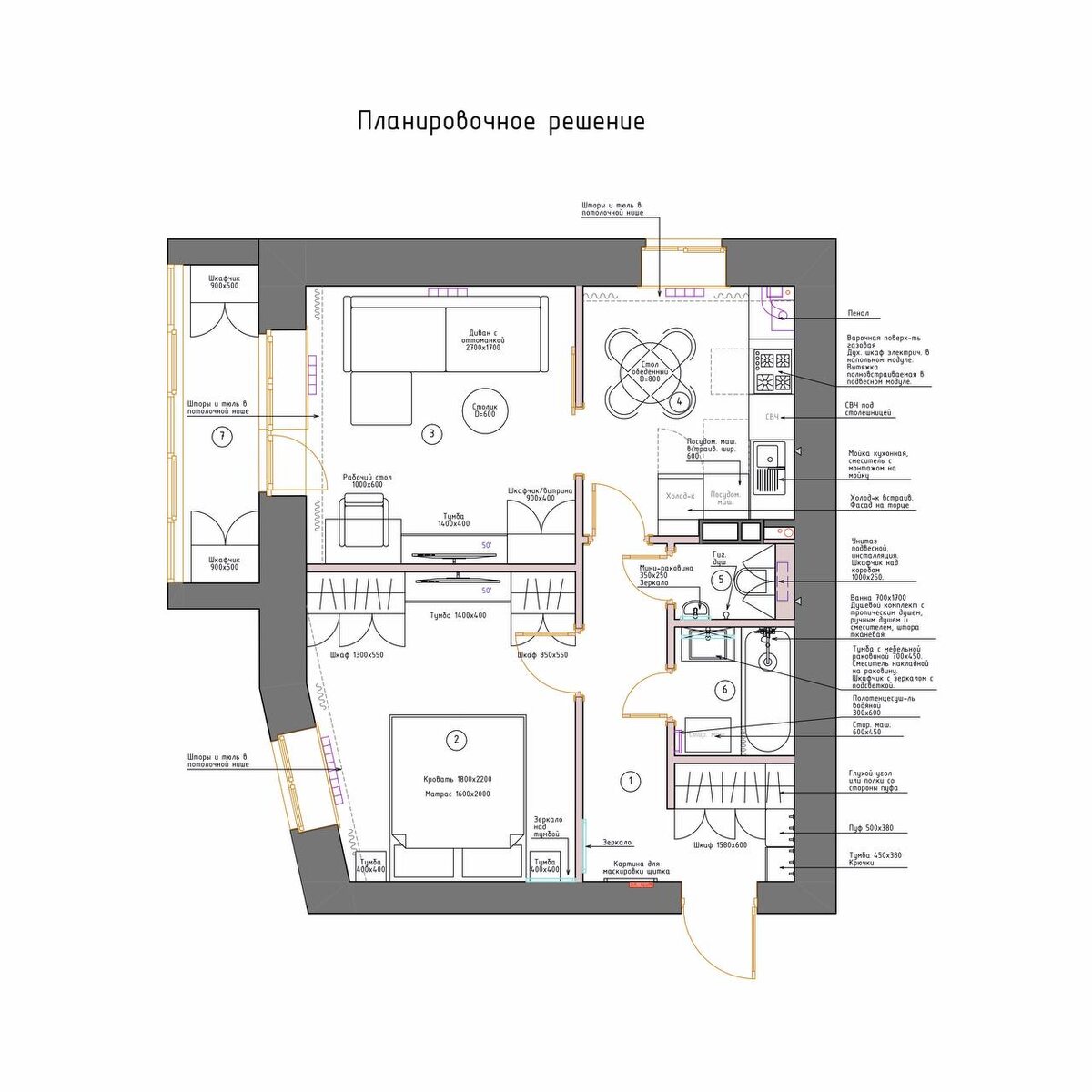
Гостиная вместо спальни?

Такое предложение было у клиентки в этом проекте. Спальня изначально была очень мелкой и «душной», а хотелось какого-то простора.

Мое дизайнерское видение было другое ) спальню я предложила оставить на своем законном месте, переместив перегородку.

Слава небесам, что застройщик предоставил нам такую возможность 👏Тем более перегородки изначально были выстроены под снос.

И вот, что у нас получилось ✅

#проект #планировка

-2