Найти в Дзене

Администрации Кирова выделят 100 млн рублей на разработку проектной документации для строительства проспекта Липатникова

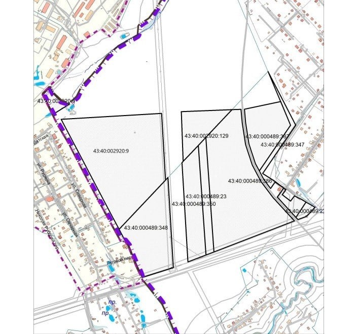
Администрации Кирова выделят 100 млн рублей на разработку проектной документации для строительства проспекта Липатникова. Решение о выделении субсидии стало частью корректировки бюджета Кировской области. Сегодня соответствующий законопроект поддержали депутаты Законодательного собрания региона. — Эта улица необходима для обеспечения транспортной доступности города, она позволит снизить нагрузку на ул. Ленина и даст возможность комплексного развития территории за микрорайоном Чистые пруды. Планируется построить 1,04 млн кв. метров жилья. Градостроительный потенциал нового микрорайона оценивается в 1,7 млн кв. метров, — пояснили в правительстве региона.

Администрации Кирова выделят 100 млн рублей на разработку проектной документации для строительства проспекта Липатникова.

Решение о выделении субсидии стало частью корректировки бюджета Кировской области. Сегодня соответствующий законопроект поддержали депутаты Законодательного собрания региона.

— Эта улица необходима для обеспечения транспортной доступности города, она позволит снизить нагрузку на ул. Ленина и даст возможность комплексного развития территории за микрорайоном Чистые пруды. Планируется построить 1,04 млн кв. метров жилья. Градостроительный потенциал нового микрорайона оценивается в 1,7 млн кв. метров, — пояснили в правительстве региона.