Найти в Дзене

Квартира для многодетной семьи: как найти место для всего

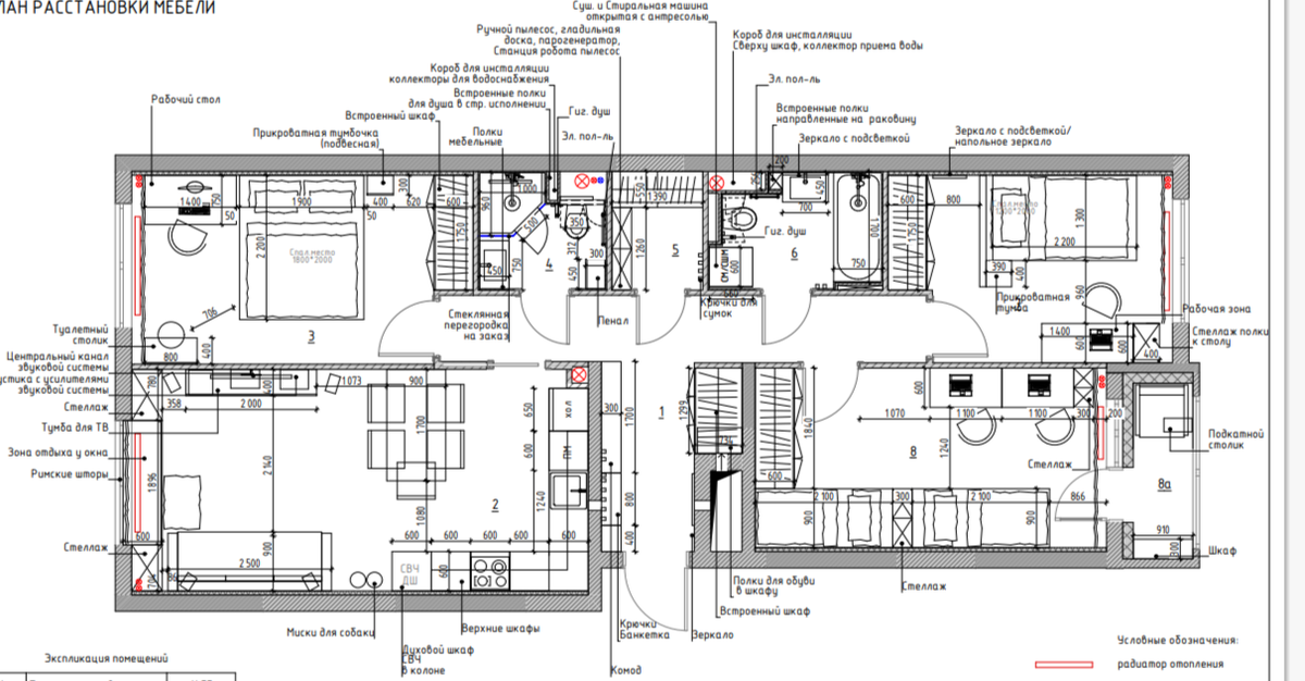
Обустроить квартиру для нужд небольшой семьи уже сложная задача, поскольку надо учесть потребность 2-3 человек. И тем более сложно работать над планировкой квартиры для семьи с тремя детьми, где важно обеспечить не только большое количество мест хранения, но и личное пространство для каждого члена семьи. Квартира на две стороны, с тремя спальнями, две из них детские, двумя санузлами, большой кухней-гостиной и общей гардеробной. Во всех помещениях, включая небольшую лоджию, продуманы места хранения. Для этого проекта мы выбрали вот такой вариант кухни: нижняя база максимально с выдвижными ящиками, кроме модулей слева, там, где посудомоечная машина, мойка и угловой шкаф. СВЧ на уровне 110 см от пола – в квартире 3 ребенка, и удобное использование этой техники для них тоже важно было предусмотреть. Обеденная зона традиционно посредине, между кухней и гостиной. Обеденная группа из массива, столешница МДФ в шпоне, стол раскладной. Основные цвета – это белый, серый и несколько оттенков зелен

Обустроить квартиру для нужд небольшой семьи уже сложная задача, поскольку надо учесть потребность 2-3 человек. И тем более сложно работать над планировкой квартиры для семьи с тремя детьми, где важно обеспечить не только большое количество мест хранения, но и личное пространство для каждого члена семьи.

Портфолио Remplanner
Портфолио Remplanner

Квартира на две стороны, с тремя спальнями, две из них детские, двумя санузлами, большой кухней-гостиной и общей гардеробной. Во всех помещениях, включая небольшую лоджию, продуманы места хранения.

Портфолио Remplanner
Портфолио Remplanner

Для этого проекта мы выбрали вот такой вариант кухни: нижняя база максимально с выдвижными ящиками, кроме модулей слева, там, где посудомоечная машина, мойка и угловой шкаф. СВЧ на уровне 110 см от пола – в квартире 3 ребенка, и удобное использование этой техники для них тоже важно было предусмотреть.

Портфолио Remplanner
Портфолио Remplanner

Обеденная зона традиционно посредине, между кухней и гостиной. Обеденная группа из массива, столешница МДФ в шпоне, стол раскладной.

Портфолио Remplanner
Портфолио Remplanner

Основные цвета – это белый, серый и несколько оттенков зеленого. Цветовая гамма холодная, это осознанное решение – окно выходит на южную сторону, и в теплое время года визуальная прохлада становится плюсом.

Портфолио Remplanner
Портфолио Remplanner

Необычное решение было принято для оформления зоны у окна. Мы часто говорим, что стену с окном напрасно игнорируют, особенно там, где важно использовать каждый уголок пространства. Здесь у нас с двух сторон от окна расположены большие шкафы-витрины с двусторонним доступом. Со стороны окна открывается доступ к книжным полкам. Вместо подоконника — мягкая зона отдыха, радиатор заменили на более узкий, что позволило освободить место под объемные коробки.

Портфолио Remplanner
Портфолио Remplanner

Размещение акустической системы было еще одной задачей, и в целом удалось вписать динамики максимально органично.

Портфолио Remplanner
Портфолио Remplanner

Для пространства площадью 24 м2 выбранный стиль оформления хорошо подходит, поскольку не предполагает обилия декоративных деталей, способных перегрузить пространство. Решение со шкафами у окна позволило немного скорректировать пропорции комнаты, сделать ее визуально чуть более квадратной.

Портфолио Remplanner
Портфолио Remplanner

Поскольку коридор здесь длинный и узкий, а напротив кухни-гостиной (на фото справа) расположена дверь душевой, то для кухни-гостиной было решено использовать дверь с коробкой внутри стены – пеналом.

Портфолио Remplanner
Портфолио Remplanner

Цвет стен серо-бежевый, теплый, в сочетании с напольным покрытием цвета дуб смотрится приятно. Кто-то может решить, что слишком темно, но для проходной зоны такой ширины белый цвет был бы ошибкой – потертости неизбежны, и на белой стене следы, в том числе от уборки, стали бы заметны быстрее.

Портфолио Remplanner
Портфолио Remplanner

Прихожая, конечно, один из плюсов данной планировки. Во-первых, она закрытая, то есть непроходная, существующая сама по себе в своем «закутке». Во-вторых, она большая – около 5 м2, что позволило расположить здесь достаточно комфортное для большой семьи хранение. В просторной нише (73х130 см) встал большой встроенный шкаф для верхней одежды, по левой стороне от входной двери расположились открытая вешалка, место для хранения обуви, небольшой комод для шапок, перчаток, шарфов и прочего.

Портфолио Remplanner
Портфолио Remplanner

Мебель мы проектировали с учетом размера семьи, чтобы места хватило всем. Цвет шкафов предполагает покраску в цвет стен, а чтобы разбавить однотонность пространства, стену с вешалкой декорировали панелями в цвете «дуб». Немаркое, удобное в уходе и практичное решение для прихожей.

Как мы уже сказали в начале – в квартире два санузла. Условно можно разделить их на родительский и детский, строго по близости к спальням. Рядом со спальней родителей расположена душевая, площадь чуть меньше 3 м2.

Всё расположено максимально компактно: угловая душевая, рядом с ней слева компактная раковина с тумбой, справа подвесная чаша унитаза и небольшой шкаф-пенал для хранения полотенец, туалетной бумаги, мыла и прочего.

Портфолио Remplanner
Портфолио Remplanner

Ванная комната расположена рядом с детскими спальнями, её площадь побольше – 4,1 м2, здесь кроме сантехники расположились стиральная и сушильная машины, а под тумбой умывальника аккуратно встали корзины для грязного белья.

Портфолио Remplanner
Портфолио Remplanner

За яркость в оформлении отвечает любимая плитка терраццо, компанию ей составляет мелкоформатная плитка мятного цвета, основой служит серо-бежевый керамогранит с текстурой камня.

Портфолио Remplanner
Портфолио Remplanner

Мебель при этом здесь в трех цветах: тумбы в обоих санузлах с текстурой темного дерева, шкафчик над инсталляцией покрашен в мятный, в тон плитки, а вот у колонны с техникой шкаф серого цвета – в тон основному цвету интерьера.

Портфолио Remplanner
Портфолио Remplanner

Гардеробная расположена между санузлами и сочетает в себе функцию хозяйственного помещения. Именно здесь хранятся пылесосы, гладильная доска, напольная сушилка, стремянка, ящик с инструментами и прочие нужные в быту вещи, которым тоже нужно место и желательно не на виду у всех.

Портфолио Remplanner
Портфолио Remplanner

Система хранения Г-образная, материал ЛДСП, общая площадь гардеробной 2,5 м2, повысить ее «вместимость» можно за счет добавления полок, что предполагает конструкция.

Портфолио Remplanner
Портфолио Remplanner

Спальни могут кого-то разочаровать, потому что их интерьер продиктован всё той же практичностью. Например, если вы обратили внимание, ни в гостиной, ни в спальне (ни в детских) нет ковров. В квартире есть собака, и уборка гладких, безворсовых поверхностей куда проще и может выполняться роботом-пылесосом.

Портфолио Remplanner
Портфолио Remplanner

Второй момент, спальня – это еще и рабочий кабинет, такое решение тоже осознанное. Во-первых, не хотелось отнимать место от общего пространства гостиной, во-вторых, в спальне гораздо проще и комфортнее уединиться, тем более в квартире с тремя детьми.

Портфолио Remplanner
Портфолио Remplanner

В целом, тут всё минималистично: простая кровать, но с подъемным механизмом и большим ящиком для хранения внутри, туалетный столик в углу состоит из подвесной консоли и зеркала с подсветкой, вместо телевизора напротив кровати и в изголовье картины с абстрактными рисунками.

Портфолио Remplanner
Портфолио Remplanner

Кстати, важный момент – цвета на картинах сочетаются с текстилем в оформлении кровати, это не так просто подобрать, как может казаться, но именно вот это точное сочетание оттенков создает гармоничной интерьер, в котором нет эффекта «а это здесь зачем».

Портфолио Remplanner
Портфолио Remplanner

Справа от двери мы сделали нишу под встроенный шкаф, получилось сделать его в одной плоскости со стеной, что растворяет шкаф в пространстве, и визуально комната кажется совсем пустой. При этом длина шкафа более 2 м, глубина 60 см, и он весьма вместителен.

Портфолио Remplanner
Портфолио Remplanner

Комната старшей девочки у нас тоже получила свое нестандартное решение. Изголовье кровати делит комнату почти пополам. Во-первых, так мы получили пространство для переодеваний с большим зеркалом – девочкам-подросткам такой уголок обычно очень нужен. Во-вторых, таким образом удалось разместить прикроватную тумбочку. Она отгорожена мягкой стенкой, и риск ударить об нее на входе в комнату минимален.

Портфолио Remplanner
Портфолио Remplanner

Шкаф здесь тоже встроенный и размером почти как у родителей, внутри кровати также есть ящик для хранения. Может использоваться для постельных принадлежностей или сезонных вещей.

Портфолио Remplanner
Портфолио Remplanner

В углу письменный стол и стеллаж с книгами и учебниками вверху и выдвижными ящиками внизу. Цветовая гамма в квартире одна – базовый цвет серо-бежевый, но в каждой комнате свои акцентные цвета. Если в спальне родителей это темно-зеленый, то здесь нежно-персиковый и розовый.

Портфолио Remplanner
Портфолио Remplanner

Вторая спальня больше – 14,7 м2, ведь она предназначена для двух младших девочек. Кровати здесь разделяет общий шкаф-стеллаж, но сами они одинаковые. В углу на входе большой встроенный шкаф, в нижней части которого расположены выдвижные ящики.

Портфолио Remplanner
Портфолио Remplanner

Компактный стеллаж-комод напротив кроватей украшен милыми облачками (из МДФ) и подсветкой-гирляндой. Основное назначение комода – хранение игрушек и детских книг.

Портфолио Remplanner
Портфолио Remplanner

Кровати здесь также имеют дополнительные мягкие бортики, обратите внимание, что это всё докупается отдельно. Очень часто продается только кровать-тахта с одним изголовьем и спинкой, но дополнительно можно приобрести еще несколько мягких панелей.

Портфолио Remplanner
Портфолио Remplanner

Рабочее место у окна пока только одно, второй стол позже сменит комод с игрушками, когда младший ребенок тоже пойдет в школу.

Портфолио Remplanner
Портфолио Remplanner

Лоджия с панорамным видом на город – это последнее помещение в этой квартире. Она небольшая, всего 2,4 м2, здесь обустроено небольшое место отдыха с приставным столиком и дополнительное место хранения напротив – в большой семье ни один шкаф не бывает лишним.

Портфолио Remplanner
Портфолио Remplanner

Вы, наверное, обратили внимание, что на всех фото серый цвет выглядит по-разному: где-то совсем светлый, где-то темный – всё зависит от освещения. Так что будьте внимательны при выборе цвета, делайте выкрасы и проверяйте оттенок во всех ваших комнатах, чтобы не разочароваться в итоге. Ну а за советом и проектом всегда можно обратиться к нам! Кстати, вся корпусная мебель для этой квартиры тоже проектировалась нашей студией, и вы можете заказать похожие решения.

Брак
50,3 тыс интересуются