Добавить в корзинуПозвонить
Найти в Дзене
ДОМ ДЛЯ СЕМЬИ

🔥🔥В ПРОДАЖЕ

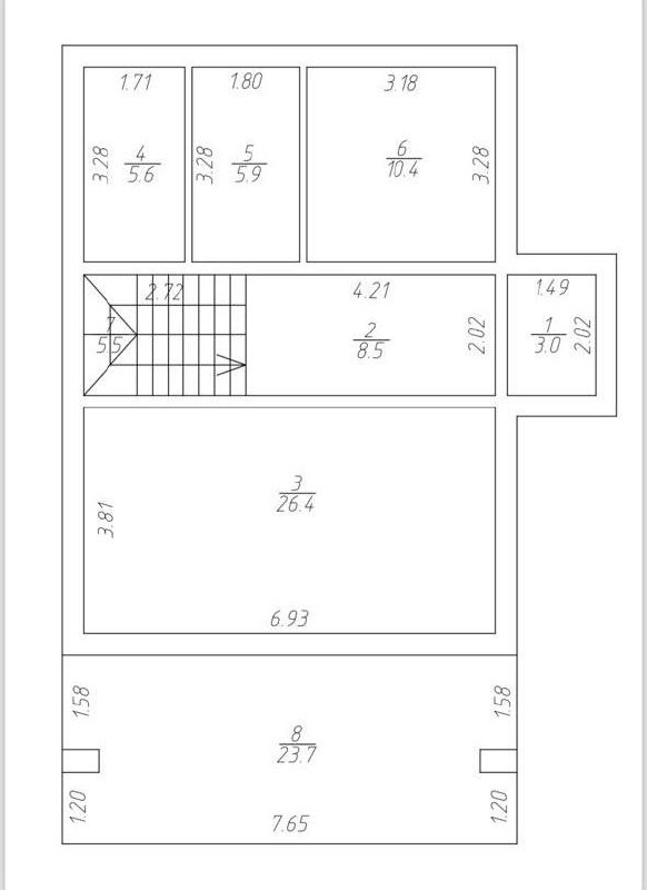
🔥🔥В ПРОДАЖЕ! 🏡Новый готовый двухэтажный коттедж в поселке Южном/Ейское шоссе. 📍Дом расположен в районе новой поликлиники, хорошие подъездные пути. ❗️Данное предложение подходит для покупки дома с использованием средств льготной ипотеки: сельской, семейной, IT-ипотеки. 🌳Двухэтажный коттедж общей площадью 162 кв.м. расположен на земельном участке 4,3 сотки, ИЖС ◾️В доме — современная планировка: крыльцо, холл 8,5 кв.м, совмещенный санузел, котельная, изолированная комната 10,4 кв.м, кухня-гостиная 36,4 кв.м с выходом на террасу 23 кв.м — на первом этаже. ◾️Второй этаж: холл, санузел, три изолированные спальни, одна из которых 27 кв.м с выходом на террасу 14,5 кв.м. ◾️Дом — в предчистовой отделке. 💧Коммуникации: вода — скважина, свет 15 кВт, канализация — септик 8 куб.м, газ — по меже. 📍Развитая инфраструктура поселка Южного: новый детский сад, школа №15, супермаркеты — в пешей доступности. ❗️Дом готов. ❗️Льготная ипотека. 🖊Если остались вопросы, пишите в комментарии Либо поз

🔥🔥В ПРОДАЖЕ!

🏡Новый готовый двухэтажный коттедж в поселке Южном/Ейское шоссе.

📍Дом расположен в районе новой поликлиники, хорошие подъездные пути.

❗️Данное предложение подходит для покупки дома с использованием средств льготной ипотеки: сельской, семейной, IT-ипотеки.

🌳Двухэтажный коттедж общей площадью 162 кв.м. расположен на земельном участке 4,3 сотки, ИЖС

◾️В доме — современная планировка: крыльцо, холл 8,5 кв.м, совмещенный санузел, котельная, изолированная комната 10,4 кв.м, кухня-гостиная 36,4 кв.м с выходом на террасу 23 кв.м — на первом этаже.

◾️Второй этаж: холл, санузел, три изолированные спальни, одна из которых 27 кв.м с выходом на террасу 14,5 кв.м.

◾️Дом — в предчистовой отделке.

💧Коммуникации: вода — скважина, свет 15 кВт, канализация — септик 8 куб.м, газ — по меже.

📍Развитая инфраструктура поселка Южного: новый детский сад, школа №15, супермаркеты — в пешей доступности.

❗️Дом готов.

❗️Льготная ипотека.

🖊Если остались вопросы, пишите в комментарии

Либо позвоните

☎️ +7 (960) 498-47-95

#куплюдом

#льготнаяипотека

#поселокюжный

#трцкраснаяплощадь

#домдлясемьи

#помогукупитьдом

#хочужитьнаюге

-2
-3
-4
-5
-6