Добавить в корзинуПозвонить
Найти в Дзене

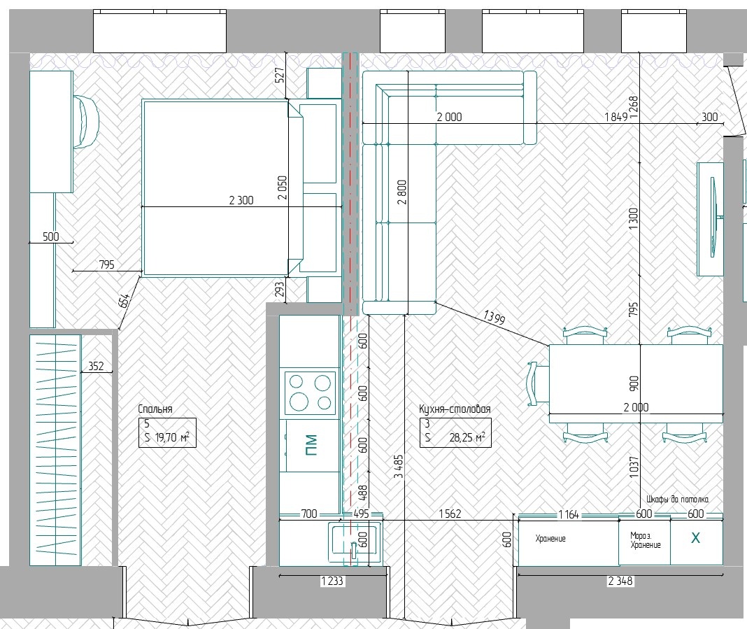
Согласовали кухню-столовую в проекте сталинки

Кухня-столовая в классическом стиле с современными элементами для семьи из 5 человек.
Особенности этого помещения…да на самом деле их очень много.
Самое главное, что удалось сделать - это разместить полноценную кухню (то есть мокрую зону) на 3 этаже в бывшей гостиной по всем правилам.
Как это удалось? Везение) и знание норм ) на 2 и 1 этаже именно под этой комнатой находится нежилое помещение (то есть из квартир сделали коммерческую организацию и переоформили назначение помещений). Это дало возможность обустроить в помещении кухню-нишу (это не обязательно должна быть именно ниша, как физическое углубление, хотя в этом случае получилось именно так). Согласованием перепланировки занимается специализированная компания, хотя можно сделать это и самому. Я призываю всех - обязательно узаконить все изменения в недвижимости, попадающие под "перепланировку". А с 2025 года, под это попадают, кстати, практически все изменения. Итак, У нас появилась отличная ниша, чтобы вписать туда кухню.
3D-визуализация кухни-столовой
3D-визуализация кухни-столовой

Кухня-столовая в классическом стиле с современными элементами для семьи из 5 человек.

Особенности этого помещения…да на самом деле их очень много.


Самое главное, что удалось сделать - это
разместить полноценную кухню (то есть мокрую зону) на 3 этаже в бывшей гостиной по всем правилам.

Как это удалось? Везение) и знание норм ) на 2 и 1 этаже именно под этой комнатой находится нежилое помещение (то есть из квартир сделали коммерческую организацию и переоформили назначение помещений).

Часть планировочного решения
Часть планировочного решения

Это дало возможность обустроить в помещении кухню-нишу (это не обязательно должна быть именно ниша, как физическое углубление, хотя в этом случае получилось именно так). Согласованием перепланировки занимается специализированная компания, хотя можно сделать это и самому. Я призываю всех - обязательно узаконить все изменения в недвижимости, попадающие под "перепланировку". А с 2025 года, под это попадают, кстати, практически все изменения.

Итак, У нас появилась отличная ниша, чтобы вписать туда кухню.

Кстати, знаете почему кухня-столовая, а не кухня-гостиная? По нормам и СНИПам помещение, которое объединяет кухню и гостиную, называется «кухня-столовая», а не «кухня-гостиная».

Это связано с тем, что кухня-столовая это вспомогательное помещение, в котором выделены зоны для приготовления пищи и приёма пищи всеми членами семьи. 

Кухня-гостиная считается жилым помещением, а кухня-столовая – нежилым. Таковы требования к планировке и согласованию перепланировки.

Но в сталинках не бывает все так просто. При сносе перегородки между спальней и гостиной (бывшей) обнаружился несущий ригель (несущая конструкция, балка) под потолком высотой 60 см (видно на картинке выше - красной пунктирной линией).

Несущий элемент над кухней стал частью интерьера
Несущий элемент над кухней стал частью интерьера

Этот ригель мы тоже вписали в интерьер и опустили потолок над кухней-нишей. Зато со стороны спальни получаем скрытую антресоль для хранения габаритных вещей. Туда даже лыжи или сноуборд поместятся.

Дверь скрытого монтажа
Дверь скрытого монтажа

Также комната является проходной и я сделала одну дверь скрытого монтажа (сможете ее найти?), тоже обыграв ее в интерьере. Конечно, на визуализациях она менее заметна, чем будет в действительности. Но все же не так сильно бросаться в глаза. Молдинги расположила таким образом, чтобы не попадали на сторону с петлями - иначе большая подрезка молдингов и они уже не выглядят непрерывной линией.

Отлично разместились и большой диван с тв-зоной и большой обеденный стол на пятерых человек. С точки зрения эргономики есть некоторые нюансы, но зато удалось достичь главного - исполнить мечту заказчицы о большой и просторной кухне-столовой.

3D визуализация
3D визуализация

Мои визы не отличаются суперфотографичной точностью и я умышленно почти никогда не использую визуализации в 3dsmax и иже с ними - если интересно почему, поставьте плюсик в комментариях и я запилю пост на тему того, какие бывают визуализации и когда есть смысл переплачивать.

А вообще приглашаю всех в свой ламповый тг-канал, где рассказываю про всякие новинки в дизайне, лайфхаки, обсуждаю тенденции итд.


С любовью, Ваша Kiselёva design \(♡‿♡)/