Добавить в корзинуПозвонить
Найти в Дзене
Мастер ...

Правила объединения ванной и туалета

При отсутствии каких-либо технических или функциональных противоречий, дизайнеры, как правило, рекомендуют объединять и расширять санузел. Особенно это актуально в малогабаритных квартирах с крохотной ванной и туалетом. Учесть основные нюансы перепланировки ванной помогут советы мастера сантехника. Ремонт ванной и туалета с перепланировкой Типовые квартиры традиционно отличаются тесными и неудобными помещениями туалета и ванной. Исправить эту ситуацию с помощью одного лишь косметического ремонта невозможно – монтаж новых дверей, покраска стен и потолка, замена сантехники дадут лишь визуальный эффект. Исправить положение по-настоящему можно, если только провести перепланировку этих помещений, которая поможет увеличить их площадь или изменить количество. Возможные варианты перепланировок санузла на сегодняшний день таковы: Главное, это подобрать такой вариант перепланировки санузла, туалета или ванной, который бы, с одной стороны, отвечал вашим представлениям о том, как должно выглядеть

При отсутствии каких-либо технических или функциональных противоречий, дизайнеры, как правило, рекомендуют объединять и расширять санузел. Особенно это актуально в малогабаритных квартирах с крохотной ванной и туалетом. Учесть основные нюансы перепланировки ванной помогут советы мастера сантехника.

Ремонт ванной и туалета с перепланировкой

-2

Типовые квартиры традиционно отличаются тесными и неудобными помещениями туалета и ванной. Исправить эту ситуацию с помощью одного лишь косметического ремонта невозможно – монтаж новых дверей, покраска стен и потолка, замена сантехники дадут лишь визуальный эффект.

-3

Исправить положение по-настоящему можно, если только провести перепланировку этих помещений, которая поможет увеличить их площадь или изменить количество.

-4

Возможные варианты перепланировок санузла на сегодняшний день таковы:

  • Перенос и/или замена сантехнических приборов;
  • Объединение ванной и туалета;
  • Разделение санузла на ванную и туалет;
  • Расширение площади санузла за счет нежилых помещений.

Главное, это подобрать такой вариант перепланировки санузла, туалета или ванной, который бы, с одной стороны, отвечал вашим представлениям о том, как должно выглядеть помещение, а с другой – соответствовал действующим строительным и санитарным нормам.

Какие законодательные нормы учесть

-5

Практически любое действие в переоборудовании санузла должно быть согласовано с соответствующими органами. Важно знать основные правила безопасности, чтобы невинная перепланировка санузла в желании повысить свой комфорт не обернулась опасностью для всех жильцов дома и для домочадцев.

-6

Составляя план будущего санузла, необходимо учитывать такие правила:

  • Перепланировку производить нельзя, если после нее санузел будет расположен над жилой зоной или кухней соседей снизу;
  • Вход в санузел не может быть из кухни или жилого помещения, если это единственный туалет в квартире. Если же санузлов, оборудованных туалетом, например, два, то к одному из них дверь может располагаться в комнате;
  • Объединение санузла требует качественной гидроизоляции пола всей мокрой зоны. Для того чтобы Жилищная инспекция приняла перепланировку, необходимо в обязательном порядке убрать предыдущую стяжку и положить новую (вместе с гидроизоляцией). Такие работы обязательно должны быть отражены в Акте скрытых работ, иначе инспектор может не принять перепланировку;
  • Пол в санузле должен быть на 1,5-2 см ниже, чем в жилой зоне. Избежать срезания пола можно с помощью установки разделительного порожка.

Перенос и замена сантехники в большинстве случаев относится к переустройству, которое выполняется по эскизу и требует лишь уведомления Жилищной инспекции. Замену одной сантехники на аналогичную по размерам можно производить даже без уведомления. Согласования требует перенос приборов с одного места на другое (например, замена местами ванной и унитаза и т.д.).

-7

Что же касается требований эргономики, то для удобного использования санузла нормы предусматривают минимально необходимое пространство перед всеми сантехническими приборами.

-8

Перед ванной или душевой кабиной – 70 см и больше, перед унитазом – не менее 60 см, по бокам от него – по 25 см, перед умывальником – 70 см.

Какая выгода от объединения ванной комнаты и туалета

-9

Объединение ванной комнаты и туалета одна из самых популярных перепланировок квартир. Она позволяет увеличить площадь санузла, разместить более вместительную ванную или наоборот, освободить значительное место, установив душевую кабину. Как правило, перегородка, разделяющая туалет и ванную комнату не является несущей.

-10

Преимущества от совмещения санузла очевидные:

  • При демонтаже стены и ликвидации одного дверного проема образуется дополнительное пространство, которое можно использовать для установки необходимых предметов сантехники и мебели, причем разместить их можно будет более удобно;
  • Экономия на облицовке одной стены и установке двери, ведь вместо двух дверных проемов будет только один;
  • Нередко проблемой санузлов в многоквартирных домах становится не самое логичное расположение коммуникаций, которые занимают много места. При перепланировке от этого недостатка, хотя бы частично, можно избавиться.

Когда от совмещения санузла нужно отказаться

-11

Главная причина, по которой идут на процесс демонтажа перегородки и совмещения ванной и туалета, — это недостаточная площадь этих помещений. Но в некоторых случаях этого делать все же не стоит:

  • Если семья большая, то в определенные часы (утром и перед сном) в ванную будет скапливаться очередь. В этом случае целесообразнее будет раздельный санузел;
  • Некоторые пожилые люди, большая часть жизни которых прошла в советские времена, до сих пор воспринимают совмещенный санузел как нечто некомфортное и непрестижное. Если ссориться и расстраивать стариков не хочется, есть смысл оставить перегородку на месте;
  • Когда ванная комната смежная с кухней. Совмещенный санузел – это источник запахов, которые могут проникать в кухонное помещение даже при хорошей вентиляции и использовании освежителей воздуха. Да и звуки сливного бачка, доносящиеся из ванной до обедающих, не каждый захочет терпеть.

Особенности расширения санузла

-12

Увеличение ванной комнаты или туалета может быть выполнено двумя способами:

  • За счет нежилых помещений (коридор, кладовая);
  • За счет жилых помещений.

В законе четко прописано, что мокрые помещения (кухня, ванная или туалет) не могут располагаться над жилыми комнатами соседей снизу. Поэтому увеличение площади санузла за счет жилых помещений в квартирах, расположенных выше первого этажа невозможно.

-13

Исключение составляют только двухуровневые квартиры (второй уровень), а также те квартиры, под которыми расположены нежилые помещения. Следует также помнить, что комната, за счет которой произошло расширение мокрой зоны, перестает быть жилой (в ней не могут быть расположены спальня, детская, гостиная и т.д.).

-14

При расширении за счет коридора, требуется вначале провести техническое обследование квартиры на возможность осуществления данной перепланировки. Желательно, чтобы его проводил непосредственно представитель проектировщика здания. Обследование позволит выяснить, являются ли перегородки между ванной и коридором несущими и возможно ли провести их демонтаж без нарушения целостности жилого дома.

Идеи дизайна

-15

После сноса перегородки и ликвидации одного дверного проема образуется дополнительное пространство, которое можно использовать для установки необходимых предметов: стиральная машина, биде, шкафчик и т.д. Но первым возникает вопрос о том, что же использовать, ванну или душевую кабину? Конечно же, пользоваться ванной приятно, но так ли часто кто-то в семье ее принимает? Если все, в основном, пользуются душем, то ответ очевиден, а сэкономленное место можно использовать с пользой.

-16

Выбор современных душевых кабин, без преувеличений, огромный – найдется модель на любой вкус. Кроме того, можно приобрести угловую ванну, которая станет компромиссным решением между душевой кабиной и обычной ванной.

-17

Дополнительные места хранения удобно организовать под раковиной, если оборудовать ее столешницей и разместить под ней шкафчик. Хранить там можно будет предметы техники, полотенца, гигиенические принадлежности.

-18

Чтобы визуально сделать санузел чуть более просторным, можно использовать некоторые уловки. Для отделки лучше выбрать светлые оттенки, обеспечить достаточный уровень освещения в каждой из зон, а пол и душевую зону можно выложить плиткой одного цвета.

-19

Вместо напольной сантехники можно использовать подвесные системы, комната будет казаться более просторной, а уборка будет легче.

-20

Зеркала, как воздух, необходимы в ванной: они служат не только для того, чтобы можно было рассмотреть себя, но и визуально увеличивают пространство, а при грамотном расположении просто творят чудеса.

Что делать после перепланировки

-21

Когда перепланировка состоялась, необходимо позаботиться об обновлении технического паспорта на квартиру, который должен отражать все изменения. Порядок действий будет примерно следующим:

  • Вызов инспектора Жилищной инспекции;
  • Получение актов скрытых работ у строительной организации, которая выполняла все работы;
  • Получение актов выполненного переустройства у инспектора Жилищной инспекции, которые подписываются у строительной организации и возвращаются в инспекцию;
  • Вызов техника БТИ для обмеров;
  • Получения нового техпаспорта.

Видео

В сюжете - Нюансы перепланировки ванной и туалета

В заключение

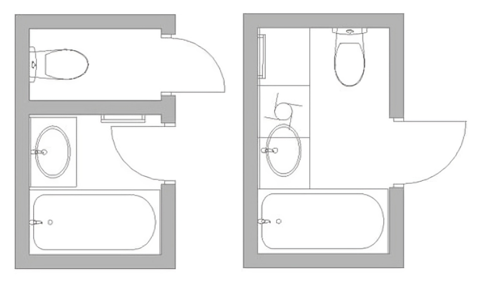
Уже на этапе возникновения идеи о переоборудовании санузла, необходимо удостовериться возможно ли это в конкретном случае. Если да, то начинать лучше с проведения измерений и составления плана расстановки сантехники и мебели в будущем санузле: это значительно облегчит проведение всех ремонтных работ и подскажет их последовательность.

Если вам понравилась статья, то вы можете поддержать наш канал, через сервис СберЧаевые. И подписывайтесь на наш телеграмм канал.

В продолжение темы посмотрите также наш обзор Как составить смету на ремонт квартиры самостоятельно

Источник

Объединение ванной и туалета — важные нюансы перепланировки санузла