Найти в Дзене

Альбом чертежей: гарантия, что строители не забудут ни одну розетку

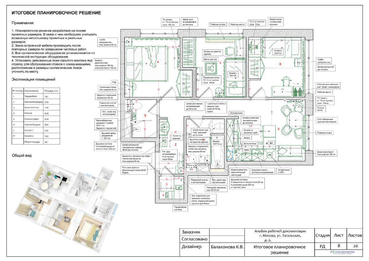
По данным опроса от «СберСтрахования», каждый третий респондент сталкивался с необходимостью переделывать свежий ремонт. Средние потери из-за ошибок составили от 50 тыс. рублей – и это без учета потраченных нервов и времени. Одна из самых частых проблем – неправильное расположение розеток, выключателей и других элементов электросети. Результат? Удлинители через всю комнату, неработающие приборы или необходимость долбить стены после чистовой отделки. Как избежать этих ошибок? Профессиональный альбом рабочих чертежей – это пошаговая инструкция для строителей, где учтена каждая деталь. 2. План электрики с точными размерами
Расположение розеток, выключателей, светильников с указанием высоты и расстояний от стен.
Отдельные схемы для кухни (под технику), рабочего стола (зарядка гаджетов), спальни (свет по бокам кровати). 3. Схема освещения
Где будут основные светильники, подсветка, диммеры. 4. Развертки стен с привязкой электроприборов
Чтобы строители видели, где именно должны быть точки п
Оглавление

По данным опроса от «СберСтрахования», каждый третий респондент сталкивался с необходимостью переделывать свежий ремонт. Средние потери из-за ошибок составили от 50 тыс. рублей – и это без учета потраченных нервов и времени.

Одна из самых частых проблем – неправильное расположение розеток, выключателей и других элементов электросети. Результат? Удлинители через всю комнату, неработающие приборы или необходимость долбить стены после чистовой отделки.

Как избежать этих ошибок? Профессиональный альбом рабочих чертежей – это пошаговая инструкция для строителей, где учтена каждая деталь.

Что входит в альбом чертежей по электрике?

  1. План расстановки мебели
    Показывает, где будет стоять каждый предмет, чтобы розетки оказались в нужных местах, а не за шкафами.

2. План электрики с точными размерами
Расположение розеток, выключателей, светильников с указанием высоты и расстояний от стен.
Отдельные схемы для
кухни (под технику), рабочего стола (зарядка гаджетов), спальни (свет по бокам кровати).

3. Схема освещения
Где будут основные светильники, подсветка, диммеры.

4. Развертки стен с привязкой электроприборов
Чтобы строители видели, где именно должны быть точки подключения.

-3

5. Спецификация материалов
Какие розетки и выключатели использовать – это исключает замену на дешевые аналоги.

Почему это работает?

Строители не гадают – все указано в деталях.
Нет неожиданных «забыли» – каждый элемент на схеме.
Минимум исправлений – не придется переделывать.

Вывод

Хороший ремонт начинается не с плитки и обоев, а с грамотного проектирования. Альбом чертежей – это страховка от ошибок, которая экономит деньги и нервы.

💡 Хотите, чтобы в вашем ремонте все было учтено? Обращайтесь – сделаем точные чертежи, по которым строители не ошибутся!

Ваш гид в мире дизайна, Ксения и Дизайн-студия #ТВОЯОБСТАНОВОЧКА – продумываем интерьеры до мелочей.